提交购房需求
外居乐为您提供专属的购房服务
扫描获取每日新鲜热辣的海外房产资讯
waijule2015
Wechat
扫描下载APP
海外购房更便捷
外居乐
App
Consultant
小乐
专业咨询顾问
查看地图
5525 Fieldfreen Drive, Cumming, GA, 30028

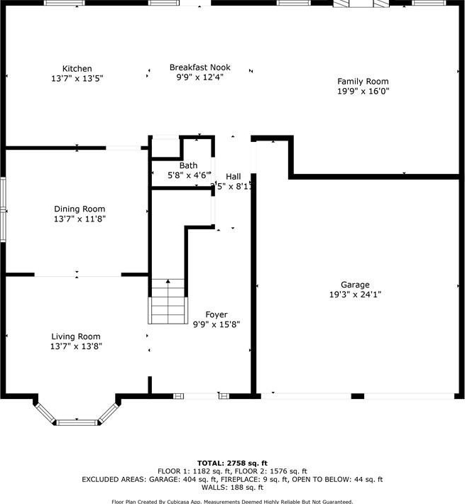
美国亚特兰大4室3卫独栋别墅

亚特兰大四室三卫独栋别墅  |  房产编号 A549611  |  发布于86天前
$510,000
约¥363万
$2,168 / 贷款月供
? / 投资回报率
基本信息
房屋类型独栋别墅
建筑面积3,101 平方英尺 (约 288 平方米)
土地面积11,326 平方英尺 (约 1,052 平方米)
建筑年代2006年
停车位数--
卧室数量4间
3/4卫浴数0间
MLS#7624408
单位价格$164/平方英尺 (约¥12,607/平方米)
房产税$378/月 (约¥2,694/月)
物业费--
预估月租金--
完整卫浴数2间
1/2卫浴数1间
交易状态待出售
投资回报率
8年年化投资回报率:?
现金购房出租净收益率:?
房屋增值
房屋总价
$510,000
首付比例
40.00%
持有年限
8年
预估年增值率
2.73%
过去十二个月房价趋势
16.93%
收入与支出 / 月
预估租金
--
房产税
$378
物业费
$0
保险费
$53
维护费
$63
投资回报率仅供参考,各类参考数据来源于不同的政府数据库与商业数据库,外居乐不对数据准确负任何直接或间接的责任。
城市介绍
亚特兰大
亚特兰大Atlanta是美国佐治亚州首府及最大城市,也是富尔顿县的县政府驻地。人口463,878人(2015年)。亚特兰大是亚特兰大都会圈的文化和经济中心。大都会圈拥有人口5,610,733人,是美国第9大都市区。 亚特兰大是一座世界之城,在商业、金融、研发、科技、教育、媒体及娱乐领域都有着重大影响。其在世界排名第36大城市,在美国排名第8大经济体,GDP总产值高达3040亿美金。亚特兰大的经济非常多样化,占主导地位的有:物流,商业服务,媒体,信息产业等。 亚市被誉为“新南方之都”,上百家大公司总部设在这里,包括可口可乐、家得宝、达美航空、联合包裹、假日酒店及南方贝尔等。全美500家大公司中有430家在亚市设立了分公司。1800多家工厂生产包括飞机、汽车、家具,纺织品、化学原料,食品、纸、钢铁等3500多种产品。该市IT业工作岗位数量增长较快。2011年,大亚特兰大地区GDP约2833亿美元,居全美各都会区第10位。对外出口额约172亿美元,居全美各都会区第18位,占全佐州出口总额的54.9%。前五大出口对象依次为:加拿大、墨西哥、新加坡、中国、日本。 20世纪人口在佐治亚州首府迁入后快速增加,除非裔美国人外,亚裔与西班牙语裔美国人也大量迁入。2010年人口普查显示亚市人口为420,003。人口密度为每平方英里(1232平方公里)3154人。了解更多
学校信息
学校评分学校名称类型年级距离
8
North Forsyth High School
高中
9-12
2.82km
9
North Forsyth Middle School
初中
6-8
2.59km
9
Silver City Elementary School
小学
PK-5
3.23km
以上学校和学区信息仅供参考,如需确认,请通过经纪人或者直接与学校联系
社区信息
社区人口数
19,120
平均家庭收入
高于本州平均家庭收入45.56%
高于全美平均家庭收入35.07%
本地本州全美$71,585$49,179$53,000
大学及以上教育比例
本地本州全美31.4%34.9%36.7%
失业率
本地本州全美3.9%7.2%6.2%
蓝白领比例
  • 29.9%蓝领
  • 70.1%白领
生活成本指数
服务教育娱乐餐饮医疗住房整体交通公共事业全美平均102.3109.5104.698.992.299.4101.7101.197.6100
注:价格指数全美范围内的平均值是100。如果该指数高于100则意味着该商品的价格高于全国平均水平。相应的,如果低于100则意味着该商品价格低于全国平均水平。
房屋贷款
房屋总价: $510,000
  • $1,737本金利息
  • $378房产税
  • $53保险费
$2,168
(月供)
首付
$
百分比
%
贷款计划30年固定利率
年利率
%
房源介绍
Welcome to 5525 Fieldfreen Drive, a beautifully updated and meticulously maintained home located on a quiet cul de sac in the highly sought after Wild Meadows community in Cumming, GA. Tucked away from the main road, this home offers a safe, low-traffic environment that is perfect for biking, play, and peace of mind. Situated within the top rated Forsyth County School District, this spacious residence combines modern upgrades with functional design. Inside, you will find a bright, open concept kitchen with ample counter space, multiple living and dining areas, and a warm, inviting family room centered around a cozy fireplace that is ideal for both everyday living and entertaining. The home boasts numerous updates throughout, including fresh paint, a new roof, upgraded HVAC units, and a brand new fence for added privacy and outdoor enjoyment. Upstairs, the generous owner’s suite features a large walk-in closet and an en suite bath with dual vanities, a soaking tub, and a separate shower. The secondary bedrooms are well-sized and versatile, perfect for guests, a home office, or a growing family. Step outside to a spacious and private backyard, surrounded by mature landscaping that offers a peaceful setting for relaxing evenings or hosting gatherings with friends and neighbors. Wild Meadows is a vibrant swim and tennis community located close to shopping, dining, parks, major commuting routes, and less than 5 minutes from the upcoming Coal Mountain Town Center! With access to some of Georgia’s highest-performing schools and a true sense of community, 5525 Fieldfreen Drive is more than just a house, it is a place to call home.
展开全部
Listing Agent Info
Tia Attoma • Community Partners LLC dba Keller Williams Realty Community Partners •  Phone: (678) 341-7409 •  Email: tiaattoma@kw.com • View more info
Copyright © 2025 First Multiple Listing Service, Inc. All rights reserved. All information provided by the listing agent/broker is deemed reliable but is not guaranteed and should be independently verified.
联系经纪人
买方经纪人
*我是经纪人,想出现在这
Darcy Zhu
朱瑢 Darcy Zhu
Virtual Properties Realty
点击查看经纪人详情
Emiko Yang
楊恵美子 Emiko Yang
KELLER WILLIAMS RLTY FIRST ATL
点击查看经纪人详情
Sarah Nie
聂芸蕾 Sarah Nie
Vistaray USA Inc 瑞美房地产
点击查看经纪人详情
Deping Xia
夏德萍 Deping Xia
VIRTUAL PROPERTIES REALTY.COM
点击查看经纪人详情
买方经纪人
*我是经纪人,想出现在这
Darcy Zhu
朱瑢 Darcy Zhu
Virtual Properties Realty
点击查看经纪人详情
Emiko Yang
楊恵美子 Emiko Yang
KELLER WILLIAMS RLTY FIRST ATL
点击查看经纪人详情
Sarah Nie
聂芸蕾 Sarah Nie
Vistaray USA Inc 瑞美房地产
点击查看经纪人详情
Deping Xia
夏德萍 Deping Xia
VIRTUAL PROPERTIES REALTY.COM
点击查看经纪人详情
所有信息安全可靠
不收费用并非中介
实时更新详尽信息
专业平台让您放心
外居乐美国房产
外居乐美国房产网提供真实海外房源信息,涵盖海量美国房产、海外学区房与房源周边社区信息。并联合全球超过6268名海外房产经纪人,推出美国豪宅、别墅、公寓、住宅、土地等类型的海外房产投资项目。通过外居乐,买家不再受虚假房源的困扰,通过可靠的美国房产经纪人,放心找到实时在售美国房产。海外房产投资,就上外居乐!
425-896-8335
微信扫码
Wechat
获取每日新鲜热辣的海外房产投资资讯,请扫描二维码关注外居乐。
Download App
扫描下载APP
海外购房更便捷
WJL HomeServices LLC.
#20293
WJL HomeServices Inc.
CA BRE# 02040249
7 Springs Properties, Inc.
CA BRE#01884805
© 2015 外居乐 版权所有 | 沪ICP备15046544号-2