


| 房屋类型 | 土地 | |
| 建筑面积 | -- | |
| 土地面积 | 13,504 平方英尺 (约 1,255 平方米) | |
| 建筑年代 | 2025年 | |
| 停车位数 | -- | |
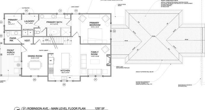
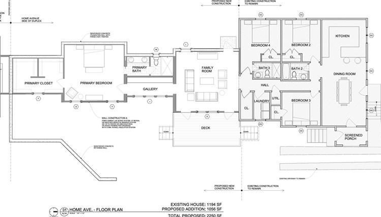
| 卧室数量 | 5间 | |
| 3/4卫浴数 | 0间 |
| MLS# | 7636279 | |
| 单位价格 | -- | |
| 房产税 | $360/月 (约¥2,539/月) | |
| 物业费 | -- | |
| 预估月租金 | -- | |
| 完整卫浴数 | 4间 | |
| 1/2卫浴数 | 1间 | |
| 交易状态 | 待出售 |
| 房屋增值 | |
|---|---|
房屋总价 | $155,000 |
首付比例 | 40.00% |
持有年限 | 8年 |
预估年增值率 | 2.73% |
过去十二个月房价趋势 | 8.48% |
| 收入与支出 / 月 | |
|---|---|
预估租金 | -- |
房产税 | $360 |
物业费 | $0 |
保险费 | $16 |
维护费 | $19 |
| 学校评分 | 学校名称 | 类型 | 年级 | 距离 |
|---|---|---|---|---|
6 | Parkside Elementary School | 小学 | PK-5 | 0.68km |


