提交购房需求
外居乐为您提供专属的购房服务
扫描获取每日新鲜热辣的海外房产资讯
waijule2015
Wechat
扫描下载APP
海外购房更便捷
外居乐
App
Consultant
小乐
专业咨询顾问
查看地图
6883 Lakeshore Drive, Douglasville, GA, 30135

美国亚特兰大3室2卫独栋别墅

亚特兰大三室二卫独栋别墅  |  房产编号 A559348  |  发布于68天前
$310,000
约¥218万
$1,303 / 贷款月供
? / 投资回报率
基本信息
房屋类型独栋别墅
建筑面积1,450 平方英尺 (约 135 平方米)
土地面积21,924 平方英尺 (约 2,037 平方米)
建筑年代1977年
停车位数--
卧室数量3间
3/4卫浴数0间
MLS#7665717
单位价格$213/平方英尺 (约¥16,203/平方米)
房产税$215/月 (约¥1,517/月)
物业费--
预估月租金--
完整卫浴数2间
1/2卫浴数0间
交易状态待出售
投资回报率
8年年化投资回报率:?
现金购房出租净收益率:?
房屋增值
房屋总价
$310,000
首付比例
40.00%
持有年限
8年
预估年增值率
2.73%
过去十二个月房价趋势
10.30%
收入与支出 / 月
预估租金
--
房产税
$215
物业费
$0
保险费
$32
维护费
$38
投资回报率仅供参考,各类参考数据来源于不同的政府数据库与商业数据库,外居乐不对数据准确负任何直接或间接的责任。
城市介绍
亚特兰大
亚特兰大Atlanta是美国佐治亚州首府及最大城市,也是富尔顿县的县政府驻地。人口463,878人(2015年)。亚特兰大是亚特兰大都会圈的文化和经济中心。大都会圈拥有人口5,610,733人,是美国第9大都市区。 亚特兰大是一座世界之城,在商业、金融、研发、科技、教育、媒体及娱乐领域都有着重大影响。其在世界排名第36大城市,在美国排名第8大经济体,GDP总产值高达3040亿美金。亚特兰大的经济非常多样化,占主导地位的有:物流,商业服务,媒体,信息产业等。 亚市被誉为“新南方之都”,上百家大公司总部设在这里,包括可口可乐、家得宝、达美航空、联合包裹、假日酒店及南方贝尔等。全美500家大公司中有430家在亚市设立了分公司。1800多家工厂生产包括飞机、汽车、家具,纺织品、化学原料,食品、纸、钢铁等3500多种产品。该市IT业工作岗位数量增长较快。2011年,大亚特兰大地区GDP约2833亿美元,居全美各都会区第10位。对外出口额约172亿美元,居全美各都会区第18位,占全佐州出口总额的54.9%。前五大出口对象依次为:加拿大、墨西哥、新加坡、中国、日本。 20世纪人口在佐治亚州首府迁入后快速增加,除非裔美国人外,亚裔与西班牙语裔美国人也大量迁入。2010年人口普查显示亚市人口为420,003。人口密度为每平方英里(1232平方公里)3154人。了解更多
学校信息
暂无数据,请联系经纪人
社区信息
社区人口数
60,809
社区安全指数
比较安全
平均家庭收入
高于本州平均家庭收入23.22%
高于全美平均家庭收入14.33%
本地本州全美$60,596$49,179$53,000
大学及以上教育比例
本地本州全美29.9%34.9%36.7%
失业率
本地本州全美5.2%7.2%6.2%
蓝白领比例
  • 34.6%蓝领
  • 65.4%白领
生活成本指数
服务教育娱乐餐饮医疗住房整体交通公共事业全美平均96.78584.789.774.79390.790.374.5100
注:价格指数全美范围内的平均值是100。如果该指数高于100则意味着该商品的价格高于全国平均水平。相应的,如果低于100则意味着该商品价格低于全国平均水平。
房屋贷款
房屋总价: $310,000
  • $1,056本金利息
  • $215房产税
  • $32保险费
$1,303
(月供)
首付
$
百分比
%
贷款计划30年固定利率
年利率
%
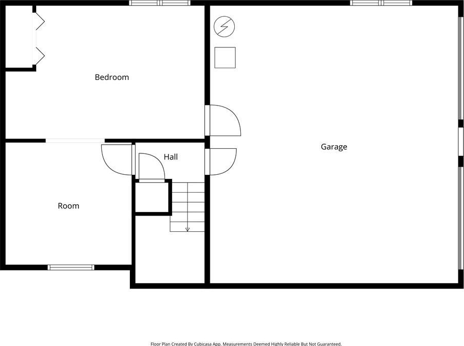
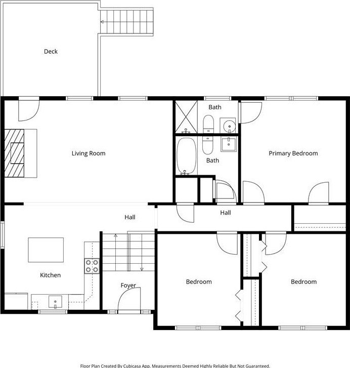
房源介绍
Welcome to 6883 Lakeshore Drive — a stunning to-the-studs renovation offering 3 bedrooms, 2 bathrooms, and approximately 2,150 sq ft of finished living space. The open-concept main level features a bright modern kitchen with quartz countertops, new cabinetry, stainless steel appliances, and an island overlooking the family room with a painted brick fireplace. Downstairs, a fully finished basement adds flexible living options — ideal for a home office, media room, recreation space, or potential 4th bedroom. Every surface has been refreshed: new flooring, paint, lighting, trim, and fixtures throughout. Enjoy the brand-new back deck overlooking a private, wooded backyard. Conveniently located near shopping, parks, and highways — this home is truly move-in ready.
展开全部
Listing Agent Info
Amanda Tello • Community Partners LLC dba Keller Williams Realty Community Partners •  Phone: (678) 341-7409 •  Email: atello@kw.com • View more info
Copyright © 2025 First Multiple Listing Service, Inc. All rights reserved. All information provided by the listing agent/broker is deemed reliable but is not guaranteed and should be independently verified.
联系经纪人
买方经纪人
*我是经纪人,想出现在这
Miao Yu
于淼 Miao Yu
CRYE-LEIKE REALTY, INC.
点击查看经纪人详情
Min Calvert
Min Calvert
Engel & Vöelkers Atlanta North Fulton
点击查看经纪人详情
Yvonne Chen
陈月清 Yvonne Chen
Leaders Realty USA Inc
点击查看经纪人详情
Casey Wen
文凯茜 Casey Wen
CRYE-LEIKE REALTY, INC.
点击查看经纪人详情
买方经纪人
*我是经纪人,想出现在这
Miao Yu
于淼 Miao Yu
CRYE-LEIKE REALTY, INC.
点击查看经纪人详情
Min Calvert
Min Calvert
Engel & Vöelkers Atlanta North Fulton
点击查看经纪人详情
Yvonne Chen
陈月清 Yvonne Chen
Leaders Realty USA Inc
点击查看经纪人详情
Casey Wen
文凯茜 Casey Wen
CRYE-LEIKE REALTY, INC.
点击查看经纪人详情
所有信息安全可靠
不收费用并非中介
实时更新详尽信息
专业平台让您放心
外居乐美国房产
外居乐美国房产网提供真实海外房源信息,涵盖海量美国房产、海外学区房与房源周边社区信息。并联合全球超过6268名海外房产经纪人,推出美国豪宅、别墅、公寓、住宅、土地等类型的海外房产投资项目。通过外居乐,买家不再受虚假房源的困扰,通过可靠的美国房产经纪人,放心找到实时在售美国房产。海外房产投资,就上外居乐!
425-896-8335
微信扫码
Wechat
获取每日新鲜热辣的海外房产投资资讯,请扫描二维码关注外居乐。
Download App
扫描下载APP
海外购房更便捷
WJL HomeServices LLC.
#20293
WJL HomeServices Inc.
CA BRE# 02040249
7 Springs Properties, Inc.
CA BRE#01884805
© 2015 外居乐 版权所有 | 沪ICP备15046544号-2