提交购房需求
外居乐为您提供专属的购房服务
扫描获取每日新鲜热辣的海外房产资讯
waijule2015
Wechat
扫描下载APP
海外购房更便捷
外居乐
App
Consultant
小乐
专业咨询顾问
查看地图
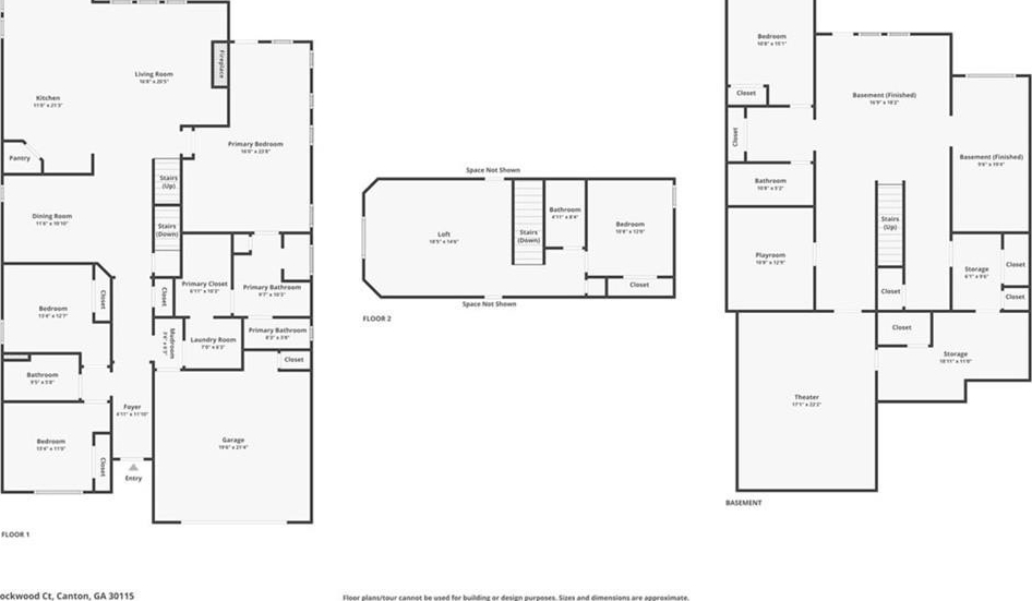
710 Rockwood Court, Canton, GA, 30115

美国亚特兰大5室4卫独栋别墅

亚特兰大五室四卫独栋别墅  |  房产编号 A565058  |  发布于95天前
$700,000
约¥484万
$3,077 / 贷款月供
? / 投资回报率
基本信息
房屋类型独栋别墅
建筑面积4,732 平方英尺 (约 440 平方米)
土地面积8,276 平方英尺 (约 769 平方米)
建筑年代2018年
停车位数2
卧室数量5间
3/4卫浴数0间
MLS#7683942
单位价格$147/平方英尺 (约¥11,001/平方米)
房产税$619/月 (约¥4,282/月)
物业费--
预估月租金--
完整卫浴数4间
1/2卫浴数0间
交易状态待出售
投资回报率
8年年化投资回报率:?
现金购房出租净收益率:?
房屋增值
房屋总价
$700,000
首付比例
40.00%
持有年限
8年
预估年增值率
2.73%
过去十二个月房价趋势
3.31%
收入与支出 / 月
预估租金
--
房产税
$619
物业费
$0
保险费
$72
维护费
$87
投资回报率仅供参考,各类参考数据来源于不同的政府数据库与商业数据库,外居乐不对数据准确负任何直接或间接的责任。
城市介绍
亚特兰大
亚特兰大Atlanta是美国佐治亚州首府及最大城市,也是富尔顿县的县政府驻地。人口463,878人(2015年)。亚特兰大是亚特兰大都会圈的文化和经济中心。大都会圈拥有人口5,610,733人,是美国第9大都市区。 亚特兰大是一座世界之城,在商业、金融、研发、科技、教育、媒体及娱乐领域都有着重大影响。其在世界排名第36大城市,在美国排名第8大经济体,GDP总产值高达3040亿美金。亚特兰大的经济非常多样化,占主导地位的有:物流,商业服务,媒体,信息产业等。 亚市被誉为“新南方之都”,上百家大公司总部设在这里,包括可口可乐、家得宝、达美航空、联合包裹、假日酒店及南方贝尔等。全美500家大公司中有430家在亚市设立了分公司。1800多家工厂生产包括飞机、汽车、家具,纺织品、化学原料,食品、纸、钢铁等3500多种产品。该市IT业工作岗位数量增长较快。2011年,大亚特兰大地区GDP约2833亿美元,居全美各都会区第10位。对外出口额约172亿美元,居全美各都会区第18位,占全佐州出口总额的54.9%。前五大出口对象依次为:加拿大、墨西哥、新加坡、中国、日本。 20世纪人口在佐治亚州首府迁入后快速增加,除非裔美国人外,亚裔与西班牙语裔美国人也大量迁入。2010年人口普查显示亚市人口为420,003。人口密度为每平方英里(1232平方公里)3154人。了解更多
学校信息
暂无数据,请联系经纪人
社区信息
社区人口数
37,630
社区安全指数
非常安全
平均家庭收入
高于本州平均家庭收入51.92%
高于全美平均家庭收入40.97%
本地本州全美$74,713$49,179$53,000
大学及以上教育比例
本地本州全美37.0%34.9%36.7%
失业率
本地本州全美3.8%7.2%6.2%
蓝白领比例
  • 32.4%蓝领
  • 67.6%白领
生活成本指数
服务教育娱乐餐饮医疗住房整体交通公共事业全美平均107.6114.3106.6100.593.3101103.8103.198100
注:价格指数全美范围内的平均值是100。如果该指数高于100则意味着该商品的价格高于全国平均水平。相应的,如果低于100则意味着该商品价格低于全国平均水平。
房屋贷款
房屋总价: $700,000
  • $2,384本金利息
  • $619房产税
  • $72保险费
$3,077
(月供)
首付
$
百分比
%
贷款计划30年固定利率
年利率
%
房源介绍
Step inside this move-in ready home that delivers flexibility and function across three finished levels. The main floor welcomes you with an open-concept layout, where hardwood floors and crown molding carry through the living, dining, and kitchen spaces. A gas fireplace centers the living area, surrounded by large windows that bring in natural light. The kitchen is built to handle it all, with granite countertops, stainless steel appliances including a double oven and gas cooktop, white cabinetry, and a large island for prep, serving, or casual meals. The primary suite sits on the main floor, offering a walk-in closet with direct access to the laundry room—a smart layout that connects through a private hallway. The ensuite bath features dual vanities, a granite-topped counter, and a glass-enclosed shower. Two more bedrooms and a full bath are positioned off the foyer, along with a mudroom and dedicated laundry space for everyday convenience. Upstairs, a bright loft area provides space for a media zone, office, or playroom, while an additional bedroom and full bath round out the upper level. The finished terrace level includes a custom bar area, media room, full bath, fifth bedroom, and extra storage rooms, perfect for entertaining or multi-generational living. Out back, a fenced yard backs to mature trees, with a firepit, outbuilding, and covered patio below the upper deck. With impressive landscaping, craftsman details, and access to community amenities like a pool, clubhouse, fitness center, tennis, and pickleball, this one checks all the boxes.
展开全部
Listing Agent Info
Path Post Team • Path & Post Real Estate •  Phone: 770-720-4663 •  Email: listings@pathpost.com • View more info
Copyright © 2026 First Multiple Listing Service, Inc. All rights reserved. All information provided by the listing agent/broker is deemed reliable but is not guaranteed and should be independently verified.
联系经纪人
买方经纪人
*我是经纪人,想出现在这
Danny Hao
郝地产 Danny Hao
Maximum One Realty
点击查看经纪人详情
Mingwei Li
李铭伟 Mingwei Li
Virtual Properties Realty
点击查看经纪人详情
Karen Fan
范京会 Karen Fan
Crye-Leike Real Estate Services
点击查看经纪人详情
Emiko Yang
楊恵美子 Emiko Yang
KELLER WILLIAMS RLTY FIRST ATL
点击查看经纪人详情
买方经纪人
*我是经纪人,想出现在这
Danny Hao
郝地产 Danny Hao
Maximum One Realty
点击查看经纪人详情
Mingwei Li
李铭伟 Mingwei Li
Virtual Properties Realty
点击查看经纪人详情
Karen Fan
范京会 Karen Fan
Crye-Leike Real Estate Services
点击查看经纪人详情
Emiko Yang
楊恵美子 Emiko Yang
KELLER WILLIAMS RLTY FIRST ATL
点击查看经纪人详情
所有信息安全可靠
不收费用并非中介
实时更新详尽信息
专业平台让您放心
外居乐美国房产
外居乐美国房产网提供真实海外房源信息,涵盖海量美国房产、海外学区房与房源周边社区信息。并联合全球超过6268名海外房产经纪人,推出美国豪宅、别墅、公寓、住宅、土地等类型的海外房产投资项目。通过外居乐,买家不再受虚假房源的困扰,通过可靠的美国房产经纪人,放心找到实时在售美国房产。海外房产投资,就上外居乐!
425-896-8335
微信扫码
Wechat
获取每日新鲜热辣的海外房产投资资讯,请扫描二维码关注外居乐。
Download App
扫描下载APP
海外购房更便捷
WJL HomeServices LLC.
#20293
WJL HomeServices Inc.
CA BRE# 02040249
7 Springs Properties, Inc.
CA BRE#01884805
© 2015 外居乐 版权所有 | 沪ICP备15046544号-2