提交购房需求
外居乐为您提供专属的购房服务
扫描获取每日新鲜热辣的海外房产资讯
waijule2015
Wechat
扫描下载APP
海外购房更便捷
外居乐
App
Consultant
小乐
专业咨询顾问
查看地图
516 Sawnee Village Boulevard #D56, Cumming, GA, 30040

美国亚特兰大3室4卫联排别墅

亚特兰大三室四卫联排别墅  |  房产编号 A565936  |  发布于18天前
$472,400
约¥334万
$2,052 / 贷款月供
? / 投资回报率
基本信息
房屋类型联排别墅
建筑面积1,703 平方英尺 (约 158 平方米)
土地面积--
建筑年代2024年
停车位数--
卧室数量3间
3/4卫浴数0间
MLS#7681022
单位价格$277/平方英尺 (约¥21,115/平方米)
房产税--
物业费--
预估月租金--
完整卫浴数3间
1/2卫浴数1间
交易状态待出售
投资回报率
8年年化投资回报率:?
现金购房出租净收益率:?
房屋增值
房屋总价
$472,400
首付比例
40.00%
持有年限
8年
预估年增值率
2.73%
过去十二个月房价趋势
7.79%
收入与支出 / 月
预估租金
--
房产税
$393
物业费
$0
保险费
$49
维护费
$59
投资回报率仅供参考,各类参考数据来源于不同的政府数据库与商业数据库,外居乐不对数据准确负任何直接或间接的责任。
城市介绍
亚特兰大
亚特兰大Atlanta是美国佐治亚州首府及最大城市,也是富尔顿县的县政府驻地。人口463,878人(2015年)。亚特兰大是亚特兰大都会圈的文化和经济中心。大都会圈拥有人口5,610,733人,是美国第9大都市区。 亚特兰大是一座世界之城,在商业、金融、研发、科技、教育、媒体及娱乐领域都有着重大影响。其在世界排名第36大城市,在美国排名第8大经济体,GDP总产值高达3040亿美金。亚特兰大的经济非常多样化,占主导地位的有:物流,商业服务,媒体,信息产业等。 亚市被誉为“新南方之都”,上百家大公司总部设在这里,包括可口可乐、家得宝、达美航空、联合包裹、假日酒店及南方贝尔等。全美500家大公司中有430家在亚市设立了分公司。1800多家工厂生产包括飞机、汽车、家具,纺织品、化学原料,食品、纸、钢铁等3500多种产品。该市IT业工作岗位数量增长较快。2011年,大亚特兰大地区GDP约2833亿美元,居全美各都会区第10位。对外出口额约172亿美元,居全美各都会区第18位,占全佐州出口总额的54.9%。前五大出口对象依次为:加拿大、墨西哥、新加坡、中国、日本。 20世纪人口在佐治亚州首府迁入后快速增加,除非裔美国人外,亚裔与西班牙语裔美国人也大量迁入。2010年人口普查显示亚市人口为420,003。人口密度为每平方英里(1232平方公里)3154人。了解更多
学校信息
暂无数据,请联系经纪人
社区信息
社区人口数
56,177
平均家庭收入
高于本州平均家庭收入71.74%
高于全美平均家庭收入59.36%
本地本州全美$84,462$49,179$53,000
大学及以上教育比例
本地本州全美42.1%34.9%36.7%
失业率
本地本州全美3.9%7.2%6.2%
蓝白领比例
  • 26.8%蓝领
  • 73.3%白领
生活成本指数
服务教育娱乐餐饮医疗住房整体交通公共事业全美平均117.6129.6110.8104.893.1105.6108.9107100.1100
注:价格指数全美范围内的平均值是100。如果该指数高于100则意味着该商品的价格高于全国平均水平。相应的,如果低于100则意味着该商品价格低于全国平均水平。
房屋贷款
房屋总价: $472,400
  • $1,609本金利息
  • $393房产税
  • $49保险费
$2,052
(月供)
首付
$
百分比
%
贷款计划30年固定利率
年利率
%
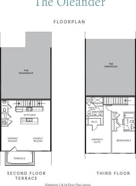
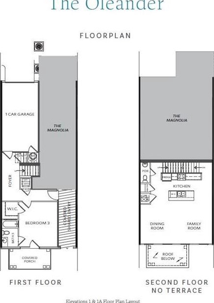
房源介绍
Celebrate the Season of Savings with $10,000 Toward Closing Costs — Discover the Oleander Plan built by The Providence Group. Move-In Ready! **Black Friday Special this weekend only receive an additional $7500 in Closing Cost with a TPG preferred Lender and Loan officer on contracts written this weekend and close by December 31st 2025** Welcome to the Oleander Plan, a beautifully designed three-story townhome offering 3 spacious bedrooms, 3.5 bathrooms, and 1,703 square feet of thoughtfully crafted living space. This luxury homesite showcases The Providence Group’s Cool Stone Design Collection, featuring elegant light gray cabinetry, stunning Calacatta Ultra quartz countertops, and durable Dogwood hardwood flooring throughout the main living level and hallways. Terrace Level: Enjoy a private bedroom with an ensuite bath and access to a covered patio—perfect for guests, a home office, or a personal fitness space. This level also includes a GE Profile 2-in-1 washer/dryer, offering added convenience. A one-car garage is located on this level and comes equipped with EV chargers already installed, making it ideal for modern living. Main Level: The open-concept layout seamlessly connects the family room, dining area, and chef-inspired kitchen, complete with 42” soft-close cabinetry, stainless GE appliances, tile backsplash, and designer lighting. A walk-out porch from the dining room offers a limited feature view of Market Square’s future retail space, adding charm and convenience. Additional pantry space ensures all your storage needs are met. Upper Level: Retreat to the Primary Suite, featuring a large walk-in closet, double vanities with quartz countertops, and a spa-like walk-in shower. An additional linen closet provides extra storage. A secondary bedroom with its own private bath completes the top floor. Market Square at Sawnee Village isn’t just a place to live—it’s a lifestyle. Enjoy walkable access to the Cumming City Center, with exciting new retail and dining options coming soon right at the community entrance. Experience low-maintenance urban living in the heart of Cumming, GA.[The Oleander]
展开全部
Listing Agent Info
Sarah Keel • The Providence Group Realty, LLC •  Phone: (404) 392-5969 •  Email: skeel@theprovidencegroup.com • View more info
Copyright © 2025 First Multiple Listing Service, Inc. All rights reserved. All information provided by the listing agent/broker is deemed reliable but is not guaranteed and should be independently verified.
联系经纪人
买方经纪人
*我是经纪人,想出现在这
APPLE TAN
谭博元 APPLE TAN
Virtual Properties Realty
点击查看经纪人详情
Claire Shoener
欧阳沁心 Claire Shoener
Harry Norman REALTORS
点击查看经纪人详情
CJ Wilson
陈静 CJ Wilson
America Realty Center Inc
点击查看经纪人详情
Steven Heng
王国伟 Steven Heng
Virtual Properties Realty.com
点击查看经纪人详情
买方经纪人
*我是经纪人,想出现在这
APPLE TAN
谭博元 APPLE TAN
Virtual Properties Realty
点击查看经纪人详情
Claire Shoener
欧阳沁心 Claire Shoener
Harry Norman REALTORS
点击查看经纪人详情
CJ Wilson
陈静 CJ Wilson
America Realty Center Inc
点击查看经纪人详情
Steven Heng
王国伟 Steven Heng
Virtual Properties Realty.com
点击查看经纪人详情
所有信息安全可靠
不收费用并非中介
实时更新详尽信息
专业平台让您放心
外居乐美国房产
外居乐美国房产网提供真实海外房源信息,涵盖海量美国房产、海外学区房与房源周边社区信息。并联合全球超过6268名海外房产经纪人,推出美国豪宅、别墅、公寓、住宅、土地等类型的海外房产投资项目。通过外居乐,买家不再受虚假房源的困扰,通过可靠的美国房产经纪人,放心找到实时在售美国房产。海外房产投资,就上外居乐!
425-896-8335
微信扫码
Wechat
获取每日新鲜热辣的海外房产投资资讯,请扫描二维码关注外居乐。
Download App
扫描下载APP
海外购房更便捷
WJL HomeServices LLC.
#20293
WJL HomeServices Inc.
CA BRE# 02040249
7 Springs Properties, Inc.
CA BRE#01884805
© 2015 外居乐 版权所有 | 沪ICP备15046544号-2