提交购房需求
外居乐为您提供专属的购房服务
扫描获取每日新鲜热辣的海外房产资讯
waijule2015
Wechat
扫描下载APP
海外购房更便捷
外居乐
App
Consultant
小乐
专业咨询顾问
查看地图
366 E Dixie Avenue SE, Marietta, GA, 30060

美国亚特兰大3室3卫独栋别墅

亚特兰大三室三卫独栋别墅  |  房产编号 A572054  |  发布于86天前
$719,000
约¥491万
$3,384 / 贷款月供
? / 投资回报率
基本信息
房屋类型独栋别墅
建筑面积2,158 平方英尺 (约 200 平方米)
土地面积13,068 平方英尺 (约 1,214 平方米)
建筑年代1906年
停车位数3
卧室数量3间
3/4卫浴数0间
MLS#7702700
单位价格$333/平方英尺 (约¥24,495/平方米)
房产税$860/月 (约¥5,873/月)
物业费--
预估月租金--
完整卫浴数2间
1/2卫浴数1间
交易状态待出售
投资回报率
8年年化投资回报率:?
现金购房出租净收益率:?
房屋增值
房屋总价
$719,000
首付比例
40.00%
持有年限
8年
预估年增值率
2.73%
过去十二个月房价趋势
--
收入与支出 / 月
预估租金
--
房产税
$860
物业费
$0
保险费
$74
维护费
$89
投资回报率仅供参考,各类参考数据来源于不同的政府数据库与商业数据库,外居乐不对数据准确负任何直接或间接的责任。
城市介绍
亚特兰大
亚特兰大Atlanta是美国佐治亚州首府及最大城市,也是富尔顿县的县政府驻地。人口463,878人(2015年)。亚特兰大是亚特兰大都会圈的文化和经济中心。大都会圈拥有人口5,610,733人,是美国第9大都市区。 亚特兰大是一座世界之城,在商业、金融、研发、科技、教育、媒体及娱乐领域都有着重大影响。其在世界排名第36大城市,在美国排名第8大经济体,GDP总产值高达3040亿美金。亚特兰大的经济非常多样化,占主导地位的有:物流,商业服务,媒体,信息产业等。 亚市被誉为“新南方之都”,上百家大公司总部设在这里,包括可口可乐、家得宝、达美航空、联合包裹、假日酒店及南方贝尔等。全美500家大公司中有430家在亚市设立了分公司。1800多家工厂生产包括飞机、汽车、家具,纺织品、化学原料,食品、纸、钢铁等3500多种产品。该市IT业工作岗位数量增长较快。2011年,大亚特兰大地区GDP约2833亿美元,居全美各都会区第10位。对外出口额约172亿美元,居全美各都会区第18位,占全佐州出口总额的54.9%。前五大出口对象依次为:加拿大、墨西哥、新加坡、中国、日本。 20世纪人口在佐治亚州首府迁入后快速增加,除非裔美国人外,亚裔与西班牙语裔美国人也大量迁入。2010年人口普查显示亚市人口为420,003。人口密度为每平方英里(1232平方公里)3154人。了解更多
学校信息
学校评分学校名称类型年级距离
3
Park Street Elementary School
小学
PK-5
1.20km
以上学校和学区信息仅供参考,如需确认,请通过经纪人或者直接与学校联系
社区信息
社区人口数
35,259
社区安全指数
安全
平均家庭收入
低于本州平均家庭收入24.11%
低于全美平均家庭收入29.58%
本地本州全美$37,324$49,179$53,000
大学及以上教育比例
本地本州全美19.4%34.9%36.7%
失业率
本地本州全美4.1%7.2%6.2%
蓝白领比例
  • 58.0%蓝领
  • 42.0%白领
生活成本指数
服务教育娱乐餐饮医疗住房整体交通公共事业全美平均85.473.470.580.267.182.477.977.660.8100
注:价格指数全美范围内的平均值是100。如果该指数高于100则意味着该商品的价格高于全国平均水平。相应的,如果低于100则意味着该商品价格低于全国平均水平。
房屋贷款
房屋总价: $719,000
  • $2,449本金利息
  • $860房产税
  • $74保险费
$3,384
(月供)
首付
$
百分比
%
贷款计划30年固定利率
年利率
%
房源介绍
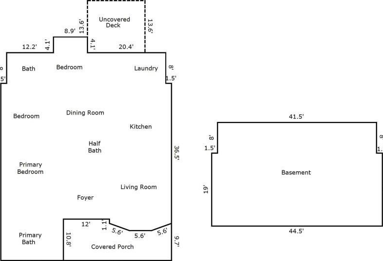
Historic Marietta bungalow built in 1906 and fully renovated two years ago, preserving its original charm while adding today's modern comforts. This home makes a striking first impression from the landscaped front yard to the brick walkway and covered front porch with copper gas lanterns. Inside, an open, inviting floor plan features 11-foot ceilings, hardwood flooring throughout, and large windows with custom woven shades and blinds. The family room features the original decorative double-sided fireplace, creating a warm and inviting focal point. The beautifully designed kitchen features custom cabinetry with soft-close drawers and doors, separate pantry cabinets, Quartz countertops, an oversized island with a breakfast bar, GE stainless steel appliances, including a gas cooktop, and brushed-brass lighting fixtures. A separate dining room sits just off the kitchen and includes a convenient half bath, perfect for entertaining. The owner's suite features two separate closets and a stunning en-suite bathroom with a double vanity, a ceramic-tile walk-in shower with a glass door, and a clawfoot soaking tub with an elegant floor-mounted brass tub filler and a hand-held sprayer. The oversized second bedroom includes double closets and an original decorative fireplace. It opens to a Jack-and-Jill bath with a double vanity and a ceramic tile walk-in shower, shared with the third bedroom, which is also accessible from the dining room. A separate laundry room with a utility sink adds everyday convenience. The unfinished daylight basement offers abundant storage or workshop space and can easily be finished into a recreation room or home office. The spacious attic also provides excellent potential for future expansion. Outdoors, enjoy a private, fenced backyard with mature trees and a deck ideal for relaxing or entertaining. The new driveway and parking pad accommodate 3 daily vehicles, and up to 8 for gatherings, with a new backyard gate that enhances privacy. Located on a charming street just steps from the Mountain to River (M2R) Trail, this home offers direct access to 13.5 miles of multi-use trails stretching from Kennesaw Mountain National Battlefield Park to the Chattahoochee River National Recreation Area. Nearby Larry Bell Park features baseball and softball fields, tennis and pickleball courts, playgrounds, a walking track, and picnic areas. Historic Marietta Square is just a one-mile walk or bike ride away, offering exceptional dining, bars, festivals, live music, theatre, and comedy shows. Own a beautifully restored piece of Marietta history and create lasting memories in this exceptional home!
展开全部
Listing Agent Info
Eric Decker • Realty East Cobb dba Keller Williams Realty Atlanta North •  Phone: (678) 337-3233 •  Email: ericdecker@kw.com • View more info
Copyright © 2026 First Multiple Listing Service, Inc. All rights reserved. All information provided by the listing agent/broker is deemed reliable but is not guaranteed and should be independently verified.
联系经纪人
买方经纪人
*我是经纪人,想出现在这
Denise Lo
盧輝汶 Denise Lo
LANDMARK COMM.& RES. PROP
点击查看经纪人详情
Mingwei Li
李铭伟 Mingwei Li
Virtual Properties Realty
点击查看经纪人详情
Sophia He
Sophia 何博士房地产 Sophia He
ATLFDC Realty - 亚特兰大房地产
点击查看经纪人详情
Miao Yu
于淼 Miao Yu
CRYE-LEIKE REALTY, INC.
点击查看经纪人详情
买方经纪人
*我是经纪人,想出现在这
Denise Lo
盧輝汶 Denise Lo
LANDMARK COMM.& RES. PROP
点击查看经纪人详情
Mingwei Li
李铭伟 Mingwei Li
Virtual Properties Realty
点击查看经纪人详情
Sophia He
Sophia 何博士房地产 Sophia He
ATLFDC Realty - 亚特兰大房地产
点击查看经纪人详情
Miao Yu
于淼 Miao Yu
CRYE-LEIKE REALTY, INC.
点击查看经纪人详情
所有信息安全可靠
不收费用并非中介
实时更新详尽信息
专业平台让您放心
外居乐美国房产
外居乐美国房产网提供真实海外房源信息,涵盖海量美国房产、海外学区房与房源周边社区信息。并联合全球超过6268名海外房产经纪人,推出美国豪宅、别墅、公寓、住宅、土地等类型的海外房产投资项目。通过外居乐,买家不再受虚假房源的困扰,通过可靠的美国房产经纪人,放心找到实时在售美国房产。海外房产投资,就上外居乐!
425-896-8335
微信扫码
Wechat
获取每日新鲜热辣的海外房产投资资讯,请扫描二维码关注外居乐。
Download App
扫描下载APP
海外购房更便捷
WJL HomeServices LLC.
#20293
WJL HomeServices Inc.
CA BRE# 02040249
7 Springs Properties, Inc.
CA BRE#01884805
© 2015 外居乐 版权所有 | 沪ICP备15046544号-2