提交购房需求
外居乐为您提供专属的购房服务
扫描获取每日新鲜热辣的海外房产资讯
waijule2015
Wechat
扫描下载APP
海外购房更便捷
外居乐
App
Consultant
小乐
专业咨询顾问
查看地图
Thimbleweed Drive, Haslet, TX, 76052

美国达拉斯4室3卫独栋别墅

达拉斯四室三卫独栋别墅  |  房产编号 D1839291  |  发布于144天前
$579,900
约¥405万
$3,086 / 贷款月供
? / 投资回报率
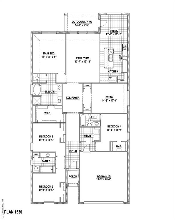
基本信息
房屋类型独栋别墅
建筑面积8,347 平方英尺 (约 775 平方米)
土地面积8,347 平方英尺 (约 775 平方米)
建筑年代2025年
停车位数--
卧室数量4间
3/4卫浴数0间
MLS#21033802
单位价格$69/平方英尺 (约¥5,226/平方米)
房产税--
物业费$145/月 (约¥1,013/月)
预估月租金--
完整卫浴数3间
1/2卫浴数0间
交易状态待出售
投资回报率
8年年化投资回报率:?
现金购房出租净收益率:?
房屋增值
房屋总价
$579,900
首付比例
40.00%
持有年限
8年
预估年增值率
4.09%
过去十二个月房价趋势
--
收入与支出 / 月
预估租金
--
房产税
$1,050
物业费
$145
保险费
$60
维护费
$72
投资回报率仅供参考,各类参考数据来源于不同的政府数据库与商业数据库,外居乐不对数据准确负任何直接或间接的责任。
城市介绍
达拉斯
达拉斯Dallas,是美国德克萨斯州第三大城市,美国第九大城市,达拉斯县首府,城市面积共385平方英里 (997平方千米),其中水域面积约占11.03%。美国人口普查显示,至2010年,达拉斯的人口为1,197,816人。达拉斯与沃斯堡、阿灵顿组成达拉斯-沃斯堡-阿灵顿城市群,覆盖12个县,总人口654万人 (2015年数据),是美国第四大城市群。目前德州约有四分之一的人住在大达拉斯-沃斯堡都会区里,而达拉斯占整个大都会区的五分之一人口。1999年,达拉斯被拉夫堡大学的全球化与世界级城市研究小组与网络列为第三类世界级城市,即小型世界级城市。 达拉斯创立于1814年,1856年正式建市,主要经济支柱为石油工业、电信业、计算机技术、银行业和航空运输业。达拉斯位于美国内陆,缺少水上交通线,其蓬勃的经济发展来自于强大的石油和棉花工业。 达拉斯地区是美国南部的医疗,教育和金融中心,2014年的GDP总量为5040亿美元,位居全美第五。 位于德州北部,达拉斯是美国南部主要都市圈,以及美国最大的内陆都市圈。达拉斯随着1870年后铁路陆续通达,发展成为全国主要棉花市场之一。1930年东南郊发现大油田后,城市经济进一步增长。现为美国南部重要的石油城,城市东、西大油田所产的原油经输油管汇集本市。炼油、石油化工、石油机械等工业发达,在市区设有办事处的石油公司多达600家左右。电子、电器、飞机、导弹等新兴工业,以及纺织、服装、食品、农业机械等传统工业,均颇具规模。全市有近3000家工厂。金融与保险业发达,大市区有第11联邦储备银行等约100家银行,为全国性的石油金融中心之一。 达拉斯市内的主要交通工具是私人汽车。此外,市内拥有德克萨斯州最早建成的轻轨列车系统。达拉斯是数条重要州际高速公路的交汇处,20号、30号、35E号及45号州际公路均经过达拉斯。了解更多
学校信息
学校评分学校名称类型年级距离
10
Haslet Elementary School
小学
PK-5
2.40km
以上学校和学区信息仅供参考,如需确认,请通过经纪人或者直接与学校联系
社区信息
社区人口数
15,990
社区安全指数
非常安全
平均家庭收入
高于本州平均家庭收入99.92%
高于全美平均家庭收入95.78%
本地本州全美$103,761$51,900$53,000
大学及以上教育比例
本地本州全美37.1%33.1%36.7%
失业率
本地本州全美3.9%5.2%6.2%
蓝白领比例
  • 32.5%蓝领
  • 67.5%白领
生活成本指数
服务教育娱乐餐饮医疗住房整体交通公共事业全美平均109.7119.3107.399.985.8100.9104.2102.993.4100
注:价格指数全美范围内的平均值是100。如果该指数高于100则意味着该商品的价格高于全国平均水平。相应的,如果低于100则意味着该商品价格低于全国平均水平。
房屋贷款
房屋总价: $579,900
  • $1,975本金利息
  • $1,050房产税
  • $60保险费
$3,086
(月供)
首付
$
百分比
%
贷款计划30年固定利率
年利率
%
房源介绍
Looking for a home that has it all? Look no further! From the grand entryway to the open concept kitchen and family room, this will become a place to entertain family and friends. The gourmet kitchen features a 5-burner gas cooktop, built-in stainless-steel appliances, eat-in island, beautiful quartz countertops and a spacious pantry. Create your workspace sanctuary in the sizeable study, conveniently close to the central living space. The generous family room features a wall of windows allowing natural light to flood the room. The main suite offers a vaulted ceiling, dual vanities, a separate shower, large walk-in closet and a luxurious soaker tub to relax after a long day! The covered outdoor living space will become your private getaway. Additional features of this home are 8-foot doors throughout, wood floors in the common areas, carpet and tile. A two-car garage with a brick and stone exterior complete this remarkable home sitting on a corner lot. Don't miss this amazing opportunity! Come see this one of kind home. Sweetgrass in Haslet, TX is part of the award winning NISD school district. Easy freeway access to Fort Worth and DFW airport makes this a must-see home. Start making memories in your new American Legend Home!!
展开全部
Listing Agent Info
Courtesy of Eric Stanley, American Legend Homes
联系经纪人
买方经纪人
*我是经纪人,想出现在这
Julie Vines
茱莉 Julie Vines
JP & Associates Realtors
点击查看经纪人详情
Shan Guo
过山 Shan Guo
UNIVERSAL MORTGAGE, GUO REALTY
点击查看经纪人详情
Lingqian Zhuo
卓灵倩 Lingqian Zhuo
Century21
点击查看经纪人详情
Thomas  Su
Thomas Su Thomas Su
Keller Williams
点击查看经纪人详情
Copyright © 2026 North Texas Real Estate Information Systems, Inc. All rights reserved. All information provided by the listing agent/broker is deemed reliable but is not guaranteed and should be independently verified.
       By searching, you agree to the MLS Terms of Use.
买方经纪人
*我是经纪人,想出现在这
Julie Vines
茱莉 Julie Vines
JP & Associates Realtors
点击查看经纪人详情
Shan Guo
过山 Shan Guo
UNIVERSAL MORTGAGE, GUO REALTY
点击查看经纪人详情
Lingqian Zhuo
卓灵倩 Lingqian Zhuo
Century21
点击查看经纪人详情
Thomas  Su
Thomas Su Thomas Su
Keller Williams
点击查看经纪人详情
所有信息安全可靠
不收费用并非中介
实时更新详尽信息
专业平台让您放心
外居乐美国房产
外居乐美国房产网提供真实海外房源信息,涵盖海量美国房产、海外学区房与房源周边社区信息。并联合全球超过6268名海外房产经纪人,推出美国豪宅、别墅、公寓、住宅、土地等类型的海外房产投资项目。通过外居乐,买家不再受虚假房源的困扰,通过可靠的美国房产经纪人,放心找到实时在售美国房产。海外房产投资,就上外居乐!
425-896-8335
微信扫码
Wechat
获取每日新鲜热辣的海外房产投资资讯,请扫描二维码关注外居乐。
Download App
扫描下载APP
海外购房更便捷
WJL HomeServices LLC.
#20293
WJL HomeServices Inc.
CA BRE# 02040249
7 Springs Properties, Inc.
CA BRE#01884805
© 2015 外居乐 版权所有 | 沪ICP备15046544号-2