提交购房需求
外居乐为您提供专属的购房服务
扫描获取每日新鲜热辣的海外房产资讯
waijule2015
Wechat
扫描下载APP
海外购房更便捷
外居乐
App
Consultant
小乐
专业咨询顾问
查看地图
769 PARSONS MOORING COURT, Seffner, FL, 33584

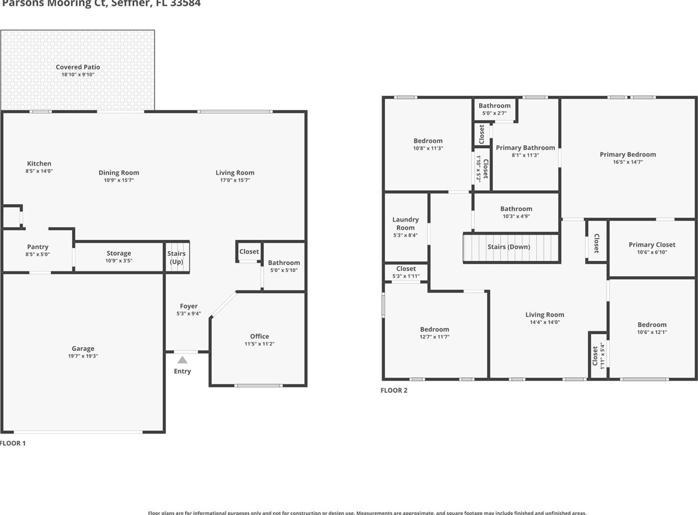
美国奥兰多4室3卫独栋别墅

奥兰多四室三卫独栋别墅  |  房产编号 MC814824  |  发布于34天前
$549,000
约¥375万
$2,460 / 贷款月供
? / 投资回报率
基本信息
房屋类型独栋别墅
建筑面积2,416 平方英尺 (约 224 平方米)
土地面积6,098 平方英尺 (约 567 平方米)
建筑年代2021年
停车位数--
卧室数量4间
3/4卫浴数0间
MLS#TB8481447
单位价格$227/平方英尺 (约¥16,721/平方米)
房产税$532/月 (约¥3,643/月)
物业费--
预估月租金--
完整卫浴数2间
1/2卫浴数1间
交易状态待出售
投资回报率
8年年化投资回报率:?
现金购房出租净收益率:?
房屋增值
房屋总价
$549,000
首付比例
40.00%
持有年限
8年
预估年增值率
3.80%
过去十二个月房价趋势
--
收入与支出 / 月
预估租金
--
房产税
$532
物业费
$0
保险费
$57
维护费
$68
投资回报率仅供参考,各类参考数据来源于不同的政府数据库与商业数据库,外居乐不对数据准确负任何直接或间接的责任。
城市介绍
奥兰多
奥兰多市 Orlando,位于美国佛罗里达州中部,是世界上最好的休闲旅游城市之一,这里全年阳光明媚、天气温和,夏季平均气温27.2℃,冬季平均气温17.8℃。旅游、科技、医疗、养老是奥兰多发展的四大产业。 奥兰多都市圈是典型中型城市,是世界上最好的度假休闲旅游城市,比起纽约洛杉矶,这里所得税、消费税,生活成本低,加上气候温和、城市及周边自然环境好,因此更适宜居住。相比同在佛州的迈阿密,这里人口不那么密集,治安更有保障,房价合理,具有更大的投资价值。 都市圈的核心无疑是奥兰多市。由于奥兰多主要的居民区都在郊区,因此市区常住人口仅仅只有238,300人。而每年来到这里的海内外游客达到5100万,其中包括3600万的境外游客。因此,奥兰多国际机场(市区东南)成为全国最繁忙的机场之一。奥兰多是著名的国际旅游中心,也是全美最繁忙的会展和会议举办地之一,每年吸引着8000多万游客入境,成就一年52星期不间断的租赁周期。 总体来看,奥兰多作为一个二线城市,房价并不昂贵。城市圈内最好的房子,集中在奥维耶多(东北)、医疗城(东南)和主题公园区(西南)。这些区域同时也是交易最频繁,涨幅较快的区域。根据当地房产中介协会的数据,佛罗里达州的房产受到了海外各国投资人的青睐,人数最多的是加拿大人占到总人数的30%,他们热爱佛州的阳光和温暖的冬季。接着是来自英国、委内瑞拉、巴西、阿根廷和德国的投资人。中国投资人在佛州买房的人数近5年快速地增加,已经达到总人数的5.7%。选择的房产多数是独栋别墅和联排别墅,用于出租换取回报。最新数据显示,奥兰多的房屋中位数挂牌价为17.9万美元,年涨幅2.9%,中位数成交价18.6万美元,年涨幅达31.9%。近几年来,很多嗅觉敏锐的华人买家纷纷入场,保守估计生活在奥兰多的华人已有5万人以上了解更多
学校信息
暂无数据,请联系经纪人
社区信息
社区人口数
25,706
社区安全指数
非常安全
平均家庭收入
高于本州平均家庭收入20.83%
高于全美平均家庭收入7.05%
本地本州全美$56,736$46,956$53,000
大学及以上教育比例
本地本州全美20.2%35.3%36.7%
失业率
本地本州全美3.9%7.0%6.2%
蓝白领比例
  • 39.8%蓝领
  • 60.2%白领
生活成本指数
服务教育娱乐餐饮医疗住房整体交通公共事业全美平均9592.790.491.985.79392.392.285.8100
注:价格指数全美范围内的平均值是100。如果该指数高于100则意味着该商品的价格高于全国平均水平。相应的,如果低于100则意味着该商品价格低于全国平均水平。
房屋贷款
房屋总价: $549,000
  • $1,870本金利息
  • $532房产税
  • $57保险费
$2,460
(月供)
首付
$
百分比
%
贷款计划30年固定利率
年利率
%
房源介绍
The Ultimate Entertainer’s Dream | Pool, Outdoor Kitchen & Flex Space The Lifestyle This is it—the home where family and friends gather to celebrate holidays, birthdays, and those perfect sunny Florida days by the sparkling pool. Designed for those who love to host, this residence strikes the perfect balance between luxury and comfort. Safety fence for the safety of the non-swimmers. Chef’s Outdoor Oasis The lanai is a true extension of the home, featuring a high-end outdoor kitchen that will impress any grill master. Premium Appliances: Massive stainless steel Blaze Griddle and a Traeger Wood-Fired Grill. Double pane windows, blinds, drapes, window treatments Convenience: Integrated beverage fridge and expansive quartz countertops for easy prep and serving. Seamless Interior Design Inside, the open-concept floor plan creates an effortless flow, perfect for large gatherings. Gourmet Kitchen: Featuring stainless steel appliances, granite countertops, and a massive island that overlooks the dining area and family room. The Dry Bar: A modern beverage station with dedicated wine refrigeration—your go-to spot for cocktail hour. Space for Everyone The "Fun Zone": A versatile upstairs Flex Space. Whether you need a media room, a playroom, or a teen hangout, it’s perfectly positioned to keep the energy contained but within earshot. Primary Suite: A generously sized sanctuary designed for relaxation, complete with a massive walk-in closet. Accommodations: Three additional oversized bedrooms provide plenty of room for family and guests. Don’t miss the chance to own the "go-to" house for your entire social circle. Schedule your private showing today and start planning your first housewarming party! You will enjoy the benefits of No CDD and low monthly HOA fees. ADT security wired.
展开全部
Listing Agent Info
Bill Whiteside • LPT Realty, LLC. •  Phone: (877) 366-2213 •  Email: Bill.Whiteside@LPTRealty.com • View more info
Copyright © 2026 My Florida Regional MLS All rights reserved. All information provided by the listing agent/broker is deemed reliable but is not guaranteed and should be independently verified.
联系经纪人
买方经纪人
*我是经纪人,想出现在这
Sarah Mei
梅小艾 Sarah Mei
美的环球地产,Mei's Global Realty Inc.
点击查看经纪人详情
Erika gao
高冬颖 Erika gao
Your Home Sold Guaranteed Orlando
点击查看经纪人详情
Li Ju Huang
Li Ju Huang
America Real Estate Company, LLC
点击查看经纪人详情
Huizi  Li
李惠子 Huizi Li
君择地产
点击查看经纪人详情
买方经纪人
*我是经纪人,想出现在这
Sarah Mei
梅小艾 Sarah Mei
美的环球地产,Mei's Global Realty Inc.
点击查看经纪人详情
Erika gao
高冬颖 Erika gao
Your Home Sold Guaranteed Orlando
点击查看经纪人详情
Li Ju Huang
Li Ju Huang
America Real Estate Company, LLC
点击查看经纪人详情
Huizi  Li
李惠子 Huizi Li
君择地产
点击查看经纪人详情
所有信息安全可靠
不收费用并非中介
实时更新详尽信息
专业平台让您放心
外居乐美国房产
外居乐美国房产网提供真实海外房源信息,涵盖海量美国房产、海外学区房与房源周边社区信息。并联合全球超过6268名海外房产经纪人,推出美国豪宅、别墅、公寓、住宅、土地等类型的海外房产投资项目。通过外居乐,买家不再受虚假房源的困扰,通过可靠的美国房产经纪人,放心找到实时在售美国房产。海外房产投资,就上外居乐!
425-896-8335
微信扫码
Wechat
获取每日新鲜热辣的海外房产投资资讯,请扫描二维码关注外居乐。
Download App
扫描下载APP
海外购房更便捷
WJL HomeServices LLC.
#20293
WJL HomeServices Inc.
CA BRE# 02040249
7 Springs Properties, Inc.
CA BRE#01884805
© 2015 外居乐 版权所有 | 沪ICP备15046544号-2