房源介绍
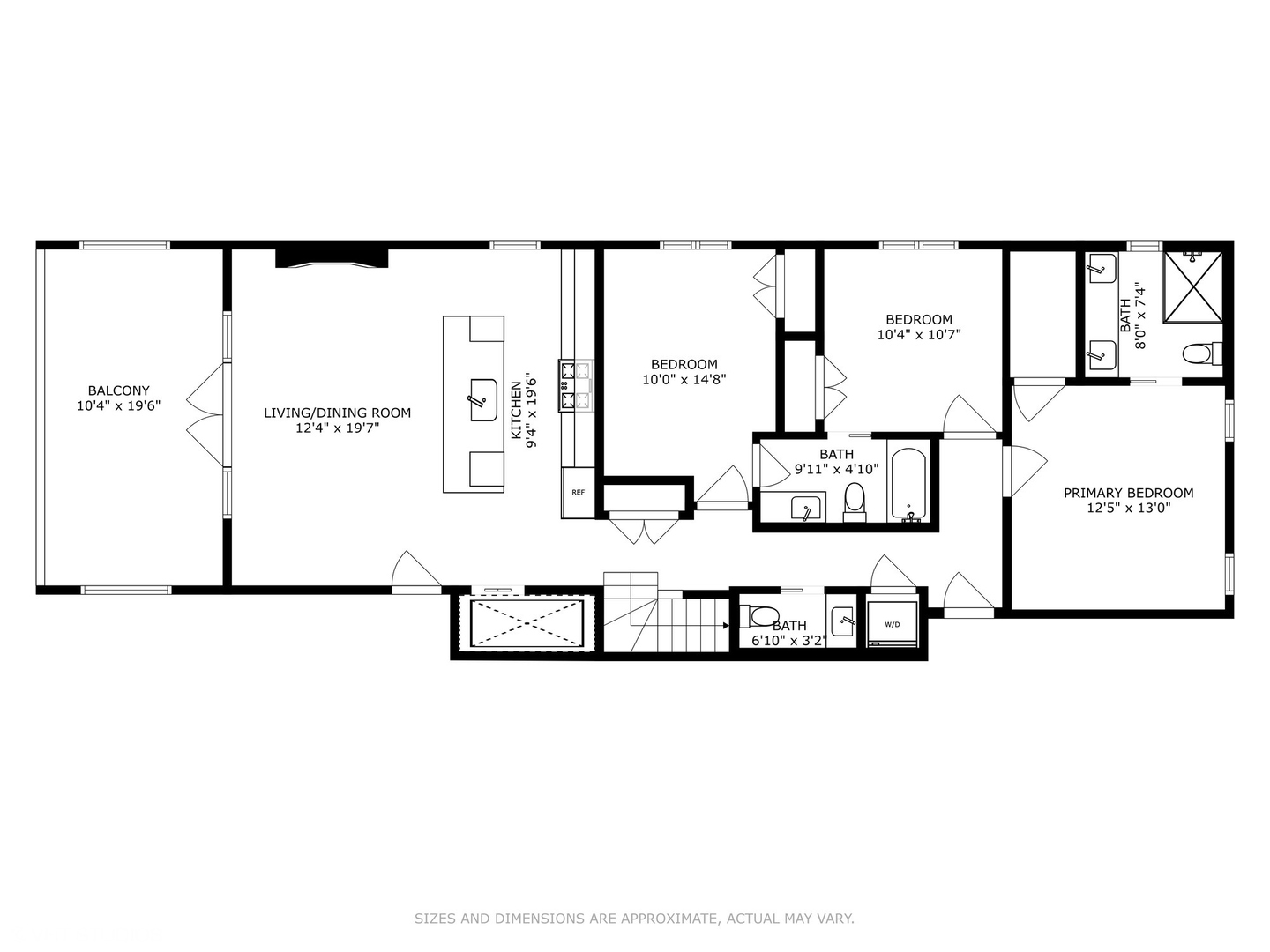
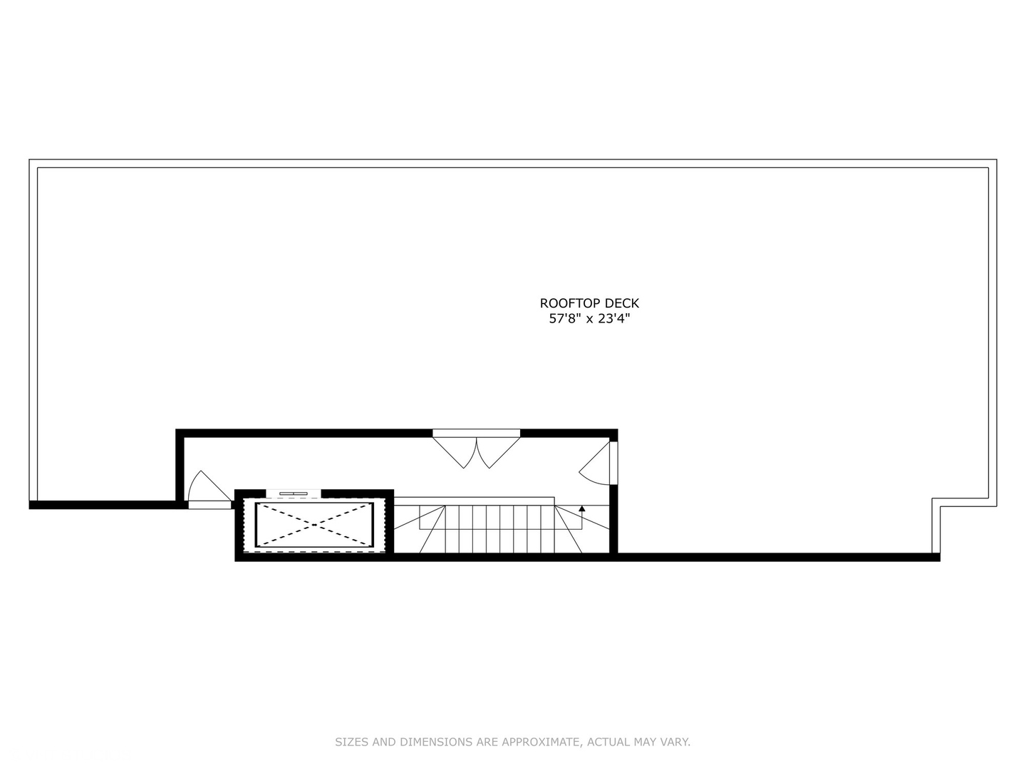
This penthouse, duplex up condo has been elevated in so many ways creating the epitome of luxury! With private elevator access opening directly into 1500 sq. ft. of interior space, a 1200 square foot roof top deck and a 200 square foot terrace, you immediately sense the the luxurious lifestyle you will be living! The living room, dining area and kitchen and are enhanced by 9 foot ceilings, tons of natural light through the oversized terrace glass doors, a gas fireplace complimented by quartz and a chic vertical-wood surround. The open concept encompasses your custom kitchen featuring Amish cabinetry which includes 42 upper cabinets, full extension/soft-close drawers, under and upper cabinet lighting, a Wolf oven with 4 burners and a infrared griddle complimented with a pot-filler, Zephyr range hood, Wolf microwave, Asko dishwasher, Sub Zero Fridge, a beverage center and a quartz waterfall 10' island with seating for 4+. The through hall floor plan takes you to 3 bedrooms and 2.1 bathrooms. The primary suite has a generous size walk-in closet and a spa like bathroom with a floating double bowl vanity with a quartz counter top, heated floors and a oversized glass enclosed curb-less steam shower with a shower head, rain head and hand shower. Bedrooms 2 and 3 have fantastic closet space and serving both bedrooms is a jack-and-jill bathroom with a nice size soaking tub and a oversized floating vanity covered with a quartz countertop. There is a powder room and laundry closet off of the main hallway. Head up to the roof top deck via your elevator or the stairs and enjoy the enormous outdoor space while taking in unobstructed City views to the north, east and west! Enhancing the roof top space are Sonos speakers, a T.V. mount and wiring, a gas line for a barbeque grill and 36 X 36 porcelain pavers throughout! Off of the main living area is the large terrace that has a gas heater, Sonos speakers and 36 X 36 porcelain pavers. The list of custom finishes includes 5 wide white oak flooring, 8' interior doors, custom lighting and plumbing fixtures throughout, Sonos speakers in the primary bedroom & bathroom, living room, terrace and rooftop, video intercom system, heated garage, driveway and walkway...and so much more...a full list of specs is available under Additional Information. Living in Old Town gives you the ultimate City living with an urban feel...everything is right out your front door...dining, shopping, public transportation/Sedgwick station Brown & Purple Line and all of the everyday conveniences you could want and need. This location has a 99 Walk Score!
展开全部The data relating to real estate for sale on this website comes in part from the Broker Reciprocity program of Midwest Real Estate Data LLC. Real Estate listings held by brokerage firms other than Concentric Realty are marked with the Broker Reciprocity logo or the Broker Reciprocity thumbnail logo (a little black house) and detailed information about them includes the names of the listing brokers. Some properties which appear for sale on this website may subsequently have sold and may no longer be available. The information being provided is for consumers' personal, non-commercial use and may not be used for any purpose other than to identify prospective properties consumers may be interested in purchasing. Information deemed reliable but not guaranteed

Copyright © 2025 Midwest Real Estate Data LLC Concentric Realty. 1952 McDowell Road, Suite 109, IL, 60563. By searching, you agree to the
MLS Terms of Use.