房源介绍
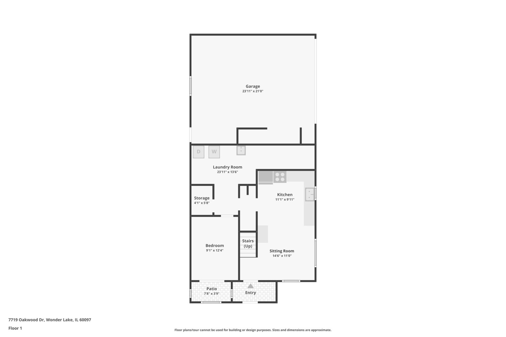
This 3-bed/2-bath Wooded Shores home offers space, privacy, & unbeatable versatility! Sitting on a large lot backed by trees, enjoy peaceful surroundings with no backyard neighbors-just nature at its best. Step inside & discover a smart, functional layout designed to make everyday living easier. The main level offers a bright eat-in kitchen, a first-floor bedroom with sunroom access, & a laundry room-because convenience matters. On the second floor, you'll find a spacious living room, primary bedroom, guest bedroom, & full bath. Now, here's what sets this home apart: the third-floor in-law suite above the attached 2-car garage. With a private entrance, full bath, kitchen area, & balcony, it's the perfect space for extended family or guests to enjoy privacy while staying close. Step outside to mature trees, two storage sheds, and a fenced side patio, perfect for relaxing or entertaining. The best homes bring people together, creating a space where memories are made. Ready to take the first step toward your next chapter?
展开全部The data relating to real estate for sale on this website comes in part from the Broker Reciprocity program of Midwest Real Estate Data LLC. Real Estate listings held by brokerage firms other than Concentric Realty are marked with the Broker Reciprocity logo or the Broker Reciprocity thumbnail logo (a little black house) and detailed information about them includes the names of the listing brokers. Some properties which appear for sale on this website may subsequently have sold and may no longer be available. The information being provided is for consumers' personal, non-commercial use and may not be used for any purpose other than to identify prospective properties consumers may be interested in purchasing. Information deemed reliable but not guaranteed

Copyright © 2025 Midwest Real Estate Data LLC Concentric Realty. 1952 McDowell Road, Suite 109, IL, 60563. By searching, you agree to the
MLS Terms of Use.