房源介绍
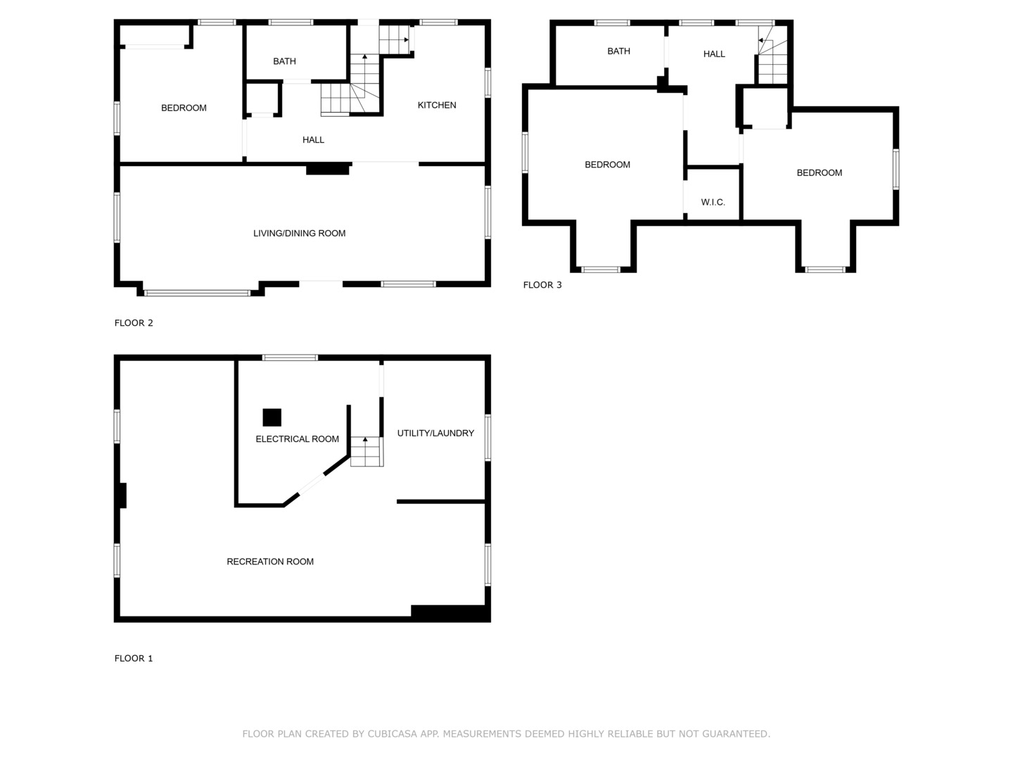
Charming and fully remodeled Cape Cod home, featuring modern updates throughout while maintaining classic character. The spacious main floor boasts beautiful hardwood floors, creating a warm and inviting atmosphere. The newly renovated kitchen showcases sleek stainless steel appliances, perfect for cooking and entertaining. Upstairs, you'll find cozy bedrooms with brand-new carpet, and two fully remodeled bathrooms offering stylish finishes and comfort. The finished basement adds extra living space, ideal for a home office, playroom, or cozy den. With abundant natural light streaming through the many windows, this home feels bright and airy. Don't miss the opportunity to own this thoughtfully updated home with timeless appeal!
展开全部The data relating to real estate for sale on this website comes in part from the Broker Reciprocity program of Midwest Real Estate Data LLC. Real Estate listings held by brokerage firms other than Concentric Realty are marked with the Broker Reciprocity logo or the Broker Reciprocity thumbnail logo (a little black house) and detailed information about them includes the names of the listing brokers. Some properties which appear for sale on this website may subsequently have sold and may no longer be available. The information being provided is for consumers' personal, non-commercial use and may not be used for any purpose other than to identify prospective properties consumers may be interested in purchasing. Information deemed reliable but not guaranteed

Copyright © 2025 Midwest Real Estate Data LLC Concentric Realty. 1952 McDowell Road, Suite 109, IL, 60563. By searching, you agree to the
MLS Terms of Use.