


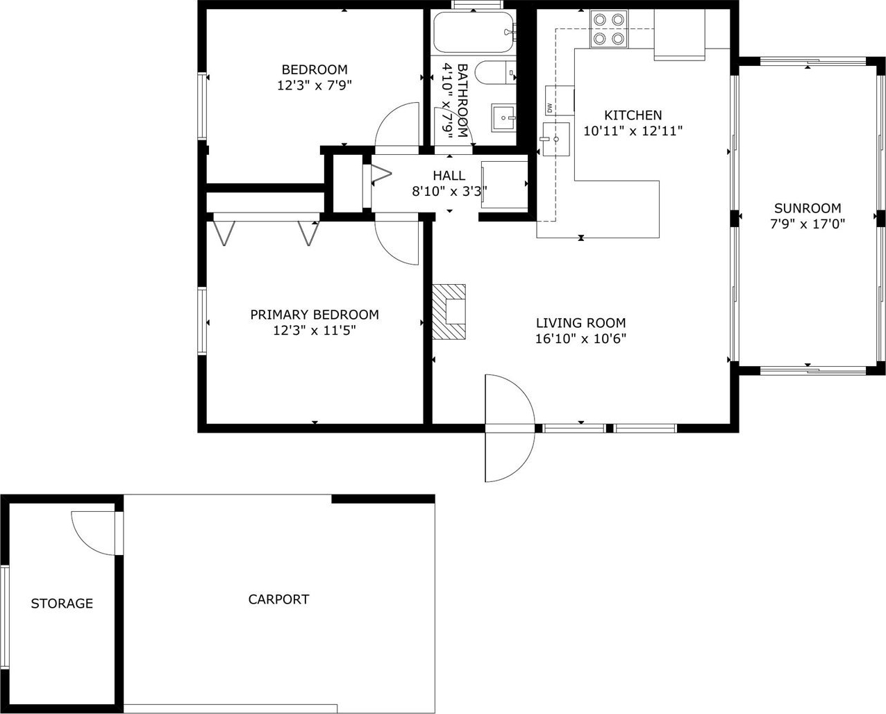
| 房屋类型 | 独栋别墅 | |
| 建筑面积 | 848 平方英尺 (约 79 平方米) | |
| 土地面积 | 4,792 平方英尺 (约 445 平方米) | |
| 建筑年代 | 1961年 | |
| 停车位数 | -- | |
| 卧室数量 | 2间 | |
| 3/4卫浴数 | 0间 |
| MLS# | 126081008 | |
| 单位价格 | $507/平方英尺 (约¥37,785/平方米) | |
| 房产税 | $219/月 (约¥1,518/月) | |
| 物业费 | -- | |
| 预估月租金 | -- | |
| 完整卫浴数 | 1间 | |
| 1/2卫浴数 | 0间 | |
| 交易状态 | 待出售 |
| 房屋增值 | |
|---|---|
房屋总价 | $430,000 |
首付比例 | 40.00% |
持有年限 | 8年 |
预估年增值率 | 5.60% |
过去十二个月房价趋势 | 18.32% |
| 收入与支出 / 月 | |
|---|---|
预估租金 | -- |
房产税 | $219 |
物业费 | $0 |
保险费 | $44 |
维护费 | $53 |
| 学校评分 | 学校名称 | 类型 | 年级 | 距离 |
|---|---|---|---|---|
9 | Oregon City High School | 高中 | 9-12 | 5.11km |


