提交购房需求
外居乐为您提供专属的购房服务
扫描获取每日新鲜热辣的海外房产资讯
waijule2015
Wechat
扫描下载APP
海外购房更便捷
外居乐
App
Consultant
小乐
专业咨询顾问
查看地图
8401 SW 195TH PL, Beaverton, OR, 97007

美国波特兰比弗顿5室4卫独栋别墅

比弗顿五室四卫独栋别墅  |  房产编号 P196307  |  发布于78天前
$729,000
约¥513万
$3,304 / 贷款月供
? / 投资回报率
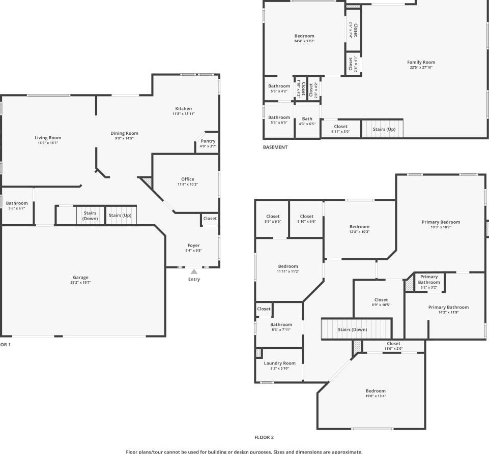
基本信息
房屋类型独栋别墅
建筑面积3,464 平方英尺 (约 322 平方米)
土地面积5,663 平方英尺 (约 526 平方米)
建筑年代2004年
停车位数--
卧室数量5间
3/4卫浴数0间
MLS#612852728
单位价格$210/平方英尺 (约¥15,950/平方米)
房产税$745/月 (约¥5,248/月)
物业费--
预估月租金--
完整卫浴数3间
1/2卫浴数1间
交易状态待出售
投资回报率
8年年化投资回报率:?
现金购房出租净收益率:?
房屋增值
房屋总价
$729,000
首付比例
40.00%
持有年限
8年
预估年增值率
5.00%
过去十二个月房价趋势
3.64%
收入与支出 / 月
预估租金
--
房产税
$745
物业费
$0
保险费
$75
维护费
$91
投资回报率仅供参考,各类参考数据来源于不同的政府数据库与商业数据库,外居乐不对数据准确负任何直接或间接的责任。
城市介绍
波特兰比弗顿
波特兰是一座位于美国西北部的城市,地理位置在俄勒冈州威拉米特河汇入哥伦比亚河的入河口以南不远的地方。城市面积为145平方英里(380平方公里)。截至2016年,城市的人口估计为639,863人,是全美国人口第26多的城市。波特兰是俄勒冈州人口最多的城市,也是太平洋西北地区人口第三多的城市,仅次于华盛顿州的西雅图和加拿大的温哥华。整个波特兰都市地区的人口估计为2,230,735人,是全美第25大都市统计区。大约60%的人口居住在大波特兰地区。波特兰的别称是“玫瑰之城”(这个名字最早出自1905年的刘易斯和克拉克远征百年纪念博览会),这是因为波特兰的气候特别适宜于种植玫瑰,市内有许多玫瑰园,比如波特兰华盛顿公园里的国际玫瑰试验园。波特兰还有许多其他昵称,比如由于当年城市建设速度较快,砍伐树木剩下的树桩来不及被清理,城市周边布满树桩而被称为“树桩城”;由于河流和桥梁较多而被称为“桥城”、“河城”等等,并获评选为全美最适合育婴的城市。了解更多
学校信息
暂无数据,请联系经纪人
社区信息
社区人口数
55,503
社区安全指数
非常安全
平均家庭收入
高于本州平均家庭收入40.39%
高于全美平均家庭收入33.05%
本地本州全美$70,519$50,229$53,000
大学及以上教育比例
本地本州全美40.2%37.9%36.7%
失业率
本地本州全美3.5%4.5%5.0%
蓝白领比例
  • 30.3%蓝领
  • 69.7%白领
生活成本指数
服务教育娱乐餐饮医疗住房整体交通公共事业全美平均132.7148.1113.1112.696113.2115.8113.3102100
注:价格指数全美范围内的平均值是100。如果该指数高于100则意味着该商品的价格高于全国平均水平。相应的,如果低于100则意味着该商品价格低于全国平均水平。
房屋贷款
房屋总价: $729,000
  • $2,483本金利息
  • $745房产税
  • $75保险费
$3,304
(月供)
首付
$
百分比
%
贷款计划30年固定利率
年利率
%
房源介绍
Welcome to this beautifully maintained 5-bedroom, 3.5 bath home with a large 3 car garage. This home offers comfort, functionality, and stunning views. The thoughtful layout includes four spacious bedrooms upstairs (or 3 bedrooms & a bonus), a private office on the main level, and a bedroom with full bath on the lower level—perfect for multigenerational living or guest quarters. Each bedroom features oversized closets, providing abundant storage throughout.The luxurious owner's suite is a true retreat with a vaulted ceiling, cozy gas fireplace, and spa-inspired bathroom, complete with a soaking tub and separate shower. High ceilings throughout the home enhance the open, airy feel.The kitchen is designed for both everyday living and entertaining, featuring a gas cooktop with electric oven and seamless flow into the dining and living areas. Enjoy outdoor living at its finest with two expansive decks connected by a spiral staircase—ideal for gatherings, barbecues, or simply taking in the picturesque views of a nearby christmas tree lot and the mountain range beyond. The lower level family room is generously sized, offering flexible space for media, recreation, or extended family. Ziply Fiber provides 1G up/down for all your connectivity needs. Recent updates include a new 50-year roof with solar panels (installed 2024 with transferrable warranty), new decking & handrails on upper deck, and new front porch decking. Pride of ownership is evident in every detail of this home.
展开全部
Listing Agent Info
Holly Haber • Windermere West LLC. •  Phone: (503) 648-1169 •  Email: hhmd40@gmail.com • View more info
Copyright © 2025 Regional Multiple Listing Service All rights reserved. All information provided by the listing agent/broker is deemed reliable but is not guaranteed and should be independently verified.
联系经纪人
undefined undefined
小乐
外居乐专业咨询顾问
US (美国) +1
undefined undefined
小乐
外居乐专业咨询顾问
US (美国) +1
所有信息安全可靠
不收费用并非中介
实时更新详尽信息
专业平台让您放心
外居乐美国房产
外居乐美国房产网提供真实海外房源信息,涵盖海量美国房产、海外学区房与房源周边社区信息。并联合全球超过6268名海外房产经纪人,推出美国豪宅、别墅、公寓、住宅、土地等类型的海外房产投资项目。通过外居乐,买家不再受虚假房源的困扰,通过可靠的美国房产经纪人,放心找到实时在售美国房产。海外房产投资,就上外居乐!
425-896-8335
微信扫码
Wechat
获取每日新鲜热辣的海外房产投资资讯,请扫描二维码关注外居乐。
Download App
扫描下载APP
海外购房更便捷
WJL HomeServices LLC.
#20293
WJL HomeServices Inc.
CA BRE# 02040249
7 Springs Properties, Inc.
CA BRE#01884805
© 2015 外居乐 版权所有 | 沪ICP备15046544号-2