提交购房需求
外居乐为您提供专属的购房服务
扫描获取每日新鲜热辣的海外房产资讯
waijule2015
Wechat
扫描下载APP
海外购房更便捷
外居乐
App
Consultant
小乐
专业咨询顾问
查看地图
14214 NE 42ND CIR, Vancouver, WA, 98682

美国波特兰温哥华3室3卫独栋别墅

温哥华三室三卫独栋别墅  |  房产编号 P199191  |  发布于94天前
$649,900
约¥451万
$2,823 / 贷款月供
? / 投资回报率
基本信息
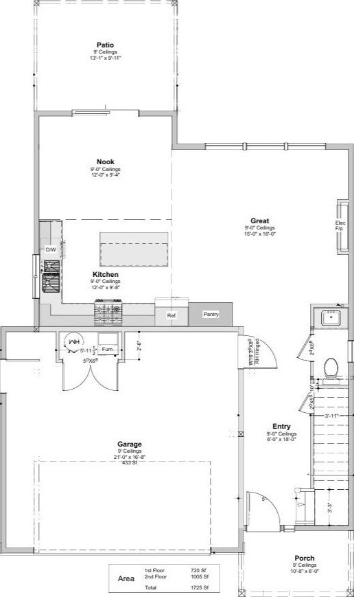
房屋类型独栋别墅
建筑面积1,725 平方英尺 (约 160 平方米)
土地面积6,970 平方英尺 (约 648 平方米)
建筑年代2025年
停车位数--
卧室数量3间
3/4卫浴数0间
MLS#431079534
单位价格$376/平方英尺 (约¥28,140/平方米)
房产税--
物业费--
预估月租金--
完整卫浴数2间
1/2卫浴数1间
交易状态待出售
投资回报率
8年年化投资回报率:?
现金购房出租净收益率:?
房屋增值
房屋总价
$649,900
首付比例
40.00%
持有年限
8年
预估年增值率
4.61%
过去十二个月房价趋势
19.71%
收入与支出 / 月
预估租金
--
房产税
$541
物业费
$0
保险费
$67
维护费
$81
投资回报率仅供参考,各类参考数据来源于不同的政府数据库与商业数据库,外居乐不对数据准确负任何直接或间接的责任。
城市介绍
波特兰温哥华
波特兰是一座位于美国西北部的城市,地理位置在俄勒冈州威拉米特河汇入哥伦比亚河的入河口以南不远的地方。城市面积为145平方英里(380平方公里)。截至2016年,城市的人口估计为639,863人,是全美国人口第26多的城市。波特兰是俄勒冈州人口最多的城市,也是太平洋西北地区人口第三多的城市,仅次于华盛顿州的西雅图和加拿大的温哥华。整个波特兰都市地区的人口估计为2,230,735人,是全美第25大都市统计区。大约60%的人口居住在大波特兰地区。波特兰的别称是“玫瑰之城”(这个名字最早出自1905年的刘易斯和克拉克远征百年纪念博览会),这是因为波特兰的气候特别适宜于种植玫瑰,市内有许多玫瑰园,比如波特兰华盛顿公园里的国际玫瑰试验园。波特兰还有许多其他昵称,比如由于当年城市建设速度较快,砍伐树木剩下的树桩来不及被清理,城市周边布满树桩而被称为“树桩城”;由于河流和桥梁较多而被称为“桥城”、“河城”等等,并获评选为全美最适合育婴的城市。了解更多
学校信息
暂无数据,请联系经纪人
社区信息
社区人口数
55,129
社区安全指数
非常安全
平均家庭收入
高于本州平均家庭收入1.47%
高于全美平均家庭收入13.87%
本地本州全美$60,353$59,478$53,000
大学及以上教育比例
本地本州全美19.2%41.4%36.7%
失业率
本地本州全美5.1%6.0%6.2%
蓝白领比例
  • 47.4%蓝领
  • 52.6%白领
生活成本指数
服务教育娱乐餐饮医疗住房整体交通公共事业全美平均101.4105.495.494.985.295.496.295.587.4100
注:价格指数全美范围内的平均值是100。如果该指数高于100则意味着该商品的价格高于全国平均水平。相应的,如果低于100则意味着该商品价格低于全国平均水平。
房屋贷款
房屋总价: $649,900
  • $2,214本金利息
  • $541房产税
  • $67保险费
$2,823
(月供)
首付
$
百分比
%
贷款计划30年固定利率
年利率
%
房源介绍
Discover contemporary luxury in this brand-new, 1,725 sq. ft., 2-story home. Inside, 9-foot and vaulted ceilings soar over seamless luxury vinyl plank floors, leading you to a showstopper kitchen featuring darker cabinets, gold accents, a massive quartz waterfall island, a walk-in pantry, and a full-height tile backsplash. All 3 bedrooms are privately located upstairs, including the large master suite which boasts a walk-in closet and a spa-like tile bath with a double sink vanity and walk-in shower. Situated on a generous 6,928 sq. ft. lot, this stunning home is complete with full landscaping and fencing, making it perfectly move-in ready.
展开全部
Listing Agent Info
David Korniyenko • Keller Williams Premier Partners •  Phone: (360) 693-3336 •  Email: Davidkhomes@gmail.com • View more info
Copyright © 2026 Regional Multiple Listing Service All rights reserved. All information provided by the listing agent/broker is deemed reliable but is not guaranteed and should be independently verified.
联系经纪人
undefined undefined
小乐
外居乐专业咨询顾问
US (美国) +1
undefined undefined
小乐
外居乐专业咨询顾问
US (美国) +1
所有信息安全可靠
不收费用并非中介
实时更新详尽信息
专业平台让您放心
外居乐美国房产
外居乐美国房产网提供真实海外房源信息,涵盖海量美国房产、海外学区房与房源周边社区信息。并联合全球超过6268名海外房产经纪人,推出美国豪宅、别墅、公寓、住宅、土地等类型的海外房产投资项目。通过外居乐,买家不再受虚假房源的困扰,通过可靠的美国房产经纪人,放心找到实时在售美国房产。海外房产投资,就上外居乐!
425-896-8335
微信扫码
Wechat
获取每日新鲜热辣的海外房产投资资讯,请扫描二维码关注外居乐。
Download App
扫描下载APP
海外购房更便捷
WJL HomeServices LLC.
#20293
WJL HomeServices Inc.
CA BRE# 02040249
7 Springs Properties, Inc.
CA BRE#01884805
© 2015 外居乐 版权所有 | 沪ICP备15046544号-2