提交购房需求
外居乐为您提供专属的购房服务
扫描获取每日新鲜热辣的海外房产资讯
waijule2015
Wechat
扫描下载APP
海外购房更便捷
外居乐
App
Consultant
小乐
专业咨询顾问
查看地图
16003 SE CIELO Ct, Damascus, OR, 97089

美国波特兰大马士革3室5卫独栋别墅

大马士革三室五卫独栋别墅  |  房产编号 P200462  |  发布于117天前
$1,150,000
约¥795万
$4,729 / 贷款月供
? / 投资回报率
基本信息
房屋类型独栋别墅
建筑面积3,504 平方英尺 (约 326 平方米)
土地面积282,269 平方英尺 (约 26,223 平方米)
建筑年代1991年
停车位数--
卧室数量3间
3/4卫浴数0间
MLS#687971108
单位价格$328/平方英尺 (约¥24,418/平方米)
房产税$691/月 (约¥4,782/月)
物业费--
预估月租金--
完整卫浴数3间
1/2卫浴数2间
交易状态待出售
投资回报率
8年年化投资回报率:?
现金购房出租净收益率:?
房屋增值
房屋总价
$1,150,000
首付比例
40.00%
持有年限
8年
预估年增值率
6.60%
过去十二个月房价趋势
20.44%
收入与支出 / 月
预估租金
--
房产税
$691
物业费
$0
保险费
$119
维护费
$143
投资回报率仅供参考,各类参考数据来源于不同的政府数据库与商业数据库,外居乐不对数据准确负任何直接或间接的责任。
城市介绍
波特兰大马士革
波特兰是一座位于美国西北部的城市,地理位置在俄勒冈州威拉米特河汇入哥伦比亚河的入河口以南不远的地方。城市面积为145平方英里(380平方公里)。截至2016年,城市的人口估计为639,863人,是全美国人口第26多的城市。波特兰是俄勒冈州人口最多的城市,也是太平洋西北地区人口第三多的城市,仅次于华盛顿州的西雅图和加拿大的温哥华。整个波特兰都市地区的人口估计为2,230,735人,是全美第25大都市统计区。大约60%的人口居住在大波特兰地区。波特兰的别称是“玫瑰之城”(这个名字最早出自1905年的刘易斯和克拉克远征百年纪念博览会),这是因为波特兰的气候特别适宜于种植玫瑰,市内有许多玫瑰园,比如波特兰华盛顿公园里的国际玫瑰试验园。波特兰还有许多其他昵称,比如由于当年城市建设速度较快,砍伐树木剩下的树桩来不及被清理,城市周边布满树桩而被称为“树桩城”;由于河流和桥梁较多而被称为“桥城”、“河城”等等,并获评选为全美最适合育婴的城市。了解更多
学校信息
暂无数据,请联系经纪人
社区信息
社区人口数
11,689
社区安全指数
非常安全
平均家庭收入
高于本州平均家庭收入Infinity%
高于全美平均家庭收入Infinity%
本地本州全美$84,469----
大学及以上教育比例
本地本州全美24.4%----
失业率
本地本州全美4.0%4.5%5.0%
蓝白领比例
  • 44.9%蓝领
  • 55.1%白领
生活成本指数
服务教育娱乐餐饮医疗住房整体交通公共事业全美平均113.9125.9114.3106.5102106.9111.1109.6108.8100
注:价格指数全美范围内的平均值是100。如果该指数高于100则意味着该商品的价格高于全国平均水平。相应的,如果低于100则意味着该商品价格低于全国平均水平。
房屋贷款
房屋总价: $1,150,000
  • $3,917本金利息
  • $691房产税
  • $119保险费
$4,729
(月供)
首付
$
百分比
%
贷款计划30年固定利率
年利率
%
房源介绍
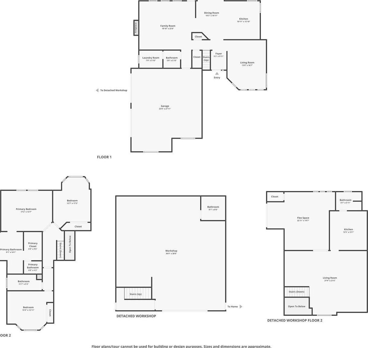
PLEASE CALL AGENT WITH ANY QUESTIONS OR COMMENTS. Discover Your Private Sanctuary on 6.48 Acres of Serenity. Where every detail is designed for comfort, creativity, & connection to the outdoors. Tucked away in a quiet setting, this one-of-a-kind compound offers not just a home, but a lifestyle. Step into a spacious 2,312sf main residence that blends classic charm w/entertainer-ready flow. Inside you'll find 2.5 baths, 3 large bdrms one of which is being used as a dedicated office w/custom oak built-ins, & serene wooded views. The grand formal entry, soaring ceilings, sunken living room w/wet bar & coffered beams ceiling create a dramatic yet cozy space for gathering. Natural light floods through expansive windows & skylights, while thoughtful details like gas fireplace, & jetted tub elevate everyday living. Outside, the wraparound deck & covered entertainment spaces connect you to the landscape-w/a tranquil pond & waterfall (currently not functioning), gazebo, dog run, w/towering evergreen trees providing peace & privacy. For hobbyists, creatives, or business owners, the 1,600sf shop is a dream come true-complete with 12' ceilings, its own half bath, pneumatic plumbing for tools, dust collection system, & dual carports, including one for an RV. Need space for guests, multigenerational living, or income potential? The 1,192sf Accessory Dwelling Unit (ADU) delivers. Sloped ceilings, huge kitchen w/eating bar, full bath, wall-to-wall carpet, laundry, & its own oversized garage make it feel like a home of its own. Whether you're gathering in the open-concept family spaces, watching wildlife from the office, working on your next big project in the shop, or relaxing in your own personal outdoor forest, this property is the total package!
展开全部
Listing Agent Info
Rex Buchanan • Opt Real Estate •  Phone: (503) 351-3739 •  Email: Rex@PortlandRealtyTeam.com • View more info
Copyright © 2026 Regional Multiple Listing Service All rights reserved. All information provided by the listing agent/broker is deemed reliable but is not guaranteed and should be independently verified.
联系经纪人
undefined undefined
小乐
外居乐专业咨询顾问
US (美国) +1
undefined undefined
小乐
外居乐专业咨询顾问
US (美国) +1
所有信息安全可靠
不收费用并非中介
实时更新详尽信息
专业平台让您放心
外居乐美国房产
外居乐美国房产网提供真实海外房源信息,涵盖海量美国房产、海外学区房与房源周边社区信息。并联合全球超过6268名海外房产经纪人,推出美国豪宅、别墅、公寓、住宅、土地等类型的海外房产投资项目。通过外居乐,买家不再受虚假房源的困扰,通过可靠的美国房产经纪人,放心找到实时在售美国房产。海外房产投资,就上外居乐!
425-896-8335
微信扫码
Wechat
获取每日新鲜热辣的海外房产投资资讯,请扫描二维码关注外居乐。
Download App
扫描下载APP
海外购房更便捷
WJL HomeServices LLC.
#20293
WJL HomeServices Inc.
CA BRE# 02040249
7 Springs Properties, Inc.
CA BRE#01884805
© 2015 外居乐 版权所有 | 沪ICP备15046544号-2