提交购房需求
外居乐为您提供专属的购房服务
扫描获取每日新鲜热辣的海外房产资讯
waijule2015
Wechat
扫描下载APP
海外购房更便捷
外居乐
App
Consultant
小乐
专业咨询顾问
查看地图
2736 N ARGYLE St, Portland, OR, 97217

美国波特兰波特兰3室1卫独栋别墅

波特兰三室一卫独栋别墅  |  房产编号 P202038  |  发布于90天前
$499,000
约¥342万
$2,155 / 贷款月供
? / 投资回报率
基本信息
房屋类型独栋别墅
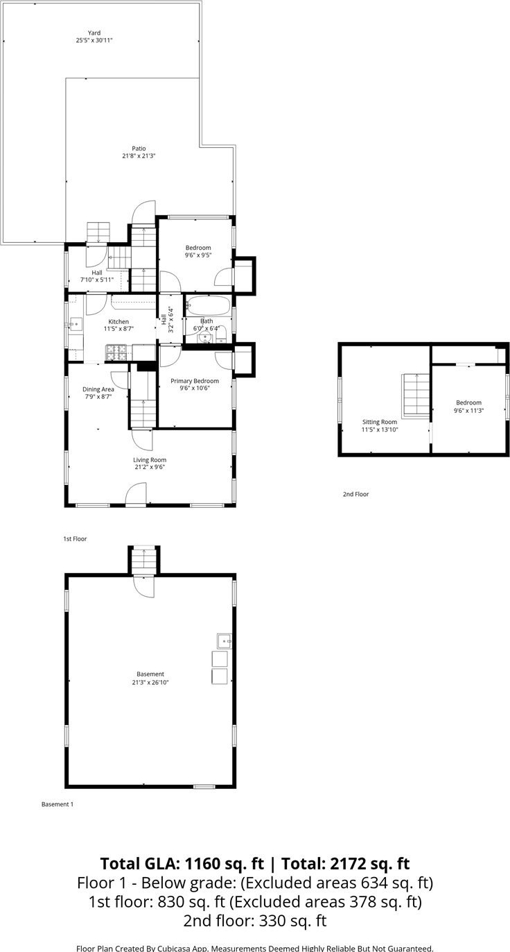
建筑面积2,172 平方英尺 (约 202 平方米)
土地面积5,227 平方英尺 (约 486 平方米)
建筑年代1927年
停车位数--
卧室数量3间
3/4卫浴数0间
MLS#466743454
单位价格$229/平方英尺 (约¥16,958/平方米)
房产税$403/月 (约¥2,768/月)
物业费--
预估月租金--
完整卫浴数1间
1/2卫浴数0间
交易状态待出售
投资回报率
8年年化投资回报率:?
现金购房出租净收益率:?
房屋增值
房屋总价
$499,000
首付比例
40.00%
持有年限
8年
预估年增值率
6.80%
过去十二个月房价趋势
18.48%
收入与支出 / 月
预估租金
--
房产税
$403
物业费
$0
保险费
$51
维护费
$62
投资回报率仅供参考,各类参考数据来源于不同的政府数据库与商业数据库,外居乐不对数据准确负任何直接或间接的责任。
城市介绍
波特兰
波特兰是一座位于美国西北部的城市,地理位置在俄勒冈州威拉米特河汇入哥伦比亚河的入河口以南不远的地方。城市面积为145平方英里(380平方公里)。截至2016年,城市的人口估计为639,863人,是全美国人口第26多的城市。波特兰是俄勒冈州人口最多的城市,也是太平洋西北地区人口第三多的城市,仅次于华盛顿州的西雅图和加拿大的温哥华。整个波特兰都市地区的人口估计为2,230,735人,是全美第25大都市统计区。大约60%的人口居住在大波特兰地区。波特兰的别称是“玫瑰之城”(这个名字最早出自1905年的刘易斯和克拉克远征百年纪念博览会),这是因为波特兰的气候特别适宜于种植玫瑰,市内有许多玫瑰园,比如波特兰华盛顿公园里的国际玫瑰试验园。波特兰还有许多其他昵称,比如由于当年城市建设速度较快,砍伐树木剩下的树桩来不及被清理,城市周边布满树桩而被称为“树桩城”;由于河流和桥梁较多而被称为“桥城”、“河城”等等,并获评选为全美最适合育婴的城市。了解更多
学校信息
暂无数据,请联系经纪人
社区信息
社区人口数
29,683
社区安全指数
非常安全
平均家庭收入
高于本州平均家庭收入6.92%
高于全美平均家庭收入1.33%
本地本州全美$53,704$50,229$53,000
大学及以上教育比例
本地本州全美44.2%37.9%36.7%
失业率
本地本州全美3.9%4.5%5.0%
蓝白领比例
  • 30.8%蓝领
  • 69.2%白领
生活成本指数
服务教育娱乐餐饮医疗住房整体交通公共事业全美平均116.5114.3106.1109.497.6111.5110108.797.2100
注:价格指数全美范围内的平均值是100。如果该指数高于100则意味着该商品的价格高于全国平均水平。相应的,如果低于100则意味着该商品价格低于全国平均水平。
房屋贷款
房屋总价: $499,000
  • $1,699本金利息
  • $403房产税
  • $51保险费
$2,155
(月供)
首付
$
百分比
%
贷款计划30年固定利率
年利率
%
房源介绍
This classic Kenton bungalow welcomes you with open arms...1927 style meets modern day living! Picture mornings on your covered front porch with coffee in hand, watching the neighborhood come alive and roll on by, then stepping inside to sun-filled rooms with original hardwood floors and graceful archways that connect living to dining with effortless style. Your updated kitchen beckons with quartz counters and gas cooking, a pantry that ends clutter for good, and a mudroom that keeps daily life organized right from the get go. Upstairs, the spacious primary suite offers a peaceful retreat with a bonus sitting room, perfect for unwinding with a book and a view, while two main-level bedrooms provide flexibility. The basement with great headroom and an exterior entrance becomes your wild card: playroom today, workshop tomorrow, yoga studio next month, the choice is yours. Outside, the oversized detached two-car garage and extra-long gated driveway handle cars, RVs, trailers, boats, and weekend projects with room to spare, while the fully fenced backyard with mature fruit trees and multiple raised beds offers private outdoor living at its finest. Step beyond your yard and Kenton delivers: Posies Bakery and Presso Coffee are minutes away, Fred Meyer handles groceries in five, and Kenton Park, Columbia Park, and the vibrant Denver Avenue shops make this neighborhood feel like home from day one. This is classic PDX bungalow living with space, style, and a location that checks every box. [Home Energy Score = 3. HES Report
展开全部
Listing Agent Info
Mathew Wray • Keller Williams Realty Portland Premiere •  Phone: (503) 880-4905 •  Email: mathew@KamaHomes.com
Copyright © 2026 Regional Multiple Listing Service All rights reserved. All information provided by the listing agent/broker is deemed reliable but is not guaranteed and should be independently verified.
联系经纪人
undefined undefined
小乐
外居乐专业咨询顾问
US (美国) +1
undefined undefined
小乐
外居乐专业咨询顾问
US (美国) +1
所有信息安全可靠
不收费用并非中介
实时更新详尽信息
专业平台让您放心
外居乐美国房产
外居乐美国房产网提供真实海外房源信息,涵盖海量美国房产、海外学区房与房源周边社区信息。并联合全球超过6268名海外房产经纪人,推出美国豪宅、别墅、公寓、住宅、土地等类型的海外房产投资项目。通过外居乐,买家不再受虚假房源的困扰,通过可靠的美国房产经纪人,放心找到实时在售美国房产。海外房产投资,就上外居乐!
425-896-8335
微信扫码
Wechat
获取每日新鲜热辣的海外房产投资资讯,请扫描二维码关注外居乐。
Download App
扫描下载APP
海外购房更便捷
WJL HomeServices LLC.
#20293
WJL HomeServices Inc.
CA BRE# 02040249
7 Springs Properties, Inc.
CA BRE#01884805
© 2015 外居乐 版权所有 | 沪ICP备15046544号-2