Source:

NWMLS
房源介绍
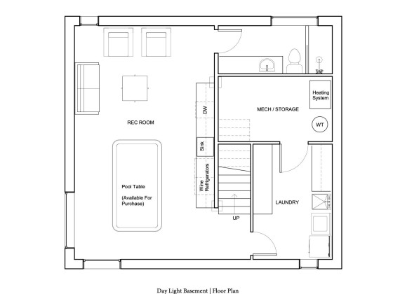
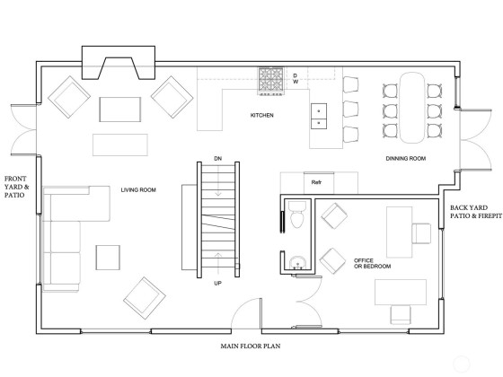
Stunning Dutch Colonial in the heart of Capitol Hill combines timeless 1924 charm with modern living. This 4BR/3.5BA home showcases award-winning design and custom craftsmanship throughout 3,300 sq ft of thoughtfully crafted space. Chef's kitchen anchors open entertaining areas, flowing to private front/back yards with exterior kitchen, gas fire pit, and lounge areas. Built Green with solar panels (low electric bills), hydronic floor heating, mini-split AC systems, and bonus lofts. The primary suite features a jet-soaking tub and rain shower. EV charger, covered porch, long driveway, and large heated garage. Prime Capitol Hill location steps from Broadway's dining, shopping, nightlife, plus easy access to UW Arboretum and light rail.
展开全部The "three tree" icon indicates listings provided by Northwest Multiple Listing Service. The listings presented here may or may not be listed by WJL HomeServices LLC. The Real Estate Broker providing this data believes it to be correct, but advises interested parties to confirm the data before relying on it in a purchase decision. The information being provided is for the consumers' personal, non-commercial use and may not be used for any purpose other than to identify prospective properties the consumers may be interested in purchasing.

Listings are Copyright © 2025 Northwest Multiple Listing Service. All Rights Reserved. Wjl HomeServices LLC. 12015 115TH AVE NE, SUITE 290, KIRKLAND, WA 98034. By searching, you agree to the
MLS Terms of Use.
Based on information submitted to the MLS GRID as of 2025-09-21 12:31:52. All data is obtained from various sources and may not have been verified by broker or MLS GRID. Supplied Open House Information is subject to change without notice. All information should be independently reviewed and verified for accuracy. Properties may or may not be listed by the office/agent presenting the information.