Source:

NWMLS
房源介绍
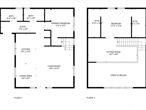
Tucked away in the woods, this charming 2-bedroom, 1.5 bath A-frame cabin offers the perfect retreat from the everyday. With soaring ceilings, a wall of windows bringing in forest views, and the cozy glow of a wood stove, it’s equal parts peaceful and picturesque. Whether you’re looking for a weekend escape, a short-term rental, or a quiet place to call home, this 5-acre property gives you room to roam, explore, and unwind. A 3 stall Pole Building and multiple outbuildings & ton of garden space. The Original cabin still stands and with some TLC could be the perfect rental or ADU. New roof in 2017 & New drain field in 2020. Partially furnished! You wont want to miss it!
展开全部The "three tree" icon indicates listings provided by Northwest Multiple Listing Service. The listings presented here may or may not be listed by WJL HomeServices LLC. The Real Estate Broker providing this data believes it to be correct, but advises interested parties to confirm the data before relying on it in a purchase decision. The information being provided is for the consumers' personal, non-commercial use and may not be used for any purpose other than to identify prospective properties the consumers may be interested in purchasing.

Listings are Copyright © 2025 Northwest Multiple Listing Service. All Rights Reserved. Wjl HomeServices LLC. 12015 115TH AVE NE, SUITE 290, KIRKLAND, WA 98034. By searching, you agree to the
MLS Terms of Use.
Based on information submitted to the MLS GRID as of 2025-09-27 18:21:10. All data is obtained from various sources and may not have been verified by broker or MLS GRID. Supplied Open House Information is subject to change without notice. All information should be independently reviewed and verified for accuracy. Properties may or may not be listed by the office/agent presenting the information.