Source:

NWMLS
房源介绍
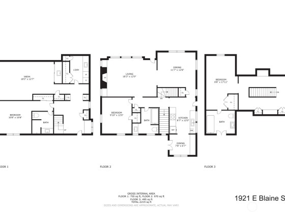
Incredibly charming, a bit of history and luxury custom finishes are only part of this distinguished Tudor. One of the first homes built on this street in 1926, this home has its own name, The Surrey. Historic elegance, period details and quality upgrades for todays living make this special home a standout on a coveted street in a great neighborhood. Three floors of living, with wood floors, coved ceilings and leaded glass windows. Great outdoors spaces with large deck, patio, garden space, hot tub. There is a detached garage off the alley. Walk to shops, restaurants, library, and Montlake Community Center. Close to Arboretum and U of W
展开全部The "three tree" icon indicates listings provided by Northwest Multiple Listing Service. The listings presented here may or may not be listed by WJL HomeServices LLC. The Real Estate Broker providing this data believes it to be correct, but advises interested parties to confirm the data before relying on it in a purchase decision. The information being provided is for the consumers' personal, non-commercial use and may not be used for any purpose other than to identify prospective properties the consumers may be interested in purchasing.

Listings are Copyright © 2025 Northwest Multiple Listing Service. All Rights Reserved. Wjl HomeServices LLC. 12015 115TH AVE NE, SUITE 290, KIRKLAND, WA 98034. By searching, you agree to the
MLS Terms of Use.
Based on information submitted to the MLS GRID as of 2025-10-12 19:02:18. All data is obtained from various sources and may not have been verified by broker or MLS GRID. Supplied Open House Information is subject to change without notice. All information should be independently reviewed and verified for accuracy. Properties may or may not be listed by the office/agent presenting the information.