Source:

NWMLS
房源介绍
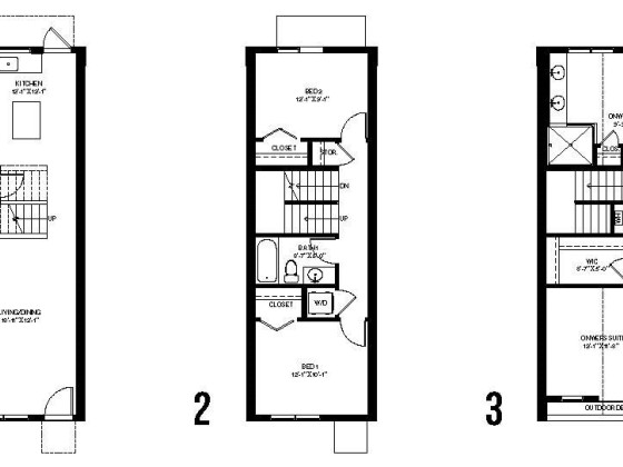
Discover Elm nestled in the heart of Greenwood. This stunning 3-bedroom home spans over 1,500 sq ft & features bright, open-concept living, dining spaces, a private fenced patio, a chef-inspired kitchen w/ stainless steel appl., & separated guest quarters. The expansive top-floor primary suite offers a luxurious 4-piece spa-like bath & private South-facing balcony. Live steps from QFC, Met Market, top-rated dining, cozy cafés, Soundview Playfield, & Carkeek Park. Enjoy quick access to I-5, Hwy 99, & transit options. Modern elegance, comfort, convenience, and your perfect new home await at Elm.
展开全部The "three tree" icon indicates listings provided by Northwest Multiple Listing Service. The listings presented here may or may not be listed by WJL HomeServices LLC. The Real Estate Broker providing this data believes it to be correct, but advises interested parties to confirm the data before relying on it in a purchase decision. The information being provided is for the consumers' personal, non-commercial use and may not be used for any purpose other than to identify prospective properties the consumers may be interested in purchasing.

Listings are Copyright © 2025 Northwest Multiple Listing Service. All Rights Reserved. Wjl HomeServices LLC. 12015 115TH AVE NE, SUITE 290, KIRKLAND, WA 98034. By searching, you agree to the
MLS Terms of Use.
Based on information submitted to the MLS GRID as of 2025-09-21 12:31:55. All data is obtained from various sources and may not have been verified by broker or MLS GRID. Supplied Open House Information is subject to change without notice. All information should be independently reviewed and verified for accuracy. Properties may or may not be listed by the office/agent presenting the information.