Source:

NWMLS
房源介绍
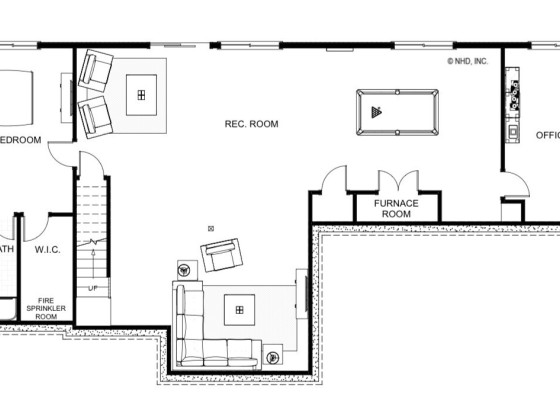
Nestled w/in a secure gated community New construction 3,333 sqft home offers luxury & privacy on 20 sprawling acres. Featuring 4 bedrooms, 3 full baths, this residence provides ample space for comfortable living. Primary bath will have tile floors, free standing tub & tile walls in shower. Laundry room equipped w/cabinetry for added convenience & style. Quartz countertops throughout home provide a touch of elegance & durability. Every window is fully trimmed, enhancing the home's refined aesthetic & attention details. 3car garage ensure plenty of room for vehicles & storage. The full basement offers endless possibilities for customization. Experience the perfect blend of modern living & natural beauty. Seller offering interest rate buydown
展开全部The "three tree" icon indicates listings provided by Northwest Multiple Listing Service. The listings presented here may or may not be listed by WJL HomeServices LLC. The Real Estate Broker providing this data believes it to be correct, but advises interested parties to confirm the data before relying on it in a purchase decision. The information being provided is for the consumers' personal, non-commercial use and may not be used for any purpose other than to identify prospective properties the consumers may be interested in purchasing.

Listings are Copyright © 2025 Northwest Multiple Listing Service. All Rights Reserved. Wjl HomeServices LLC. 12015 115TH AVE NE, SUITE 290, KIRKLAND, WA 98034. By searching, you agree to the
MLS Terms of Use.
Based on information submitted to the MLS GRID as of 2025-09-21 12:31:59. All data is obtained from various sources and may not have been verified by broker or MLS GRID. Supplied Open House Information is subject to change without notice. All information should be independently reviewed and verified for accuracy. Properties may or may not be listed by the office/agent presenting the information.