Source:

NWMLS
房源介绍
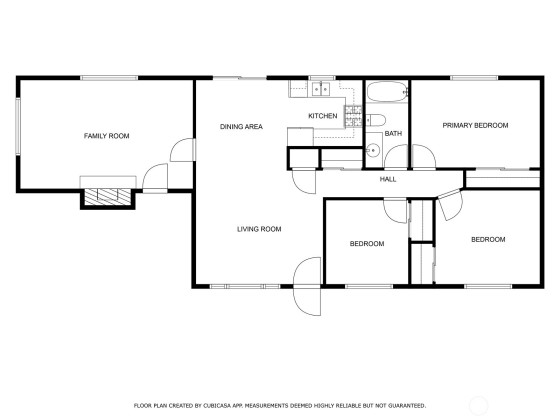
Looking for a move-in ready, well maintained, affordable West Olympia home with no HOA? Then this is the one! Located on a quiet, dead end street, this home features a ton of natural light, storage, and a functional layout that works for your lifestyle! Enjoy time together in the living room or oversized family room with wood burning fireplace (it’s even wired for a generator)! With a large, fully fenced back yard, covered deck, and no carpet, this home is perfect for you and your pets. Minutes from Downtown, The Evergreen State College, restaurants, shopping, and with easy highway access, you’ll enjoy all that West Olympia has to offer. Welcome home!
展开全部The "three tree" icon indicates listings provided by Northwest Multiple Listing Service. The listings presented here may or may not be listed by WJL HomeServices LLC. The Real Estate Broker providing this data believes it to be correct, but advises interested parties to confirm the data before relying on it in a purchase decision. The information being provided is for the consumers' personal, non-commercial use and may not be used for any purpose other than to identify prospective properties the consumers may be interested in purchasing.

Listings are Copyright © 2025 Northwest Multiple Listing Service. All Rights Reserved. Wjl HomeServices LLC. 12015 115TH AVE NE, SUITE 290, KIRKLAND, WA 98034. By searching, you agree to the
MLS Terms of Use.
Based on information submitted to the MLS GRID as of 2025-10-23 21:14:10. All data is obtained from various sources and may not have been verified by broker or MLS GRID. Supplied Open House Information is subject to change without notice. All information should be independently reviewed and verified for accuracy. Properties may or may not be listed by the office/agent presenting the information.