Source:

NWMLS
房源介绍
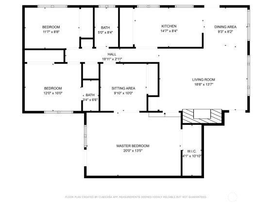
This hidden gem in Beverly Park has not been on the market for 32 years. Fully fenced with a gated driveway, it boasts a large master with walk-in closet & sitting area, walk-in jetted tub, air conditioning, an electric fireplace and patios in front & back. Plumbing and electrical have been updated, with newer roof and leaf guard gutters installed. Mature landscaping lends privacy and is a perfect space for dogs to roam. A shed in the backyard, and small workshop / loft with pull up door in the front makes this home perfect for hobbies and storage. Easy access to Hwy 509 and downtown Seattle or I-5. Close to shopping and entertainment in a quiet, established neighborhood. Tour today!
展开全部The "three tree" icon indicates listings provided by Northwest Multiple Listing Service. The listings presented here may or may not be listed by WJL HomeServices LLC. The Real Estate Broker providing this data believes it to be correct, but advises interested parties to confirm the data before relying on it in a purchase decision. The information being provided is for the consumers' personal, non-commercial use and may not be used for any purpose other than to identify prospective properties the consumers may be interested in purchasing.

Listings are Copyright © 2025 Northwest Multiple Listing Service. All Rights Reserved. Wjl HomeServices LLC. 12015 115TH AVE NE, SUITE 290, KIRKLAND, WA 98034. By searching, you agree to the
MLS Terms of Use.
Based on information submitted to the MLS GRID as of 2025-10-18 00:15:24. All data is obtained from various sources and may not have been verified by broker or MLS GRID. Supplied Open House Information is subject to change without notice. All information should be independently reviewed and verified for accuracy. Properties may or may not be listed by the office/agent presenting the information.