Source:

NWMLS
房源介绍
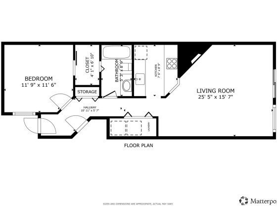
Discover this charming 1-bedroom, 1-bathroom condo perfectly situated in sought-after Juanita Beach. The thoughtfully designed floor plan includes a cozy living space with a wood-burning fireplace and spacious dining nook. Step outside to your own private, gated yard with patio—an ideal spot for relaxing or entertaining. The home also comes with one covered parking space plus plenty of guest parking. Enjoy the convenience of being close to Juanita Beach, shopping, dining, parks, and bus lines, all while living in a welcoming and well-maintained community. This condo blends comfort, convenience, and location into one excellent opportunity.
展开全部The "three tree" icon indicates listings provided by Northwest Multiple Listing Service. The listings presented here may or may not be listed by WJL HomeServices LLC. The Real Estate Broker providing this data believes it to be correct, but advises interested parties to confirm the data before relying on it in a purchase decision. The information being provided is for the consumers' personal, non-commercial use and may not be used for any purpose other than to identify prospective properties the consumers may be interested in purchasing.

Listings are Copyright © 2025 Northwest Multiple Listing Service. All Rights Reserved. Wjl HomeServices LLC. 12015 115TH AVE NE, SUITE 290, KIRKLAND, WA 98034. By searching, you agree to the
MLS Terms of Use.
Based on information submitted to the MLS GRID as of 2025-10-03 02:22:03. All data is obtained from various sources and may not have been verified by broker or MLS GRID. Supplied Open House Information is subject to change without notice. All information should be independently reviewed and verified for accuracy. Properties may or may not be listed by the office/agent presenting the information.