Source:

NWMLS
房源介绍
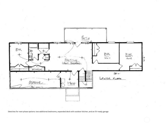
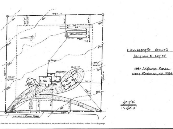
Pacific Northwest luxury on 2.5 serene acres. This 2,401 sq ft net-zero estate features an 8 kW ground-mount solar system and sweeping 235° Yakima River views. Inside, natural hardwood and tile floors flow throughout, marble and granite counters and fully tiled baths/showers. The chef’s kitchen offers quartz surfaces, premium appliances, and an oversized island; the primary suite features a spa bath and walk-in closet. A dedicated gym/wellness space. Outside: expansive decks, a Quonset hut shop with glass drive-through doors, and a detached HVAC-controlled office. See attached sketches for next-phase options: two additional bedrooms, expanded deck with outdoor kitchen, and an EV-ready garage. A rare blend of privacy, and sustainability.
展开全部The "three tree" icon indicates listings provided by Northwest Multiple Listing Service. The listings presented here may or may not be listed by WJL HomeServices LLC. The Real Estate Broker providing this data believes it to be correct, but advises interested parties to confirm the data before relying on it in a purchase decision. The information being provided is for the consumers' personal, non-commercial use and may not be used for any purpose other than to identify prospective properties the consumers may be interested in purchasing.

Listings are Copyright © 2025 Northwest Multiple Listing Service. All Rights Reserved. Wjl HomeServices LLC. 12015 115TH AVE NE, SUITE 290, KIRKLAND, WA 98034. By searching, you agree to the
MLS Terms of Use.
Based on information submitted to the MLS GRID as of 2025-10-18 04:05:15. All data is obtained from various sources and may not have been verified by broker or MLS GRID. Supplied Open House Information is subject to change without notice. All information should be independently reviewed and verified for accuracy. Properties may or may not be listed by the office/agent presenting the information.