


| 房屋类型 | 住宅 | |
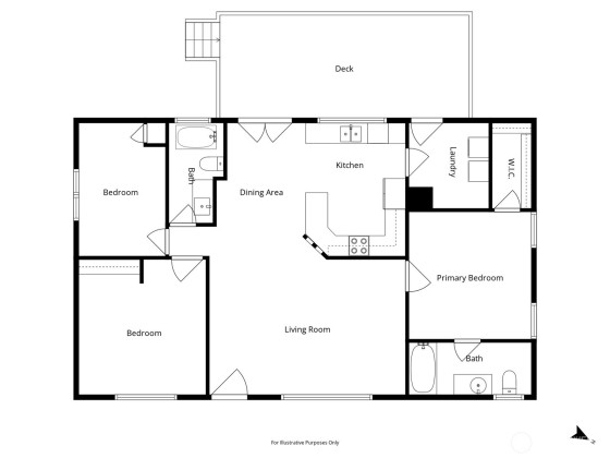
| 建筑面积 | 1,232 平方英尺 (约 114 平方米) | |
| 土地面积 | 98,881 平方英尺 (约 9,186 平方米) | |
| 建筑年代 | 1988年 | |
| 停车位数 | -- | |
| 卧室数量 | 3间 | |
| 3/4卫浴数 | 0间 |
| MLS# | 2447167 | |
| 单位价格 | $547/平方英尺 (约¥41,915/平方米) | |
| 房产税 | $518/月 (约¥3,684/月) | |
| 物业费 | -- | |
| 预估月租金 | -- | |
| 完整卫浴数 | 2间 | |
| 1/2卫浴数 | 0间 | |
| 交易状态 | 待出售 |
| 学校评分 | 学校名称 | 类型 | 年级 | 距离 |
|---|---|---|---|---|
9 | Tahoma Senior High School | 高中 | 10-12 | 10.37km |
| 日期 | 交易状态 | 价格 | 年化增值比例 |
|---|---|---|---|
2014/10/29 | 售出 | $330,000 (约¥235万) | -- |
2014/10/29 | 售出 | $330,000 (约¥235万) | 2.21% |
2014/09/12 | 成交 | -- | -- |
2014/09/12 | 成交 | -- | -- |
2014/09/09 | 上市 | $325,000 (约¥231万) | -- |
2014/09/09 | 上市 | $325,000 (约¥231万) | -- |
2004/10/22 | 售出 | $265,000 (约¥188万) | -- |
2004/10/06 | 成交 | -- | -- |
2004/07/27 | 上市 | $289,000 (约¥205万) | -- |
Listings are Copyright © 2025 Northwest Multiple Listing Service. All Rights Reserved. Wjl HomeServices LLC. 12015 115TH AVE NE, SUITE 290, KIRKLAND, WA 98034. By searching, you agree to the MLS Terms of Use.

