提交购房需求
外居乐为您提供专属的购房服务
扫描获取每日新鲜热辣的海外房产资讯
waijule2015
Wechat
扫描下载APP
海外购房更便捷
外居乐
App
Consultant
小乐
专业咨询顾问
查看地图
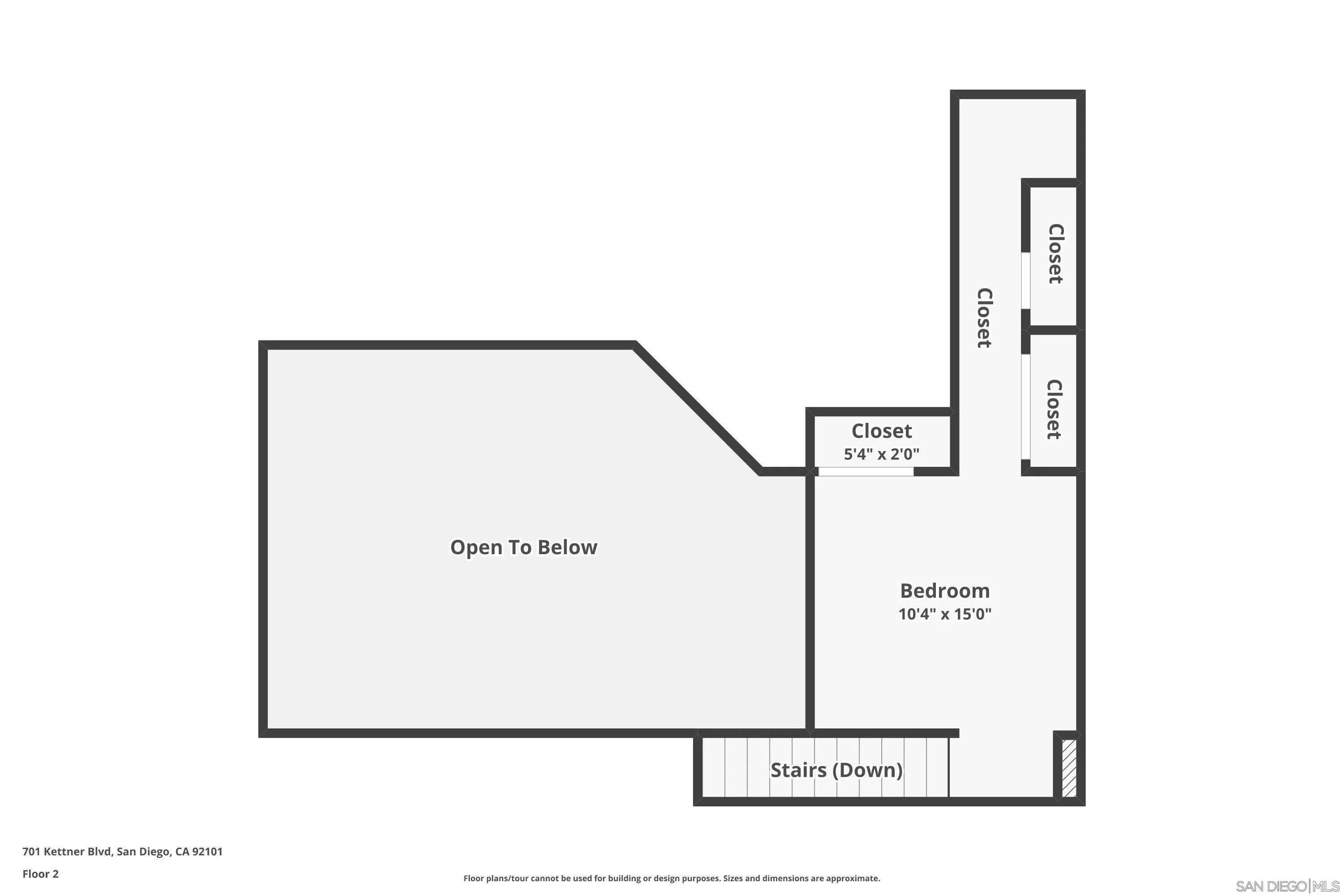
701 Kettner Blvd. unit: 100 #100, San Diego, CA, 92101

美国圣地亚哥圣地亚哥2室1卫公寓

圣地亚哥二室一卫公寓  |  房产编号 SD117180  |  发布于87天前
$739,000
约¥510万
$3,305 / 贷款月供
? / 投资回报率
基本信息
房屋类型公寓
建筑面积1,254 平方英尺 (约 116 平方米)
土地面积--
建筑年代1983年
停车位数1
卧室数量2间
3/4卫浴数0间
MLS#2600114
单位价格$589/平方英尺 (约¥43,736/平方米)
房产税--
物业费--
预估月租金--
完整卫浴数1间
1/2卫浴数0间
交易状态待出售
投资回报率
8年年化投资回报率:?
现金购房出租净收益率:?
房屋增值
房屋总价
$739,000
首付比例
40.00%
持有年限
8年
预估年增值率
5.45%
过去十二个月房价趋势
0.50%
收入与支出 / 月
预估租金
--
房产税
$711
物业费
$0
保险费
$76
维护费
$92
投资回报率仅供参考,各类参考数据来源于不同的政府数据库与商业数据库,外居乐不对数据准确负任何直接或间接的责任。
城市介绍
圣地亚哥
圣迭戈San Diego,又译圣地亚哥、圣地牙哥,是美国加利福尼亚州的一个太平洋沿岸城市。位于美国本土的极端西南角,洛杉矶往南约120英里,紧邻墨西哥边境。圣地亚哥是圣迭戈县的首府,以气候温暖,天然深水港,沙滩众多而著名。 它是一座安静而古老的海边城市,拥有无与伦比的自然风光和人文建筑。它也是重要的海军基地和港口城市,又因为距离墨西哥很近而充满了墨西哥风情。 在2015年的人口普查中,该市的总人口为3,145,724人,使其在人口数量方面跃升至加州第二大城以及美国第八大城。 尽管没有同处加州的洛杉矶、旧金山等城市名气大,但却是加利福尼亚州的诞 生地。这片土地不仅经历了西班牙人将近三百年的建设和守护,也经历 了墨西哥近三十年的治理与管制。这些历史的印记全部深深地刻在了城 市的每条街道上。 圣地亚哥经济的3个最主要部分分别是国防工业、制造业和旅游业。现全市政府雇员约占职工总数的1/4,其中大多数在军事基地工作。导弹和飞机制造两大工业部门,拥有全市职工总数的1/4,在城市经济中占重要地位。电子和造船工业发展迅速,已具相当规模。圣迭戈通信工业发达,CDMA的创始者通信巨头高通公司总部位于此。另外,第二大CDMA芯片厂商VIA的研发中心也设于此。圣地亚哥的生物制药工业也很发达。由于加州大学圣地亚哥分校 (UCSD)及其附属的UCSD医疗中心在此,近来发展成为健康及生物科技的研发中心。 圣地亚哥有铁路与高速公路通洛杉矶和圣弗朗西斯科,1981年与墨西哥边界城市蒂华纳间建成长约26公里的电车线。港口年吞吐量约 200万吨。市中心西北湾畔有林德堡国际机场。终年阳光充足,气候温和宜人,为美国西海岸主要旅游、疗养地。多豪华旅社和游乐场所,如以展出动物品种繁多名闻世界的圣迭戈动物园和集美术馆、博物馆、剧场、花园、动物园、展览馆于一体的巴尔博亚公园以及包括各种水上运动设施的米申湾公园等。圣迭戈主要农产品为鲜花、水果、坚果、蔬菜、家禽和家禽制品、田间作物、蜂蜜制品等。了解更多
学校信息
暂无数据,请联系经纪人
社区信息
社区人口数
35,373
社区安全指数
非常安全
平均家庭收入
低于本州平均家庭收入7.95%
高于全美平均家庭收入6.12%
本地本州全美$56,245$61,100$53,000
大学及以上教育比例
本地本州全美54.9%38.4%36.7%
失业率
本地本州全美4.5%7.3%6.2%
蓝白领比例
  • 19.6%蓝领
  • 80.4%白领
生活成本指数
服务教育娱乐餐饮医疗住房整体交通公共事业全美平均149.3157.8121.4129.7107.2131.5129.3125.199.7100
注:价格指数全美范围内的平均值是100。如果该指数高于100则意味着该商品的价格高于全国平均水平。相应的,如果低于100则意味着该商品价格低于全国平均水平。
房屋贷款
房屋总价: $739,000
  • $2,517本金利息
  • $711房产税
  • $76保险费
$3,305
(月供)
首付
$
百分比
%
贷款计划30年固定利率
年利率
%
房源介绍
Experience elevated urban living in this beautiful top-floor modern loft-style condo at Park Row, perfectly designed for those who appreciate contemporary architecture, clean lines, and effortless style. This spacious 2-bedroom residence features dramatic ceiling heights, polished concrete floors, and an open-concept layout that blends form and function. The sleek kitchen is a focal point, showcasing modern cabinetry, premium appliances, and an ideal flow into the living and dining areas. Large windows fill the space with natural light, leading you out to a west-facing balcony where you can unwind each evening with panoramic sunset views and the glow of the downtown skyline. The primary bedroom is conveniently located on the main floor, offering a peaceful retreat with a stunning ensuite bathroom finished in contemporary, spa-inspired materials. Upstairs, the open loft provides a versatile second bedroom, office, or creative space-ideal for guests or flexible living. Additional features include one secure garage parking space and access to an impressive suite of amenities, including a resort-style pool, and a stylish clubhouse perfect for gatherings or a change of scenery while working from home. Situated in the heart of downtown, you're truly close to everything-waterfront park, top-rated dining, cafes, boutiques, and the buzzing lifestyle of Little Italy and the Marina District. The San Diego Bay is only a couple minutes' walk away, providing an unbeatable connection to the outdoors. Modern design, premier amenities, and an unbeatable location.
展开全部
Listing Agent Info
Patrick Mercer • Keller Williams Realty La Jolla •  Phone: (858) 457-9400 •  Email: Patrick@Mercergrouprealestate.com • View more info
Copyright © 2026 SANDICOR MLS All rights reserved. All information provided by the listing agent/broker is deemed reliable but is not guaranteed and should be independently verified.
联系经纪人
买方经纪人
*我是经纪人,想出现在这
Lequn Liu
刘乐群 Lequn Liu
Sun & Company Inc.
点击查看经纪人详情
CAIQING Liu
CAIQING Liu
Uscahome Realty Inc.圣地亚哥美嘉地产
点击查看经纪人详情
Joanna Chiu
周安娜 Joanna Chiu
San Terra Properties
点击查看经纪人详情
Yawen Cheng
程雅文 Yawen Cheng
USA Realty and Loans
点击查看经纪人详情
买方经纪人
*我是经纪人,想出现在这
Lequn Liu
刘乐群 Lequn Liu
Sun & Company Inc.
点击查看经纪人详情
CAIQING Liu
CAIQING Liu
Uscahome Realty Inc.圣地亚哥美嘉地产
点击查看经纪人详情
Joanna Chiu
周安娜 Joanna Chiu
San Terra Properties
点击查看经纪人详情
Yawen Cheng
程雅文 Yawen Cheng
USA Realty and Loans
点击查看经纪人详情
所有信息安全可靠
不收费用并非中介
实时更新详尽信息
专业平台让您放心
外居乐美国房产
外居乐美国房产网提供真实海外房源信息,涵盖海量美国房产、海外学区房与房源周边社区信息。并联合全球超过6268名海外房产经纪人,推出美国豪宅、别墅、公寓、住宅、土地等类型的海外房产投资项目。通过外居乐,买家不再受虚假房源的困扰,通过可靠的美国房产经纪人,放心找到实时在售美国房产。海外房产投资,就上外居乐!
425-896-8335
微信扫码
Wechat
获取每日新鲜热辣的海外房产投资资讯,请扫描二维码关注外居乐。
Download App
扫描下载APP
海外购房更便捷
WJL HomeServices LLC.
#20293
WJL HomeServices Inc.
CA BRE# 02040249
7 Springs Properties, Inc.
CA BRE#01884805
© 2015 外居乐 版权所有 | 沪ICP备15046544号-2