提交购房需求
外居乐为您提供专属的购房服务
扫描获取每日新鲜热辣的海外房产资讯
waijule2015
Wechat
扫描下载APP
海外购房更便捷
外居乐
App
Consultant
小乐
专业咨询顾问
查看地图
123-125 Centre St, Boston MA 02124 #TH6, MA, 02124

美国波士顿波士顿市3室3卫公寓

波士顿市三室三卫公寓  |  房产编号 B404627  |  发布于47天前
$895,000
约¥637万
$3,610 / 贷款月供
? / 投资回报率
基本信息
房屋类型公寓
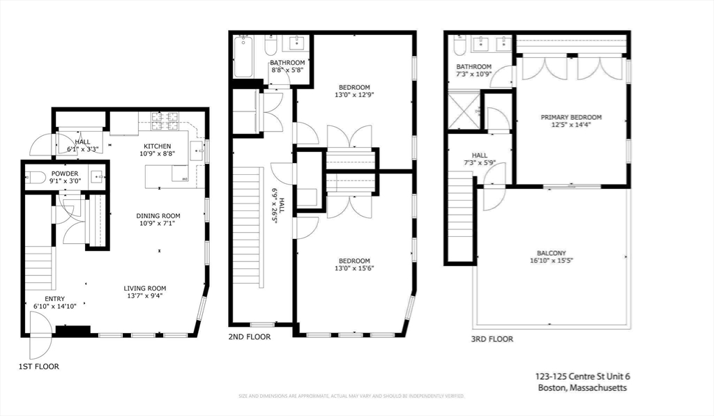
建筑面积1,702 平方英尺 (约 158 平方米)
土地面积--
建筑年代2021年
停车位数1
卧室数量3间
3/4卫浴数0间
MLS#73425739
单位价格$525/平方英尺 (约¥40,300/平方米)
房产税$468/月 (约¥3,336/月)
物业费--
预估月租金--
完整卫浴数2间
1/2卫浴数1间
交易状态待出售
投资回报率
8年年化投资回报率:?
现金购房出租净收益率:?
房屋增值
房屋总价
$895,000
首付比例
40.00%
持有年限
8年
预估年增值率
3.54%
过去十二个月房价趋势
15.93%
收入与支出 / 月
预估租金
--
房产税
$468
物业费
$0
保险费
$93
维护费
$111
投资回报率仅供参考,各类参考数据来源于不同的政府数据库与商业数据库,外居乐不对数据准确负任何直接或间接的责任。
城市介绍
波士顿市
波士顿市Boston,美东地区仅次于纽约的第二大华人聚居地,这里大约生活着10万左右的华人。它位于美国东北部大西洋沿岸,总面积为232平方公里,她是美国最古老、最具有历史文化价值的城市之一,也是全美人口受教育程度最高的城市。著名的哈佛大学、麻省理工学院、波士顿大学就座落在大波士顿地区的卫星城里,整个波士顿都会区拥有100多所大学,超过25万名大学生在此接受教育。波士顿市整体房市平平,但华裔小区的发展和开发却成为一大亮点。未来10年,将有60%-70%的建设落在华人聚集的第二选区,波士顿市区的华埠地界将进一步扩大,成为波士顿地区最有经济价值的地区之一。波士顿是美国房产市场发展最健康的20个城市,具有房价稳定增长和房产增值保值的优势,适合作为投资的首选地。位于波士顿市区西面的后湾(Back Bay)和灯塔山(Beacon Hill)是波士顿市最昂贵、最好的街区,而奥斯顿(Allston)和布莱顿(Brighton),则因为临近剑桥大学城,而十分适合教育置业。 了解更多
学校信息
暂无数据,请联系经纪人
社区信息
社区人口数
49,867
社区安全指数
非常安全
平均家庭收入
低于本州平均家庭收入27.73%
低于全美平均家庭收入8.77%
本地本州全美$48,350$66,900$53,000
大学及以上教育比例
本地本州全美23.6%47.1%36.7%
失业率
本地本州全美3.6%6.0%6.2%
蓝白领比例
  • 44.1%蓝领
  • 55.9%白领
生活成本指数
服务教育娱乐餐饮医疗住房整体交通公共事业全美平均8866.561.778.257.882.175.174.249.2100
注:价格指数全美范围内的平均值是100。如果该指数高于100则意味着该商品的价格高于全国平均水平。相应的,如果低于100则意味着该商品价格低于全国平均水平。
房屋贷款
房屋总价: $895,000
  • $3,049本金利息
  • $468房产税
  • $93保险费
$3,610
(月供)
首付
$
百分比
%
贷款计划30年固定利率
年利率
%
房源介绍
OPEN HOUSES SAT & SUN 12:30 - 2 PM! MUST-SEE IN-PERSON! An exquisite 2021-built townhouse. 3-levels of stylish living, private park-facing deck & covered parking. The 1st floor is a dream for entertaining, w/bright open floor plan seamlessly connecting living, dining, half bath & kitchen - featuring clean & classic white quartz counters, center island, subway tile backsplash & SS appliances. The 2nd floor has 2 spacious bedrooms w/large built-out closets, convenient laundry & full bath. The top floor is a luxurious master suite complete w/beautifully built-out walk-in closet, en-suite bath & a private deck facing the park perfect for soaking in fresh air. Nestled in a prime location off Dot Ave, between Dorchester Center & Ashmont, provides easy access to vibrant shopping, dining & T-station 1/10 mile away, abuts serene Loesch Family Park. A haven for modern living, convenience, tranquility & a stunning townhouse!
展开全部
Listing Agent Info
Courtesy of undefined undefined,
联系经纪人
买方经纪人
*我是经纪人,想出现在这
CeCe Yan
延曦曦 CeCe Yan
Pinnacle Residential Properties
点击查看经纪人详情
Maggie Li
李云翔 Maggie Li
Keller Williams Boston Southwest
点击查看经纪人详情
Amelie Cheng
鄭怡 Amelie Cheng
Montivista Real Estate Investment - Keller Williams Boston Southwest
点击查看经纪人详情
Janet Wu Cook
吳慧娟 Janet Wu Cook
Keller Williams Realty- KW Elite
点击查看经纪人详情
       By searching, you agree to the MLS Terms of Use.
买方经纪人
*我是经纪人,想出现在这
CeCe Yan
延曦曦 CeCe Yan
Pinnacle Residential Properties
点击查看经纪人详情
Maggie Li
李云翔 Maggie Li
Keller Williams Boston Southwest
点击查看经纪人详情
Amelie Cheng
鄭怡 Amelie Cheng
Montivista Real Estate Investment - Keller Williams Boston Southwest
点击查看经纪人详情
Janet Wu Cook
吳慧娟 Janet Wu Cook
Keller Williams Realty- KW Elite
点击查看经纪人详情
所有信息安全可靠
不收费用并非中介
实时更新详尽信息
专业平台让您放心
外居乐美国房产
外居乐美国房产网提供真实海外房源信息,涵盖海量美国房产、海外学区房与房源周边社区信息。并联合全球超过6268名海外房产经纪人,推出美国豪宅、别墅、公寓、住宅、土地等类型的海外房产投资项目。通过外居乐,买家不再受虚假房源的困扰,通过可靠的美国房产经纪人,放心找到实时在售美国房产。海外房产投资,就上外居乐!
425-896-8335
微信扫码
Wechat
获取每日新鲜热辣的海外房产投资资讯,请扫描二维码关注外居乐。
Download App
扫描下载APP
海外购房更便捷
WJL HomeServices LLC.
#20293
WJL HomeServices Inc.
CA BRE# 02040249
7 Springs Properties, Inc.
CA BRE#01884805
© 2015 外居乐 版权所有 | 沪ICP备15046544号-2