提交购房需求
外居乐为您提供专属的购房服务
扫描获取每日新鲜热辣的海外房产资讯
waijule2015
Wechat
扫描下载APP
海外购房更便捷
外居乐
App
Consultant
小乐
专业咨询顾问
查看地图
26 Richardson Rd # 26, Burlington MA 01803 #26, MA, 01803

美国波士顿3室4卫公寓

波士顿三室四卫公寓  |  房产编号 B415351  |  发布于121天前
$849,900
约¥603万
$3,484 / 贷款月供
? / 投资回报率
基本信息
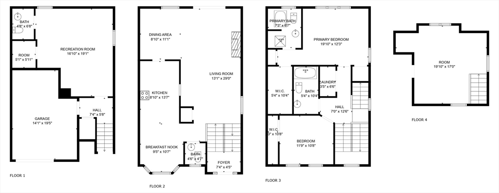
房屋类型公寓
建筑面积2,388 平方英尺 (约 222 平方米)
土地面积--
建筑年代2003年
停车位数1
卧室数量3间
3/4卫浴数0间
MLS#73406209
单位价格$355/平方英尺 (约¥27,198/平方米)
房产税$500/月 (约¥3,553/月)
物业费--
预估月租金--
完整卫浴数2间
1/2卫浴数2间
交易状态待出售
投资回报率
8年年化投资回报率:?
现金购房出租净收益率:?
房屋增值
房屋总价
$849,900
首付比例
40.00%
持有年限
8年
预估年增值率
3.54%
过去十二个月房价趋势
5.38%
收入与支出 / 月
预估租金
--
房产税
$500
物业费
$0
保险费
$88
维护费
$106
投资回报率仅供参考,各类参考数据来源于不同的政府数据库与商业数据库,外居乐不对数据准确负任何直接或间接的责任。
城市介绍
波士顿
波士顿Boston是美国马萨诸塞州的首府和最大城市,也是新英格兰地区的最大城市,其人口规模全美大都市排名第21。该市位于美国东北部大西洋沿岸,创建于1630年,是美国最古老、最具有历史文化价值的城市之一。波士顿是欧洲清教徒移民最早登陆美洲所建立的城市,在美国革命期间是许多重要事件的发源地,曾经是一个重要的航运港口和制造业中心。今天,该市是美国高等教育、医疗保健及投资基金的中心,是全美人口受教育程度最高的城市,它的经济基础是教育、金融、医疗及科技,是全美人均收入最高的少数大城市之一,并被认为是一个全球性城市或世界性城市。 该市位于大波士顿都会区的中心,这个都会区包括萨福克县的全部和剑桥、昆西、牛顿、萨默维尔、里维尔和切尔西等城市,以及一些小镇和远离波士顿的郊区,还包括了新罕布什尔州的一部分。 由于开发较早的缘故,波士顿人口密度非常高。根据美国人口调查局资料,该市的总面积为89.6平方英里 (232.1平方公里);其中陆地面积为48.4平方英里 (125.4平方公里),水域面积为41.2平方英里 (106.7平方公里,占46.0%)。根据2012年美国人口统计,该市拥有6,570,707人口。人口密度为12,792.7人/平方英里 (4,697人/平方千米)。 2008年,大波士顿都市区GDP达到3630亿美元,是美国第6大,世界第12大城市经济体。 波士顿的大学是影响该市和整个区域经济的主要因素。他们不仅是主要的雇主,而且将高技术产业吸引到该市及附近地区,包括计算机硬件与软件公司,以及生物工程公司 (如千禧年医药)。波士顿每年从国家健康协会得到的资金是所有美国城市中最多的。 其他重要产业有金融业 (特别是共同基金)和保险业。以波士顿为基地的富达投资 (Fidelity)在1980年代帮助普及共同基金,使得波士顿成为美国的顶级金融城市之一。该市还拥有主要银行的地区总部如美洲银行和王者银行 (Sovereign),风险资本的中心.波士顿还是一个印刷与出版业中心。教科书出版商霍顿·米夫林出版社的总部设在市内。了解更多
学校信息
暂无数据,请联系经纪人
社区信息
社区人口数
24,372
社区安全指数
非常安全
平均家庭收入
高于本州平均家庭收入41.28%
高于全美平均家庭收入78.34%
本地本州全美$94,518$66,900$53,000
大学及以上教育比例
本地本州全美47.1%47.1%36.7%
失业率
本地本州全美3.0%6.0%6.2%
蓝白领比例
  • 25.0%蓝领
  • 75.0%白领
生活成本指数
服务教育娱乐餐饮医疗住房整体交通公共事业全美平均135.8152.2115.7114.7101.1114.7118.4115.1107.3100
注:价格指数全美范围内的平均值是100。如果该指数高于100则意味着该商品的价格高于全国平均水平。相应的,如果低于100则意味着该商品价格低于全国平均水平。
房屋贷款
房屋总价: $849,900
  • $2,895本金利息
  • $500房产税
  • $88保险费
$3,484
(月供)
首付
$
百分比
%
贷款计划30年固定利率
年利率
%
房源介绍
Corner unit townhome at a great location and on a quiet dead-end street, with minutes to I-95 Highway, shopping malls, grocery stores and restaurants. This bright and young 4-level townhome boasts an open floor living with garage parking and move-in condition. It features a formal living room with a fireplace, and an eat-in kitchen with cherry cabinets, granite counters, and stainless-steel appliances. Off the living room, enter through the doors to your oversized deck, where you'll find yourself relaxing on those summer days & nights.The large ensuite main bedroom has a walk in closet and private views.Bonus room on the 3rd floor and fully finished basement provide additional spaces for a family room, media room or home office.
展开全部
Listing Agent Info
Courtesy of undefined undefined,
联系经纪人
买方经纪人
*我是经纪人,想出现在这
Janet Wu Cook
吳慧娟 Janet Wu Cook
Keller Williams Realty- KW Elite
点击查看经纪人详情
Maggie Li
李云翔 Maggie Li
Keller Williams Boston Southwest
点击查看经纪人详情
CeCe Yan
延曦曦 CeCe Yan
Pinnacle Residential Properties
点击查看经纪人详情
Amelie Cheng
鄭怡 Amelie Cheng
Montivista Real Estate Investment - Keller Williams Boston Southwest
点击查看经纪人详情
       By searching, you agree to the MLS Terms of Use.
买方经纪人
*我是经纪人,想出现在这
Janet Wu Cook
吳慧娟 Janet Wu Cook
Keller Williams Realty- KW Elite
点击查看经纪人详情
Maggie Li
李云翔 Maggie Li
Keller Williams Boston Southwest
点击查看经纪人详情
CeCe Yan
延曦曦 CeCe Yan
Pinnacle Residential Properties
点击查看经纪人详情
Amelie Cheng
鄭怡 Amelie Cheng
Montivista Real Estate Investment - Keller Williams Boston Southwest
点击查看经纪人详情
所有信息安全可靠
不收费用并非中介
实时更新详尽信息
专业平台让您放心
外居乐美国房产
外居乐美国房产网提供真实海外房源信息,涵盖海量美国房产、海外学区房与房源周边社区信息。并联合全球超过6268名海外房产经纪人,推出美国豪宅、别墅、公寓、住宅、土地等类型的海外房产投资项目。通过外居乐,买家不再受虚假房源的困扰,通过可靠的美国房产经纪人,放心找到实时在售美国房产。海外房产投资,就上外居乐!
425-896-8335
微信扫码
Wechat
获取每日新鲜热辣的海外房产投资资讯,请扫描二维码关注外居乐。
Download App
扫描下载APP
海外购房更便捷
WJL HomeServices LLC.
#20293
WJL HomeServices Inc.
CA BRE# 02040249
7 Springs Properties, Inc.
CA BRE#01884805
© 2015 外居乐 版权所有 | 沪ICP备15046544号-2