提交购房需求
外居乐为您提供专属的购房服务
扫描获取每日新鲜热辣的海外房产资讯
waijule2015
Wechat
扫描下载APP
海外购房更便捷
外居乐
App
Consultant
小乐
专业咨询顾问
查看地图
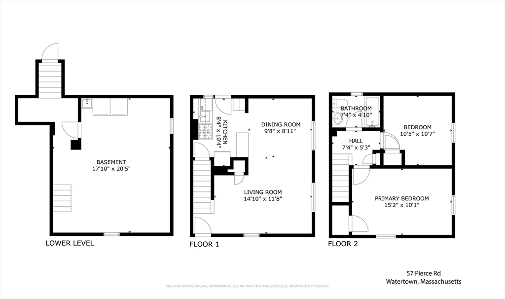
57 Pierce Rd # 57, Watertown MA 02472 #57, MA, 02472

美国波士顿沃特敦2室1卫公寓

沃特敦二室一卫公寓  |  房产编号 B420605  |  发布于59天前
$539,000
约¥383万
$2,353 / 贷款月供
? / 投资回报率
基本信息
房屋类型公寓
建筑面积1,311 平方英尺 (约 122 平方米)
土地面积--
建筑年代1940年
停车位数1
卧室数量2间
3/4卫浴数0间
MLS#73424689
单位价格$411/平方英尺 (约¥31,468/平方米)
房产税$461/月 (约¥3,280/月)
物业费--
预估月租金--
完整卫浴数1间
1/2卫浴数0间
交易状态待出售
投资回报率
8年年化投资回报率:?
现金购房出租净收益率:?
房屋增值
房屋总价
$539,000
首付比例
40.00%
持有年限
8年
预估年增值率
3.54%
过去十二个月房价趋势
0.31%
收入与支出 / 月
预估租金
--
房产税
$461
物业费
$0
保险费
$56
维护费
$67
投资回报率仅供参考,各类参考数据来源于不同的政府数据库与商业数据库,外居乐不对数据准确负任何直接或间接的责任。
城市介绍
波士顿沃特敦
沃特敦Watertown 位于美国马萨诸塞州东部的米德尔塞克斯县,在查尔斯河波士顿西北六英里。它与贝尔蒙特和剑桥北面接壤,在波士顿和牛顿南部,沃尔瑟姆西部。陆地面积为4.17平方英里。虽然人口稠密,但沃特敦开放了不少的地区,如公园、墓地、河岸等。沃尔特充满名族多样性,亚美尼亚、爱尔兰、意大利、加拿大、希腊等等多样的文化紧密联系着,丰富了沃特敦居民以及游客们的生活。十九世纪城市发展作为一个制造中心。创造工业财富,在第二十世纪初,沃特敦居住的百万富翁人数相比其他城市都要高。了解更多
学校信息
暂无数据,请联系经纪人
社区信息
社区人口数
32,274
社区安全指数
非常安全
平均家庭收入
高于本州平均家庭收入30.66%
高于全美平均家庭收入64.92%
本地本州全美$87,409$66,900$53,000
大学及以上教育比例
本地本州全美59.6%47.1%36.7%
失业率
本地本州全美2.8%6.0%6.2%
蓝白领比例
  • 22.9%蓝领
  • 77.1%白领
生活成本指数
服务教育娱乐餐饮医疗住房整体交通公共事业全美平均146.2156.7130.5129.4114.2130132.8129.4114.6100
注:价格指数全美范围内的平均值是100。如果该指数高于100则意味着该商品的价格高于全国平均水平。相应的,如果低于100则意味着该商品价格低于全国平均水平。
房屋贷款
房屋总价: $539,000
  • $1,836本金利息
  • $461房产税
  • $56保险费
$2,353
(月供)
首付
$
百分比
%
贷款计划30年固定利率
年利率
%
房源介绍
Step into an amazing opportunity to enter the Watertown market this fall at the beloved Village Condominiums! Sunny & inviting corner townhouse set across 3 levels of living. Featuring a welcoming flow w/ a light-filled living room, hardwood floors & open dining area off the updated kitchen fixed with "SS" appliances, granite counters, ample cabinetry & breakfast bar w/ counter seating seamlessly connecting the space. Upstairs, hardwood continues, 2 generous bedrooms w/ great closet space & a full bath. The lower level presents an unfinished basement, perfectly suited for storage, hobbies, or future customization to match your style & needs. Additional highlights: central air, in-unit laundry & assigned off-street parking. The Village is a pro managed community w/ lush courtyards, in-ground pool & resident clubhouse. High owner-occupancy underscores the strong sense of community. Easy access to public transportation, Rt.2 & Mass Pike, offering the best of both convenience & lifestyle!
展开全部
Listing Agent Info
Courtesy of undefined undefined,
联系经纪人
买方经纪人
*我是经纪人,想出现在这
Amelie Cheng
鄭怡 Amelie Cheng
Montivista Real Estate Investment - Keller Williams Boston Southwest
点击查看经纪人详情
Julie Yue Cremin
朱悦 Julie Yue Cremin
William Raveis 房地产公司
点击查看经纪人详情
Maggie Li
李云翔 Maggie Li
Keller Williams Boston Southwest
点击查看经纪人详情
CeCe Yan
延曦曦 CeCe Yan
Pinnacle Residential Properties
点击查看经纪人详情
       By searching, you agree to the MLS Terms of Use.
买方经纪人
*我是经纪人,想出现在这
Amelie Cheng
鄭怡 Amelie Cheng
Montivista Real Estate Investment - Keller Williams Boston Southwest
点击查看经纪人详情
Julie Yue Cremin
朱悦 Julie Yue Cremin
William Raveis 房地产公司
点击查看经纪人详情
Maggie Li
李云翔 Maggie Li
Keller Williams Boston Southwest
点击查看经纪人详情
CeCe Yan
延曦曦 CeCe Yan
Pinnacle Residential Properties
点击查看经纪人详情
所有信息安全可靠
不收费用并非中介
实时更新详尽信息
专业平台让您放心
外居乐美国房产
外居乐美国房产网提供真实海外房源信息,涵盖海量美国房产、海外学区房与房源周边社区信息。并联合全球超过6268名海外房产经纪人,推出美国豪宅、别墅、公寓、住宅、土地等类型的海外房产投资项目。通过外居乐,买家不再受虚假房源的困扰,通过可靠的美国房产经纪人,放心找到实时在售美国房产。海外房产投资,就上外居乐!
425-896-8335
微信扫码
Wechat
获取每日新鲜热辣的海外房产投资资讯,请扫描二维码关注外居乐。
Download App
扫描下载APP
海外购房更便捷
WJL HomeServices LLC.
#20293
WJL HomeServices Inc.
CA BRE# 02040249
7 Springs Properties, Inc.
CA BRE#01884805
© 2015 外居乐 版权所有 | 沪ICP备15046544号-2