提交购房需求
外居乐为您提供专属的购房服务
扫描获取每日新鲜热辣的海外房产资讯
waijule2015
Wechat
扫描下载APP
海外购房更便捷
外居乐
App
Consultant
小乐
专业咨询顾问
查看地图
140 Butternut Hollow # 140, Acton MA 01718 #140, MA, 01718

美国波士顿2室2卫公寓

波士顿二室二卫公寓  |  房产编号 B429914  |  发布于24天前
$429,900
约¥303万
$2,095 / 贷款月供
? / 投资回报率
基本信息
房屋类型公寓
建筑面积1,655 平方英尺 (约 154 平方米)
土地面积--
建筑年代1972年
停车位数2
卧室数量2间
3/4卫浴数0间
MLS#73457879
单位价格$259/平方英尺 (约¥19,687/平方米)
房产税$586/月 (约¥4,130/月)
物业费--
预估月租金--
完整卫浴数1间
1/2卫浴数1间
交易状态待出售
投资回报率
8年年化投资回报率:?
现金购房出租净收益率:?
房屋增值
房屋总价
$429,900
首付比例
40.00%
持有年限
8年
预估年增值率
3.54%
过去十二个月房价趋势
14.59%
收入与支出 / 月
预估租金
--
房产税
$586
物业费
$0
保险费
$44
维护费
$53
投资回报率仅供参考,各类参考数据来源于不同的政府数据库与商业数据库,外居乐不对数据准确负任何直接或间接的责任。
城市介绍
波士顿
波士顿Boston是美国马萨诸塞州的首府和最大城市,也是新英格兰地区的最大城市,其人口规模全美大都市排名第21。该市位于美国东北部大西洋沿岸,创建于1630年,是美国最古老、最具有历史文化价值的城市之一。波士顿是欧洲清教徒移民最早登陆美洲所建立的城市,在美国革命期间是许多重要事件的发源地,曾经是一个重要的航运港口和制造业中心。今天,该市是美国高等教育、医疗保健及投资基金的中心,是全美人口受教育程度最高的城市,它的经济基础是教育、金融、医疗及科技,是全美人均收入最高的少数大城市之一,并被认为是一个全球性城市或世界性城市。 该市位于大波士顿都会区的中心,这个都会区包括萨福克县的全部和剑桥、昆西、牛顿、萨默维尔、里维尔和切尔西等城市,以及一些小镇和远离波士顿的郊区,还包括了新罕布什尔州的一部分。 由于开发较早的缘故,波士顿人口密度非常高。根据美国人口调查局资料,该市的总面积为89.6平方英里 (232.1平方公里);其中陆地面积为48.4平方英里 (125.4平方公里),水域面积为41.2平方英里 (106.7平方公里,占46.0%)。根据2012年美国人口统计,该市拥有6,570,707人口。人口密度为12,792.7人/平方英里 (4,697人/平方千米)。 2008年,大波士顿都市区GDP达到3630亿美元,是美国第6大,世界第12大城市经济体。 波士顿的大学是影响该市和整个区域经济的主要因素。他们不仅是主要的雇主,而且将高技术产业吸引到该市及附近地区,包括计算机硬件与软件公司,以及生物工程公司 (如千禧年医药)。波士顿每年从国家健康协会得到的资金是所有美国城市中最多的。 其他重要产业有金融业 (特别是共同基金)和保险业。以波士顿为基地的富达投资 (Fidelity)在1980年代帮助普及共同基金,使得波士顿成为美国的顶级金融城市之一。该市还拥有主要银行的地区总部如美洲银行和王者银行 (Sovereign),风险资本的中心.波士顿还是一个印刷与出版业中心。教科书出版商霍顿·米夫林出版社的总部设在市内。了解更多
学校信息
暂无数据,请联系经纪人
社区信息
社区人口数
367
社区安全指数
非常安全
平均家庭收入
高于本州平均家庭收入103.26%
高于全美平均家庭收入156.57%
本地本州全美$135,982$66,900$53,000
大学及以上教育比例
本地本州全美91.5%47.1%36.7%
失业率
本地本州全美2.9%6.0%6.2%
蓝白领比例
  • 21.9%蓝领
  • 78.1%白领
生活成本指数
服务教育娱乐餐饮医疗住房整体交通公共事业全美平均176.7201.8133.6139.6112.1140.2143.1137.2117.7100
注:价格指数全美范围内的平均值是100。如果该指数高于100则意味着该商品的价格高于全国平均水平。相应的,如果低于100则意味着该商品价格低于全国平均水平。
房屋贷款
房屋总价: $429,900
  • $1,464本金利息
  • $586房产税
  • $44保险费
$2,095
(月供)
首付
$
百分比
%
贷款计划30年固定利率
年利率
%
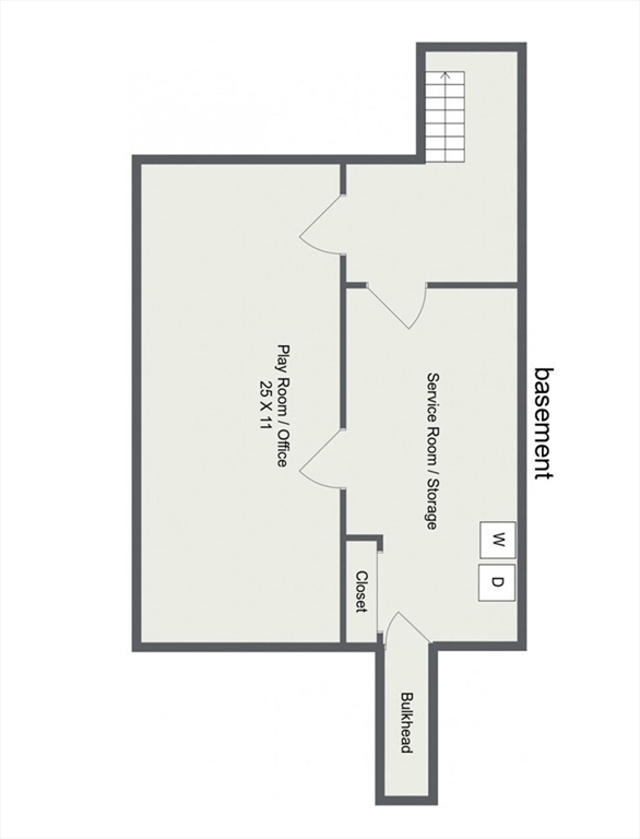
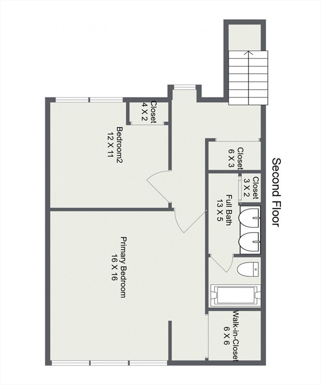
房源介绍
Bright and welcoming, this end-unit condominium offers sun-filled living across three levels. Large windows and skylights create a warm, uplifting atmosphere from the moment you enter. The living room opens to the dining area, forming a comfortable space for gatherings or everyday relaxation. The kitchen features black granite countertops and a bright window that enhances its functionality. Upstairs, the spacious primary bedroom shines with multiple windows, abundant natural light, and an open view to the living room that adds unique style and character. A separate sink area upstairs adds convenience. The finished lower level provides valuable flex space for a home office, playroom, or gym. Ample closets on all levels offer excellent storage. Positioned in a desirable corner location, the home enjoys enhanced curb appeal and a more private backyard patio. Community perks include a clubhouse, gym, pool, tennis courts, and playground, with beautiful Nagog Pond just minutes away.
展开全部
Listing Agent Info
Courtesy of undefined undefined,
联系经纪人
买方经纪人
*我是经纪人,想出现在这
Maggie Li
李云翔 Maggie Li
Keller Williams Boston Southwest
点击查看经纪人详情
CeCe Yan
延曦曦 CeCe Yan
Pinnacle Residential Properties
点击查看经纪人详情
Julie Yue Cremin
朱悦 Julie Yue Cremin
William Raveis 房地产公司
点击查看经纪人详情
Janet Wu Cook
吳慧娟 Janet Wu Cook
Keller Williams Realty- KW Elite
点击查看经纪人详情
       By searching, you agree to the MLS Terms of Use.
买方经纪人
*我是经纪人,想出现在这
Maggie Li
李云翔 Maggie Li
Keller Williams Boston Southwest
点击查看经纪人详情
CeCe Yan
延曦曦 CeCe Yan
Pinnacle Residential Properties
点击查看经纪人详情
Julie Yue Cremin
朱悦 Julie Yue Cremin
William Raveis 房地产公司
点击查看经纪人详情
Janet Wu Cook
吳慧娟 Janet Wu Cook
Keller Williams Realty- KW Elite
点击查看经纪人详情
所有信息安全可靠
不收费用并非中介
实时更新详尽信息
专业平台让您放心
外居乐美国房产
外居乐美国房产网提供真实海外房源信息,涵盖海量美国房产、海外学区房与房源周边社区信息。并联合全球超过6268名海外房产经纪人,推出美国豪宅、别墅、公寓、住宅、土地等类型的海外房产投资项目。通过外居乐,买家不再受虚假房源的困扰,通过可靠的美国房产经纪人,放心找到实时在售美国房产。海外房产投资,就上外居乐!
425-896-8335
微信扫码
Wechat
获取每日新鲜热辣的海外房产投资资讯,请扫描二维码关注外居乐。
Download App
扫描下载APP
海外购房更便捷
WJL HomeServices LLC.
#20293
WJL HomeServices Inc.
CA BRE# 02040249
7 Springs Properties, Inc.
CA BRE#01884805
© 2015 外居乐 版权所有 | 沪ICP备15046544号-2