提交购房需求
外居乐为您提供专属的购房服务
扫描获取每日新鲜热辣的海外房产资讯
waijule2015
Wechat
扫描下载APP
海外购房更便捷
外居乐
App
Consultant
小乐
专业咨询顾问
查看地图
3328 Woodward Street, Oceanside, NY, 11572

美国纽约5室5卫独栋别墅

纽约五室五卫独栋别墅  |  房产编号 J407914  |  发布于106天前
$1,149,000
约¥794万
$5,771 / 贷款月供
? / 投资回报率
基本信息
房屋类型独栋别墅
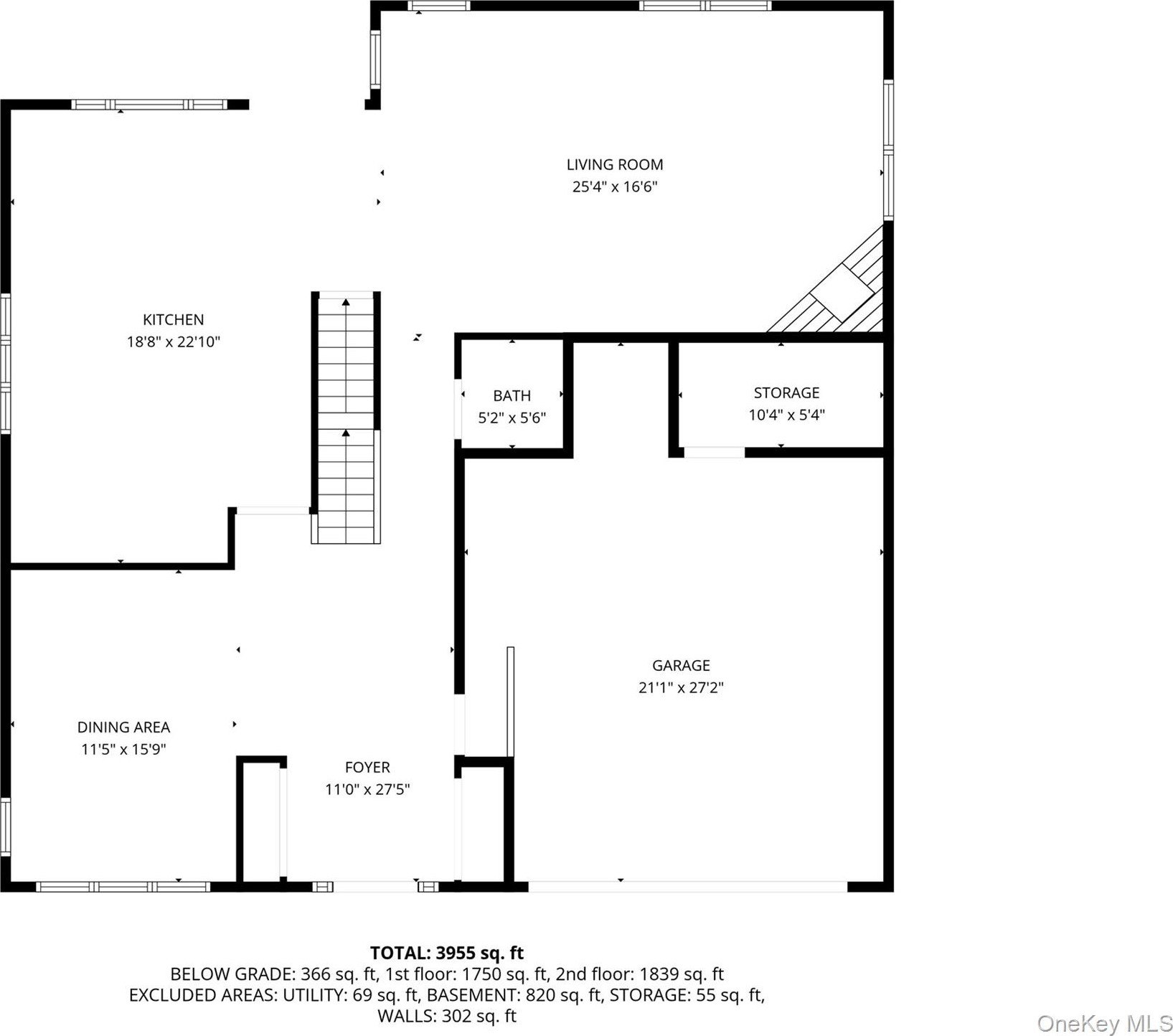
建筑面积3,305 平方英尺 (约 307 平方米)
土地面积5,998 平方英尺 (约 557 平方米)
建筑年代2005年
停车位数--
卧室数量5间
3/4卫浴数0间
MLS#928051
单位价格$347/平方英尺 (约¥25,862/平方米)
房产税$1,737/月 (约¥12,007/月)
物业费--
预估月租金--
完整卫浴数4间
1/2卫浴数1间
交易状态待出售
投资回报率
8年年化投资回报率:?
现金购房出租净收益率:?
房屋增值
房屋总价
$1,149,000
首付比例
40.00%
持有年限
8年
预估年增值率
3.09%
过去十二个月房价趋势
6.68%
收入与支出 / 月
预估租金
--
房产税
$1,737
物业费
$0
保险费
$119
维护费
$143
投资回报率仅供参考,各类参考数据来源于不同的政府数据库与商业数据库,外居乐不对数据准确负任何直接或间接的责任。
城市介绍
纽约
纽约New York是美国人口最多的城市,世界最大的城市之一,纽约都会区的核心,一座对全球的经济、商业、金融、媒体、政治、教育和娱乐具有极大影响力的国际大都会。纽约还是联合国总部的所在地,因此纽约也被认为是世界外交的中心。纽约还被称为世界文化之都,名列纽伦港世界三大国际都会之一。 纽约位于美国大西洋海岸的东北部,坐拥世界上最大的天然港口之一—纽约港。纽约市共有曼哈顿区、皇后区、布鲁克林区、布朗克斯区及斯塔滕岛区五个行政区,每一个行政区也各自是纽约州的一个县。1898年,五个行政区被合并为现在的纽约。 纽约也是全美国人口最密集的主要城市,2012年约有11,065,667人居住于302.64平方英里 (783.8平方千米)的土地上。 纽约为全球电视、广告、音乐、报纸和图书出版业的重镇,亦是北美最大的媒体市场 (其次为洛杉矶、芝加哥和多伦多)。知名的媒体企业包括时代华纳、汤森路透公司、美国联合通讯社、新闻集团、纽约时报公司、NBC环球、赫斯特国际集团和维亚康姆。电视产业对于纽约来说是相当重要的经济命脉。美国四大广播公司,包括美国广播公司、哥伦比亚广播公司、福克斯广播公司和国家广播公司,都在纽约设立总部。 纽约市是全球商业和经贸的枢纽,与伦敦和东京并列为世界上三个最重要的金融中心,此外还是全美的银行业、零售业、世界贸易、运输、旅游业、地产业、新媒体、传统媒体、广告业、法律服务、会计业、保险业、戏剧、时尚和艺术产业的中心。 根据2010年的数据,纽约都会区的都会生产总值 (GMP,与国内生产总值概念类似)达到近1.28万亿美元,是美国最大的区域经济体。2008年年底,纽约掌控了全球40%的金融资金,使之成为全球最大的金融中心。许多大型企业都在纽约市设立总部,财富美国500强中就有45家公司的总部位于该市。 纽约还是许多知名私立大学的所在地,其中包括巴纳德学院、哥伦比亚大学、库伯联盟学院、福坦莫大学、纽约大学、纽约科技学院、佩斯大学和叶史瓦大学等。了解更多
学校信息
暂无数据,请联系经纪人
社区信息
社区人口数
29,540
社区安全指数
非常安全
平均家庭收入
高于本州平均家庭收入65.09%
高于全美平均家庭收入80.66%
本地本州全美$95,750$58,000$53,000
大学及以上教育比例
本地本州全美44.2%41.6%36.7%
失业率
本地本州全美4.2%5.9%6.2%
蓝白领比例
  • 26.7%蓝领
  • 73.3%白领
生活成本指数
服务教育娱乐餐饮医疗住房整体交通公共事业全美平均122.1136.1117.7108.4101.9108.4113.6111.6109.2100
注:价格指数全美范围内的平均值是100。如果该指数高于100则意味着该商品的价格高于全国平均水平。相应的,如果低于100则意味着该商品价格低于全国平均水平。
房屋贷款
房屋总价: $1,149,000
  • $3,914本金利息
  • $1,737房产税
  • $119保险费
$5,771
(月供)
首付
$
百分比
%
贷款计划30年固定利率
年利率
%
房源介绍
Welcome to this beautiful and spacious 3,300 sq. ft. home offering comfort, style, and exceptional amenities throughout. Step into a welcoming entry foyer with a coat closet that opens to a formal dining room and a convenient half bath. The elegant chef's kitchen features granite countertops, stainless steel appliances, a wine fridge, and plenty of cabinetry-perfect for everyday living and entertaining.Enjoy relaxing in the expansive living room with a cozy fireplace and detailed crown moldings. The upstairs level features a luxurious primary suite with walk-in his-and-hers closets, a private bath with a jetted soaking tub, walk-in shower, and double sinks. Four additional bedrooms and two full baths provide plenty of space for family and guests.The finished 850 sq. ft. basement offers even more versatility with a private room, full bath, and large open area ideal for a recreation room or entertaining space.Outside, enjoy a beautifully maintained yard with a hot tub, in-ground sprinklers, and ample space to create your own outdoor kitchen. Additional features include central air conditioning, an alarm system, a two-car garage, and generous storage space. Property taxes are currently being grieved.Conveniently located near a golf course, houses of worship, and shopping. This home blends luxury, function, and location-ready to welcome its next owners.
展开全部
Listing Agent Info
Annette Attanasio • Atlantic & Pacific Real Estate (US) LLC •  Phone: (888) 575-2773 •  Email: exitshappen@gmail.com • View more info
Copyright © 2026 OneKey MLS All rights reserved. All information provided by the listing agent/broker is deemed reliable but is not guaranteed and should be independently verified.
联系经纪人
买方经纪人
*我是经纪人,想出现在这
Peggy Yulin Peng
彭郁林 Peggy Yulin Peng
The Corcoran Group
点击查看经纪人详情
Daimian E Dai
戴冕 Daimian E Dai
Winzone Realty Inc
点击查看经纪人详情
Shadow X. Chen
陈熙 Shadow X. Chen
B Square Realty
点击查看经纪人详情
Linda Tan
谭琳达 Linda Tan
KIAN RealtyNYC
点击查看经纪人详情
买方经纪人
*我是经纪人,想出现在这
Peggy Yulin Peng
彭郁林 Peggy Yulin Peng
The Corcoran Group
点击查看经纪人详情
Daimian E Dai
戴冕 Daimian E Dai
Winzone Realty Inc
点击查看经纪人详情
Shadow X. Chen
陈熙 Shadow X. Chen
B Square Realty
点击查看经纪人详情
Linda Tan
谭琳达 Linda Tan
KIAN RealtyNYC
点击查看经纪人详情
所有信息安全可靠
不收费用并非中介
实时更新详尽信息
专业平台让您放心
外居乐美国房产
外居乐美国房产网提供真实海外房源信息,涵盖海量美国房产、海外学区房与房源周边社区信息。并联合全球超过6268名海外房产经纪人,推出美国豪宅、别墅、公寓、住宅、土地等类型的海外房产投资项目。通过外居乐,买家不再受虚假房源的困扰,通过可靠的美国房产经纪人,放心找到实时在售美国房产。海外房产投资,就上外居乐!
425-896-8335
微信扫码
Wechat
获取每日新鲜热辣的海外房产投资资讯,请扫描二维码关注外居乐。
Download App
扫描下载APP
海外购房更便捷
WJL HomeServices LLC.
#20293
WJL HomeServices Inc.
CA BRE# 02040249
7 Springs Properties, Inc.
CA BRE#01884805
© 2015 外居乐 版权所有 | 沪ICP备15046544号-2