


| 房屋类型 | 土地 | |
| 建筑面积 | -- | |
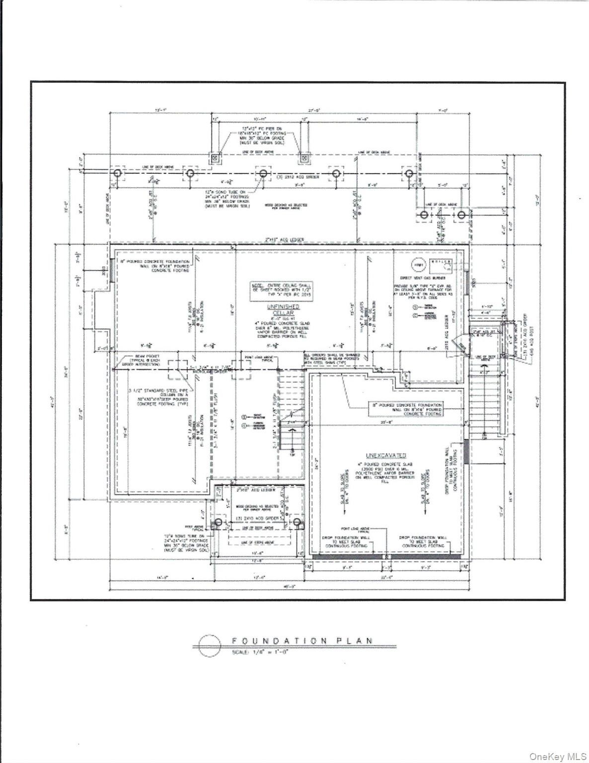
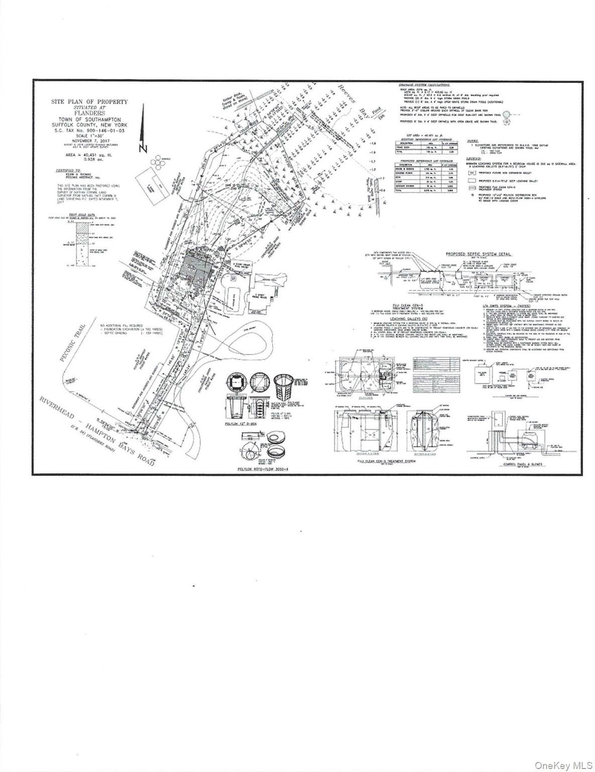
| 土地面积 | 40,511 平方英尺 (约 3,763 平方米) | |
| 建筑年代 | -- | |
| 停车位数 | -- | |
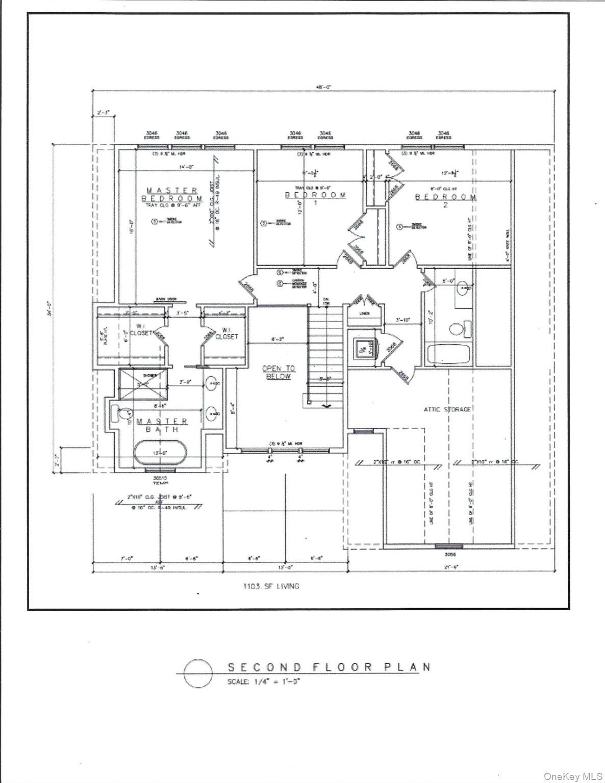
| 卧室数量 | -- | |
| 3/4卫浴数 | 0间 |
| MLS# | 929287 | |
| 单位价格 | -- | |
| 房产税 | $407/月 (约¥2,828/月) | |
| 物业费 | -- | |
| 预估月租金 | -- | |
| 完整卫浴数 | 0间 | |
| 1/2卫浴数 | 0间 | |
| 交易状态 | 待出售 |
| 房屋增值 | |
|---|---|
房屋总价 | $735,000 |
首付比例 | 40.00% |
持有年限 | 8年 |
预估年增值率 | 3.09% |
过去十二个月房价趋势 | -- |
| 收入与支出 / 月 | |
|---|---|
预估租金 | -- |
房产税 | $407 |
物业费 | $0 |
保险费 | $76 |
维护费 | $91 |
| 学校评分 | 学校名称 | 类型 | 年级 | 距离 |
|---|---|---|---|---|
6 | Riverhead Senior High School | 高中 | 9-12 | 5.22km |
3 | Riverhead Middle School | 初中 | 7-8 | 5.00km |
1 | Phillips Avenue School | 小学 | K-4 | 2.68km |


