提交购房需求
外居乐为您提供专属的购房服务
扫描获取每日新鲜热辣的海外房产资讯
waijule2015
Wechat
扫描下载APP
海外购房更便捷
外居乐
App
Consultant
小乐
专业咨询顾问
查看地图
63 Fruitledge Road, Brookville, NY, 11545

美国纽约布鲁克维尔6室7卫独栋别墅

布鲁克维尔六室七卫独栋别墅  |  房产编号 J411334  |  发布于79天前
$5,699,000
约¥3939万
$24,757 / 贷款月供
? / 投资回报率
基本信息
房屋类型独栋别墅
建筑面积6,885 平方英尺 (约 640 平方米)
土地面积87,425 平方英尺 (约 8,122 平方米)
建筑年代2025年
停车位数--
卧室数量6间
3/4卫浴数0间
MLS#949662
单位价格$827/平方英尺 (约¥61,584/平方米)
房产税--
物业费--
预估月租金--
完整卫浴数6间
1/2卫浴数1间
交易状态待出售
投资回报率
8年年化投资回报率:?
现金购房出租净收益率:?
房屋增值
房屋总价
$5,699,000
首付比例
40.00%
持有年限
8年
预估年增值率
3.09%
过去十二个月房价趋势
17.17%
收入与支出 / 月
预估租金
--
房产税
$4,749
物业费
$0
保险费
$593
维护费
$712
投资回报率仅供参考,各类参考数据来源于不同的政府数据库与商业数据库,外居乐不对数据准确负任何直接或间接的责任。
城市介绍
纽约布鲁克维尔
布鲁克维尔Brookville ,位於牡蛎海湾镇,是當年全美最富裕的城镇。 这个被称为长岛黄金海岸的小镇,正是费茨杰拉德(F. Scott Fitzgerald)在其1925年发表的小说《伟大的盖茨比》(The Great Gatsby)的背景所在地。只有居民才可出入的布鲁克维尔,竭尽全力保护隐私。“在布鲁克维尔没有任何一条街道可以停车” ,市长巴齐尼说:“所以如果你想来这里,你得认识这儿的人。” 頗富盛名的私立学校Lutheran也位于布鲁克维尔,它提供六至十二年级入学,被美国教育部评鉴为优质学校。了解更多
学校信息
学校评分学校名称类型年级距离
9
Locust Valley High School
高中
9-12
7.62km
8
Locust Valley Middle School
初中
6-8
7.62km
以上学校和学区信息仅供参考,如需确认,请通过经纪人或者直接与学校联系
社区信息
社区人口数
13,070
社区安全指数
非常安全
平均家庭收入
高于本州平均家庭收入145.21%
高于全美平均家庭收入168.34%
本地本州全美$142,219$58,000$53,000
大学及以上教育比例
本地本州全美65.6%41.6%36.7%
失业率
本地本州全美4.2%5.9%6.2%
蓝白领比例
  • 16.6%蓝领
  • 83.4%白领
生活成本指数
服务教育娱乐餐饮医疗住房整体交通公共事业全美平均121.4137.5105.597.88897.6103.4101.196.1100
注:价格指数全美范围内的平均值是100。如果该指数高于100则意味着该商品的价格高于全国平均水平。相应的,如果低于100则意味着该商品价格低于全国平均水平。
房屋贷款
房屋总价: $5,699,000
  • $19,414本金利息
  • $4,749房产税
  • $593保险费
$24,757
(月供)
首付
$
百分比
%
贷款计划30年固定利率
年利率
%
房源介绍
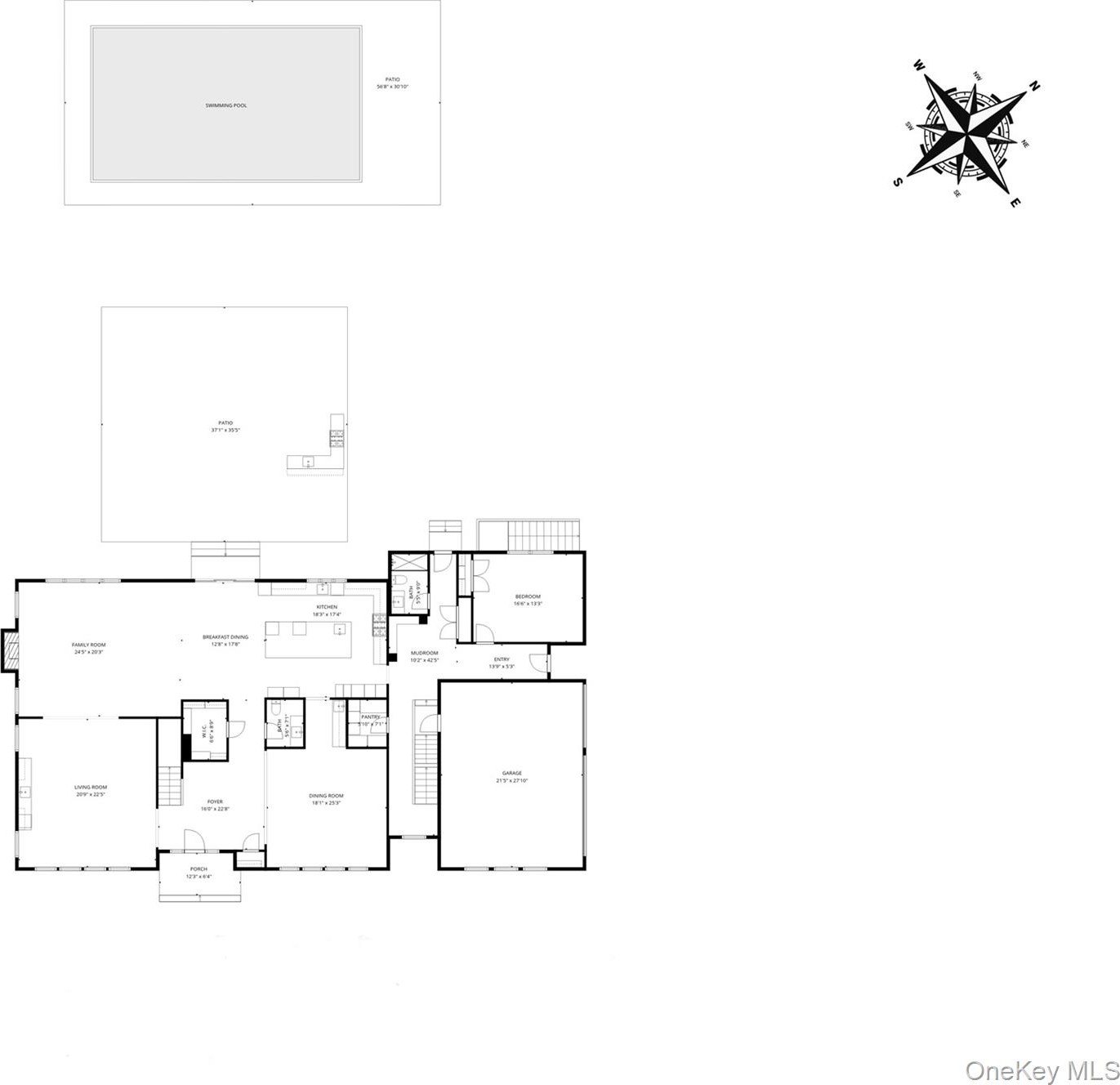
Set on two private acres in the heart of Brookville and located within the Locust Valley School District, 63 Fruitledge Road offers refined luxury living on Long Island's prestigious Gold Coast. This newly completed 6,880 Sq ft residence features a striking modern Colonial exterior with expansive windows and 10-foot ceilings throughout, creating an airy, light-filled atmosphere and large-scale rooms ideal for both everyday living and entertaining. A grand foyer introduces the home's elegant flow. The formal living room includes a fully equipped custom marble wet bar, while the open-concept den is framed by floor-to-ceiling windows overlooking the backyard and anchored by a marble fireplace.The custom kitchen opens seamlessly to the formal dining room and is complemented by thoughtful storage cabinetry, a large center island, Gaggenau gas appliances, double Bosch dishwashers, and a Sub-Zero refrigerator/freezer. Upstairs, all six bedrooms are en suite, offering privacy and comfort for family and guests alike. The extra-large primary suite serves as a private retreat, featuring dual outfitted custom walk-in closets and a luxurious marble bath with a steam shower, soaking tub, and two vanities. A spacious laundry room is conveniently located on this level. A well-designed service area beyond the kitchen includes a mudroom, a walk-in pantry, a full bath, and convenient access to the three-car garage, back staircase, and steps leading to the basement. The main level also features a generously sized bedroom, ideal for guests or extended stays. Radiant heated floors are featured in all bathrooms and the mudroom. The outdoor space is equally impressive, featuring a heated 40' x 20' Gunite saltwater pool, paver patio, and outdoor kitchen-perfect for entertaining or enjoying the serene, private grounds.
展开全部
Listing Agent Info
Melanie Cogan • Compass Greater NY LLC •  Phone: (212) 913-9058 •  Email: melanie.cogan@compass.com • View more info
Copyright © 2026 OneKey MLS All rights reserved. All information provided by the listing agent/broker is deemed reliable but is not guaranteed and should be independently verified.
联系经纪人
买方经纪人
*我是经纪人,想出现在这
Jennifer Lo
羅懿慧 Jennifer Lo
Daniel Gale Sotheby's International
点击查看经纪人详情
Daimian E Dai
戴冕 Daimian E Dai
Winzone Realty Inc
点击查看经纪人详情
Shirley Chow
史宏 Shirley Chow
NY Best Homes Realty
点击查看经纪人详情
Shadow X. Chen
陈熙 Shadow X. Chen
B Square Realty
点击查看经纪人详情
买方经纪人
*我是经纪人,想出现在这
Jennifer Lo
羅懿慧 Jennifer Lo
Daniel Gale Sotheby's International
点击查看经纪人详情
Daimian E Dai
戴冕 Daimian E Dai
Winzone Realty Inc
点击查看经纪人详情
Shirley Chow
史宏 Shirley Chow
NY Best Homes Realty
点击查看经纪人详情
Shadow X. Chen
陈熙 Shadow X. Chen
B Square Realty
点击查看经纪人详情
所有信息安全可靠
不收费用并非中介
实时更新详尽信息
专业平台让您放心
外居乐美国房产
外居乐美国房产网提供真实海外房源信息,涵盖海量美国房产、海外学区房与房源周边社区信息。并联合全球超过6268名海外房产经纪人,推出美国豪宅、别墅、公寓、住宅、土地等类型的海外房产投资项目。通过外居乐,买家不再受虚假房源的困扰,通过可靠的美国房产经纪人,放心找到实时在售美国房产。海外房产投资,就上外居乐!
425-896-8335
微信扫码
Wechat
获取每日新鲜热辣的海外房产投资资讯,请扫描二维码关注外居乐。
Download App
扫描下载APP
海外购房更便捷
WJL HomeServices LLC.
#20293
WJL HomeServices Inc.
CA BRE# 02040249
7 Springs Properties, Inc.
CA BRE#01884805
© 2015 外居乐 版权所有 | 沪ICP备15046544号-2