提交购房需求
外居乐为您提供专属的购房服务
扫描获取每日新鲜热辣的海外房产资讯
waijule2015
Wechat
扫描下载APP
海外购房更便捷
外居乐
App
Consultant
小乐
专业咨询顾问
查看地图
206-50 46th Avenue, Bayside, NY, 11361

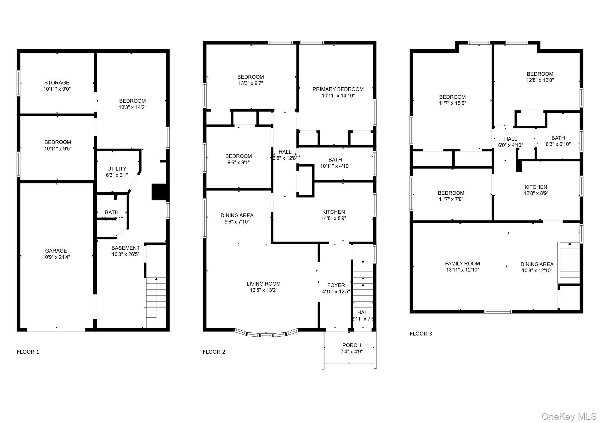
美国纽约贝赛7室3卫多单元住宅

贝赛七室三卫多单元住宅  |  房产编号 J401685  |  发布于158天前
$1,658,000
约¥1150万
$6,686 / 贷款月供
? / 投资回报率
基本信息
房屋类型多单元住宅
建筑面积--
土地面积3,999 平方英尺 (约 372 平方米)
建筑年代1955年
停车位数--
卧室数量7间
3/4卫浴数0间
MLS#907124
单位价格--
房产税$865/月 (约¥6,001/月)
物业费--
预估月租金--
完整卫浴数3间
1/2卫浴数0间
交易状态待出售
投资回报率
8年年化投资回报率:?
现金购房出租净收益率:?
房屋增值
房屋总价
$1,658,000
首付比例
40.00%
持有年限
8年
预估年增值率
3.09%
过去十二个月房价趋势
--
收入与支出 / 月
预估租金
--
房产税
$865
物业费
$0
保险费
$172
维护费
$207
投资回报率仅供参考,各类参考数据来源于不同的政府数据库与商业数据库,外居乐不对数据准确负任何直接或间接的责任。
城市介绍
纽约贝赛
纽约New York是美国人口最多的城市,世界最大的城市之一,纽约都会区的核心,一座对全球的经济、商业、金融、媒体、政治、教育和娱乐具有极大影响力的国际大都会。纽约还是联合国总部的所在地,因此纽约也被认为是世界外交的中心。纽约还被称为世界文化之都,名列纽伦港世界三大国际都会之一。 纽约位于美国大西洋海岸的东北部,坐拥世界上最大的天然港口之一—纽约港。纽约市共有曼哈顿区、皇后区、布鲁克林区、布朗克斯区及斯塔滕岛区五个行政区,每一个行政区也各自是纽约州的一个县。1898年,五个行政区被合并为现在的纽约。 纽约也是全美国人口最密集的主要城市,2012年约有11,065,667人居住于302.64平方英里 (783.8平方千米)的土地上。 纽约为全球电视、广告、音乐、报纸和图书出版业的重镇,亦是北美最大的媒体市场 (其次为洛杉矶、芝加哥和多伦多)。知名的媒体企业包括时代华纳、汤森路透公司、美国联合通讯社、新闻集团、纽约时报公司、NBC环球、赫斯特国际集团和维亚康姆。电视产业对于纽约来说是相当重要的经济命脉。美国四大广播公司,包括美国广播公司、哥伦比亚广播公司、福克斯广播公司和国家广播公司,都在纽约设立总部。 纽约市是全球商业和经贸的枢纽,与伦敦和东京并列为世界上三个最重要的金融中心,此外还是全美的银行业、零售业、世界贸易、运输、旅游业、地产业、新媒体、传统媒体、广告业、法律服务、会计业、保险业、戏剧、时尚和艺术产业的中心。 根据2010年的数据,纽约都会区的都会生产总值 (GMP,与国内生产总值概念类似)达到近1.28万亿美元,是美国最大的区域经济体。2008年年底,纽约掌控了全球40%的金融资金,使之成为全球最大的金融中心。许多大型企业都在纽约市设立总部,财富美国500强中就有45家公司的总部位于该市。 纽约还是许多知名私立大学的所在地,其中包括巴纳德学院、哥伦比亚大学、库伯联盟学院、福坦莫大学、纽约大学、纽约科技学院、佩斯大学和叶史瓦大学等。了解更多
学校信息
暂无数据,请联系经纪人
社区信息
社区人口数
29,197
社区安全指数
非常安全
平均家庭收入
高于本州平均家庭收入36.48%
高于全美平均家庭收入49.35%
本地本州全美$79,158$58,000$53,000
大学及以上教育比例
本地本州全美43.4%41.6%36.7%
失业率
本地本州全美4.4%5.9%6.2%
蓝白领比例
  • 30.0%蓝领
  • 70.0%白领
生活成本指数
服务教育娱乐餐饮医疗住房整体交通公共事业全美平均143.1167.498110.588109.8110.8106.293.1100
注:价格指数全美范围内的平均值是100。如果该指数高于100则意味着该商品的价格高于全国平均水平。相应的,如果低于100则意味着该商品价格低于全国平均水平。
房屋贷款
房屋总价: $1,658,000
  • $5,648本金利息
  • $865房产税
  • $172保险费
$6,686
(月供)
首付
$
百分比
%
贷款计划30年固定利率
年利率
%
房源介绍
Welcome to this charming detached legal 2-family in the heart of Bayside! Perfectly located near Bell Blvd's fantastic shops, dining, and vibrant local scene, this spacious home offers flexible living with two separate units. The first floor greets you with a bright living room, dedicated dining room, functional kitchen, 3 bedrooms, and a full bath. Upstairs, the second floor provides another generous unit with a living room, kitchen, 3 comfortable bedrooms, and a bathroom. Downstairs, a full finished basement with a separate entrance and its own bath expands your possibilities for recreation, guests, or home office. Step outside to enjoy an ample, fenced backyard-perfect for gatherings and play. With an attached garage, private driveway, and walkable access to Q27,Q31,Q12,Q13,N20G,N20X,N21 buses, express buses, and LIRR to Manhattan, commuting is easy. Just blocks from District 26's top schools and both Crocheron and Alley Pond Parks, this Bayside gem is truly an exciting opportunity for homeownership or investment! The whole house can be delivered vacant !
展开全部
Listing Agent Info
Po Tair • Remax 1st Choice •  Phone: (917) 406-6026 •  Email: davidptair@gmail.com • View more info
Copyright © 2026 OneKey MLS All rights reserved. All information provided by the listing agent/broker is deemed reliable but is not guaranteed and should be independently verified.
联系经纪人
买方经纪人
*我是经纪人,想出现在这
Calvin Xu
徐超科 Calvin Xu
COMPASS
点击查看经纪人详情
Lillian Chen
爱冬 Lillian Chen
NY Best Homes Realty
点击查看经纪人详情
Shadow X. Chen
陈熙 Shadow X. Chen
B Square Realty
点击查看经纪人详情
Daimian E Dai
戴冕 Daimian E Dai
Winzone Realty Inc
点击查看经纪人详情
买方经纪人
*我是经纪人,想出现在这
Calvin Xu
徐超科 Calvin Xu
COMPASS
点击查看经纪人详情
Lillian Chen
爱冬 Lillian Chen
NY Best Homes Realty
点击查看经纪人详情
Shadow X. Chen
陈熙 Shadow X. Chen
B Square Realty
点击查看经纪人详情
Daimian E Dai
戴冕 Daimian E Dai
Winzone Realty Inc
点击查看经纪人详情
所有信息安全可靠
不收费用并非中介
实时更新详尽信息
专业平台让您放心
外居乐美国房产
外居乐美国房产网提供真实海外房源信息,涵盖海量美国房产、海外学区房与房源周边社区信息。并联合全球超过6268名海外房产经纪人,推出美国豪宅、别墅、公寓、住宅、土地等类型的海外房产投资项目。通过外居乐,买家不再受虚假房源的困扰,通过可靠的美国房产经纪人,放心找到实时在售美国房产。海外房产投资,就上外居乐!
425-896-8335
微信扫码
Wechat
获取每日新鲜热辣的海外房产投资资讯,请扫描二维码关注外居乐。
Download App
扫描下载APP
海外购房更便捷
WJL HomeServices LLC.
#20293
WJL HomeServices Inc.
CA BRE# 02040249
7 Springs Properties, Inc.
CA BRE#01884805
© 2015 外居乐 版权所有 | 沪ICP备15046544号-2