提交购房需求
外居乐为您提供专属的购房服务
扫描获取每日新鲜热辣的海外房产资讯
waijule2015
Wechat
扫描下载APP
海外购房更便捷
外居乐
App
Consultant
小乐
专业咨询顾问
查看地图
747 Flushing Avenue, Brooklyn, NY, 11206

美国纽约布鲁克林独栋别墅

布鲁克林独栋别墅  |  房产编号 J403517  |  发布于81天前
$2,499,988
约¥1735万
$13,354 / 贷款月供
? / 投资回报率
基本信息
房屋类型独栋别墅
建筑面积--
土地面积1,742 平方英尺 (约 162 平方米)
建筑年代1931年
停车位数--
卧室数量--
3/4卫浴数0间
MLS#937100
单位价格--
房产税$4,577/月 (约¥31,759/月)
物业费--
预估月租金--
完整卫浴数0间
1/2卫浴数0间
交易状态待出售
投资回报率
8年年化投资回报率:?
现金购房出租净收益率:?
房屋增值
房屋总价
$2,499,988
首付比例
40.00%
持有年限
8年
预估年增值率
3.09%
过去十二个月房价趋势
18.12%
收入与支出 / 月
预估租金
--
房产税
$4,577
物业费
$0
保险费
$260
维护费
$312
投资回报率仅供参考,各类参考数据来源于不同的政府数据库与商业数据库,外居乐不对数据准确负任何直接或间接的责任。
城市介绍
纽约布鲁克林
布鲁克林Brooklyn是美国纽约州纽约市五大区中,人口最多的一区,位于美国东北部,纽约曼哈顿岛的东南边。如该区是一所城市,单以人口比较,会是美国第四大城。它也是纽约州人口最多的区。布鲁克林区一开始只有6个荷兰移民小村庄建在东河边,并有小荷兰的称呼。在1664年成为纽约属地的一部份。1898年正式划入纽约市,成为五大区之一。原名是荷兰文Breukelen。此命名早于同名的荷兰布根市。 布鲁克林在十九世纪时有树之城,家之城和教堂之城等昵称,可见具有独特魅力;比起对岸的世界之都曼哈顿来,这里有些乡土气息,环境更适宜居住。 作为移民国家的美国特色,尤其是世界之都纽约的特色,布鲁克林拥有几乎来自全球各地的住民。这是一个大熔炉,但不同民族大都保有自己文化色彩的聚居小区。 了解更多
学校信息
暂无数据,请联系经纪人
社区信息
社区人口数
80,086
社区安全指数
非常安全
平均家庭收入
低于本州平均家庭收入46.93%
低于全美平均家庭收入41.93%
本地本州全美$30,779$58,000$53,000
大学及以上教育比例
本地本州全美22.2%41.6%36.7%
失业率
本地本州全美5.3%5.9%6.2%
蓝白领比例
  • 39.5%蓝领
  • 60.5%白领
生活成本指数
服务教育娱乐餐饮医疗住房整体交通公共事业全美平均80.572.660.873.858.874.869.468.347.5100
注:价格指数全美范围内的平均值是100。如果该指数高于100则意味着该商品的价格高于全国平均水平。相应的,如果低于100则意味着该商品价格低于全国平均水平。
房屋贷款
房屋总价: $2,499,988
  • $8,516本金利息
  • $4,577房产税
  • $260保险费
$13,354
(月供)
首付
$
百分比
%
贷款计划30年固定利率
年利率
%
房源介绍
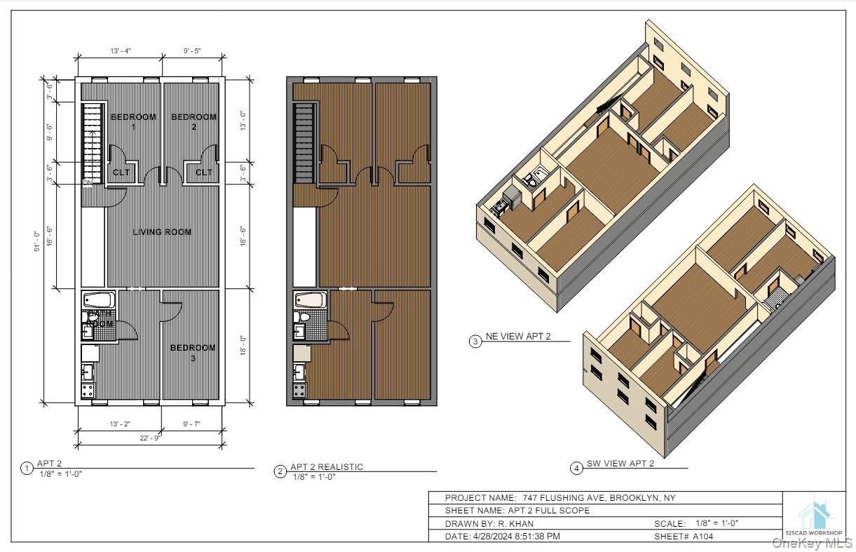
EXCEPTIONAL MIXED-USE BUILDING FOR SALE - PRIME EAST WILLIAMSBURG / BROADWAY TRIANGLE. 747 Flushing Avenue features one ground-floor commercial space and two large 3-bedroom apartments above. Basement includes storage and a separate boiler room. All tenants have separate meters and pay their own utilities including water. Low taxes: $4,577. Located directly across from Woodhull Hospital and just half a block to the J & M trains (Flushing Ave Station) with B43/B57 buses nearby. Building Size: 3,843 sq ft Additional Buildable SF: Approx. 1,838 sq. ft. of unused FAR (verify with architect) Market Rents: - 3BR: $5,100 - 3BR: $5,100 - Retail/Restaurant: $5,000 HPD has approved a large-scale development plan for the Broadway Triangle area, including new commercial spaces and approximately 400 affordable housing units, further enhancing the value and future demand of this location. Strong income potential in a rapidly developing corridor.
展开全部
Listing Agent Info
Hans Campana • ONE STOP MULTISERVICE INC •  Phone: (718) 554-0257 •  Email: onestophans@gmail.com
Copyright © 2026 OneKey MLS All rights reserved. All information provided by the listing agent/broker is deemed reliable but is not guaranteed and should be independently verified.
联系经纪人
买方经纪人
*我是经纪人,想出现在这
Shu-Fen  Striedter
李淑芬 Shu-Fen Striedter
Oxford Property Group
点击查看经纪人详情
Calvin Xu
徐超科 Calvin Xu
COMPASS
点击查看经纪人详情
Shirley Chow
史宏 Shirley Chow
NY Best Homes Realty
点击查看经纪人详情
Daimian E Dai
戴冕 Daimian E Dai
Winzone Realty Inc
点击查看经纪人详情
买方经纪人
*我是经纪人,想出现在这
Shu-Fen  Striedter
李淑芬 Shu-Fen Striedter
Oxford Property Group
点击查看经纪人详情
Calvin Xu
徐超科 Calvin Xu
COMPASS
点击查看经纪人详情
Shirley Chow
史宏 Shirley Chow
NY Best Homes Realty
点击查看经纪人详情
Daimian E Dai
戴冕 Daimian E Dai
Winzone Realty Inc
点击查看经纪人详情
所有信息安全可靠
不收费用并非中介
实时更新详尽信息
专业平台让您放心
外居乐美国房产
外居乐美国房产网提供真实海外房源信息,涵盖海量美国房产、海外学区房与房源周边社区信息。并联合全球超过6268名海外房产经纪人,推出美国豪宅、别墅、公寓、住宅、土地等类型的海外房产投资项目。通过外居乐,买家不再受虚假房源的困扰,通过可靠的美国房产经纪人,放心找到实时在售美国房产。海外房产投资,就上外居乐!
425-896-8335
微信扫码
Wechat
获取每日新鲜热辣的海外房产投资资讯,请扫描二维码关注外居乐。
Download App
扫描下载APP
海外购房更便捷
WJL HomeServices LLC.
#20293
WJL HomeServices Inc.
CA BRE# 02040249
7 Springs Properties, Inc.
CA BRE#01884805
© 2015 外居乐 版权所有 | 沪ICP备15046544号-2