提交购房需求
外居乐为您提供专属的购房服务
扫描获取每日新鲜热辣的海外房产资讯
waijule2015
Wechat
扫描下载APP
海外购房更便捷
外居乐
App
Consultant
小乐
专业咨询顾问
查看地图
47 Syosset Circle, Syosset, NY, 11791

美国纽约赛奥希特4室3卫独栋别墅

赛奥希特四室三卫独栋别墅  |  房产编号 J406079  |  发布于74天前
$1,399,000
约¥971万
$6,944 / 贷款月供
? / 投资回报率
基本信息
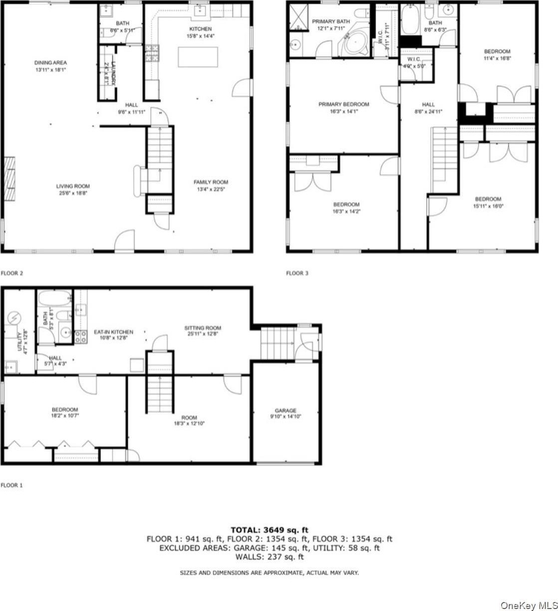
房屋类型独栋别墅
建筑面积2,736 平方英尺 (约 254 平方米)
土地面积6,499 平方英尺 (约 604 平方米)
建筑年代2005年
停车位数--
卧室数量4间
3/4卫浴数0间
MLS#939304
单位价格$511/平方英尺 (约¥38,192/平方米)
房产税$2,032/月 (约¥14,105/月)
物业费--
预估月租金--
完整卫浴数2间
1/2卫浴数1间
交易状态待出售
投资回报率
8年年化投资回报率:?
现金购房出租净收益率:?
房屋增值
房屋总价
$1,399,000
首付比例
40.00%
持有年限
8年
预估年增值率
3.09%
过去十二个月房价趋势
--
收入与支出 / 月
预估租金
--
房产税
$2,032
物业费
$0
保险费
$145
维护费
$174
投资回报率仅供参考,各类参考数据来源于不同的政府数据库与商业数据库,外居乐不对数据准确负任何直接或间接的责任。
城市介绍
纽约赛奥希特
长岛|赛奥西特Syosset 是一个风光秀丽的纽约长岛,也是著名的富人区和好学区。她东西约200公里,南北不到40公里,是一个狭长的半岛。由于交通和环境的缘故,长岛的房产素有“西高东低、北贵南贱”的说法。从上世纪90年代起,越来越多的华人从曼哈顿华埠、法拉盛,逐渐东移到长岛居住,这里大约生活着5万多华人,且逐年递增。大颈市(Great Neck)、杰里科(Jericho)、曼哈西特(Manhasset)、赛奥西特(Syosset)和罗斯林岗(Roslyn Heights)是长岛华人最热的几个置业地区,它们共同的特点是环境优美、交通便利、教育医疗水平高。长岛|赛奥西特 Syosset,位于长岛的中东部,是纽约长岛最好的学区之一,也是特色鲜明的富人区,城市环境优美、社区治安优异、学区质量顶级。全市有13所公立学校,知名的赛奥西特高中(Syosset High School)纽约排名32、全国排名158。赛奥希特居民极其富裕,是纽约市平均收入水平的2.3倍。了解更多
学校信息
暂无数据,请联系经纪人
社区信息
社区人口数
25,240
社区安全指数
非常安全
平均家庭收入
高于本州平均家庭收入161.43%
高于全美平均家庭收入186.09%
本地本州全美$151,627$58,000$53,000
大学及以上教育比例
本地本州全美65.3%41.6%36.7%
失业率
本地本州全美4.2%5.9%6.2%
蓝白领比例
  • 13.2%蓝领
  • 86.8%白领
生活成本指数
服务教育娱乐餐饮医疗住房整体交通公共事业全美平均144.8171.8112.211093.2109.4115.3111.5105.1100
注:价格指数全美范围内的平均值是100。如果该指数高于100则意味着该商品的价格高于全国平均水平。相应的,如果低于100则意味着该商品价格低于全国平均水平。
房屋贷款
房屋总价: $1,399,000
  • $4,766本金利息
  • $2,032房产税
  • $145保险费
$6,944
(月供)
首付
$
百分比
%
贷款计划30年固定利率
年利率
%
房源介绍
Welcome to this beautifully maintained Center Hall Colonial in Syosset, built in 2005 and offering low taxes and immediate occupancy. This 4-bedroom, 2.5-bath home features 2,746 sq ft of living space on a 6,500 sq ft lot, along with a stunning heated saltwater freeform pool (2013) surrounded by elegant travertine stone. Interior highlights include 9' first-floor ceilings, hardwood floors throughout, and a modern updated kitchen with new Viking appliances and new quartz countertops. Additional recent updates include 2023 full-house interior paint, new central air systems, and a new mini-split unit. Additional features: - First-floor laundry - Double-wide paver driveway - Maintenance-free turf lawn - Ring camera system - Meticulously cared for by the same owner since 2005 Located in the top-rated Syosset School District, this move-in-ready home offers comfort, quality, and a private resort-style backyard perfect for entertaining ,Don't miss it!!
展开全部
Listing Agent Info
Biqing Ying • B Square Realty •  Phone: (347) 628-8818 •  Email: kellyyingrealty@gmail.com • View more info
Copyright © 2026 OneKey MLS All rights reserved. All information provided by the listing agent/broker is deemed reliable but is not guaranteed and should be independently verified.
联系经纪人
买方经纪人
*我是经纪人,想出现在这
Calvin Xu
徐超科 Calvin Xu
COMPASS
点击查看经纪人详情
Jennifer Lo
羅懿慧 Jennifer Lo
Daniel Gale Sotheby's International
点击查看经纪人详情
Daimian E Dai
戴冕 Daimian E Dai
Winzone Realty Inc
点击查看经纪人详情
Shirley Chow
史宏 Shirley Chow
NY Best Homes Realty
点击查看经纪人详情
买方经纪人
*我是经纪人,想出现在这
Calvin Xu
徐超科 Calvin Xu
COMPASS
点击查看经纪人详情
Jennifer Lo
羅懿慧 Jennifer Lo
Daniel Gale Sotheby's International
点击查看经纪人详情
Daimian E Dai
戴冕 Daimian E Dai
Winzone Realty Inc
点击查看经纪人详情
Shirley Chow
史宏 Shirley Chow
NY Best Homes Realty
点击查看经纪人详情
所有信息安全可靠
不收费用并非中介
实时更新详尽信息
专业平台让您放心
外居乐美国房产
外居乐美国房产网提供真实海外房源信息,涵盖海量美国房产、海外学区房与房源周边社区信息。并联合全球超过6268名海外房产经纪人,推出美国豪宅、别墅、公寓、住宅、土地等类型的海外房产投资项目。通过外居乐,买家不再受虚假房源的困扰,通过可靠的美国房产经纪人,放心找到实时在售美国房产。海外房产投资,就上外居乐!
425-896-8335
微信扫码
Wechat
获取每日新鲜热辣的海外房产投资资讯,请扫描二维码关注外居乐。
Download App
扫描下载APP
海外购房更便捷
WJL HomeServices LLC.
#20293
WJL HomeServices Inc.
CA BRE# 02040249
7 Springs Properties, Inc.
CA BRE#01884805
© 2015 外居乐 版权所有 | 沪ICP备15046544号-2