提交购房需求
外居乐为您提供专属的购房服务
扫描获取每日新鲜热辣的海外房产资讯
waijule2015
Wechat
扫描下载APP
海外购房更便捷
外居乐
App
Consultant
小乐
专业咨询顾问
查看地图
477 Court Avenue, Cedarhurst, NY, 11516

美国纽约3室2卫独栋别墅

纽约三室二卫独栋别墅  |  房产编号 J408104  |  发布于44天前
$699,999
约¥494万
$3,011 / 贷款月供
? / 投资回报率
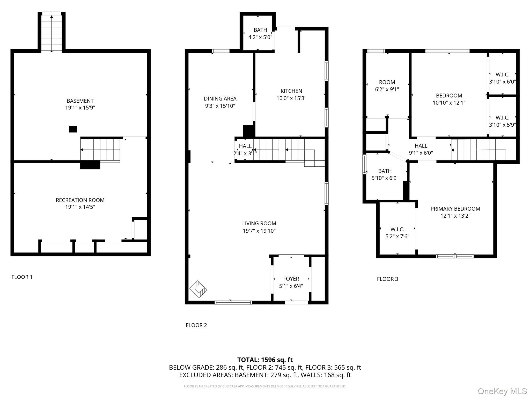
基本信息
房屋类型独栋别墅
建筑面积1,310 平方英尺 (约 122 平方米)
土地面积2,827 平方英尺 (约 263 平方米)
建筑年代1908年
停车位数--
卧室数量3间
3/4卫浴数0间
MLS#931132
单位价格$534/平方英尺 (约¥40,576/平方米)
房产税$553/月 (约¥3,906/月)
物业费--
预估月租金--
完整卫浴数1间
1/2卫浴数1间
交易状态待出售
投资回报率
8年年化投资回报率:?
现金购房出租净收益率:?
房屋增值
房屋总价
$699,999
首付比例
40.00%
持有年限
8年
预估年增值率
3.09%
过去十二个月房价趋势
0.04%
收入与支出 / 月
预估租金
--
房产税
$553
物业费
$0
保险费
$72
维护费
$87
投资回报率仅供参考,各类参考数据来源于不同的政府数据库与商业数据库,外居乐不对数据准确负任何直接或间接的责任。
城市介绍
纽约
纽约New York是美国人口最多的城市,世界最大的城市之一,纽约都会区的核心,一座对全球的经济、商业、金融、媒体、政治、教育和娱乐具有极大影响力的国际大都会。纽约还是联合国总部的所在地,因此纽约也被认为是世界外交的中心。纽约还被称为世界文化之都,名列纽伦港世界三大国际都会之一。 纽约位于美国大西洋海岸的东北部,坐拥世界上最大的天然港口之一—纽约港。纽约市共有曼哈顿区、皇后区、布鲁克林区、布朗克斯区及斯塔滕岛区五个行政区,每一个行政区也各自是纽约州的一个县。1898年,五个行政区被合并为现在的纽约。 纽约也是全美国人口最密集的主要城市,2012年约有11,065,667人居住于302.64平方英里 (783.8平方千米)的土地上。 纽约为全球电视、广告、音乐、报纸和图书出版业的重镇,亦是北美最大的媒体市场 (其次为洛杉矶、芝加哥和多伦多)。知名的媒体企业包括时代华纳、汤森路透公司、美国联合通讯社、新闻集团、纽约时报公司、NBC环球、赫斯特国际集团和维亚康姆。电视产业对于纽约来说是相当重要的经济命脉。美国四大广播公司,包括美国广播公司、哥伦比亚广播公司、福克斯广播公司和国家广播公司,都在纽约设立总部。 纽约市是全球商业和经贸的枢纽,与伦敦和东京并列为世界上三个最重要的金融中心,此外还是全美的银行业、零售业、世界贸易、运输、旅游业、地产业、新媒体、传统媒体、广告业、法律服务、会计业、保险业、戏剧、时尚和艺术产业的中心。 根据2010年的数据,纽约都会区的都会生产总值 (GMP,与国内生产总值概念类似)达到近1.28万亿美元,是美国最大的区域经济体。2008年年底,纽约掌控了全球40%的金融资金,使之成为全球最大的金融中心。许多大型企业都在纽约市设立总部,财富美国500强中就有45家公司的总部位于该市。 纽约还是许多知名私立大学的所在地,其中包括巴纳德学院、哥伦比亚大学、库伯联盟学院、福坦莫大学、纽约大学、纽约科技学院、佩斯大学和叶史瓦大学等。了解更多
学校信息
暂无数据,请联系经纪人
社区信息
社区人口数
7,486
社区安全指数
非常安全
平均家庭收入
高于本州平均家庭收入65.03%
高于全美平均家庭收入80.60%
本地本州全美$95,720$58,000$53,000
大学及以上教育比例
本地本州全美51.6%41.6%36.7%
失业率
本地本州全美4.2%5.9%6.2%
蓝白领比例
  • 30.4%蓝领
  • 69.6%白领
生活成本指数
服务教育娱乐餐饮医疗住房整体交通公共事业全美平均112.8120.7103.798.790.998.5102.2100.593.4100
注:价格指数全美范围内的平均值是100。如果该指数高于100则意味着该商品的价格高于全国平均水平。相应的,如果低于100则意味着该商品价格低于全国平均水平。
房屋贷款
房屋总价: $699,999
  • $2,384本金利息
  • $553房产税
  • $72保险费
$3,011
(月供)
首付
$
百分比
%
贷款计划30年固定利率
年利率
%
房源介绍
Cedarhurst Charmer - Move-In Ready with Room to Grow! Welcome home to this beautifully updated single-family in the heart of Cedarhurst! Featuring 3 bedrooms and 1.5 baths, this home blends character and convenience with modern upgrades throughout with 2 kitchen sinks and 2 refrigerators. Enjoy a brand-new high-efficiency HVAC system, wood-burning stove, and semi-finished basement - perfect for storage or future expansion. The property shines with updated electrical, new roof, PVC fencing, new front and back walkways, and a granite-paved backyard offering private parking and lush landscaping. Your fig tree, raspberry vines, and perennial blooms will greet you each season! Located just minutes from NYC, Queens, and Brooklyn - and only a 5-minute walk to the LIRR - this home sits in Sanitation District #1, meaning you'll never roll a trash bin again (they pick up right from the back!). Conveniently close to shopping centers and houses of worship, all with low taxes around $7K+. Plenty of room to expand - or simply move right in and start living your best Long Island life!
展开全部
Listing Agent Info
Marguerite Karamoshos • Signature Premier Properties •  Phone: (631) 673-3700 •  Email: mkaramoshos@signaturepremier.com • View more info
Copyright © 2025 OneKey MLS All rights reserved. All information provided by the listing agent/broker is deemed reliable but is not guaranteed and should be independently verified.
联系经纪人
买方经纪人
*我是经纪人,想出现在这
Calvin Xu
徐超科 Calvin Xu
COMPASS
点击查看经纪人详情
Jennifer Lo
羅懿慧 Jennifer Lo
Daniel Gale Sotheby's International
点击查看经纪人详情
Lillian Chen
爱冬 Lillian Chen
NY Best Homes Realty
点击查看经纪人详情
Daimian E Dai
戴冕 Daimian E Dai
Winzone Realty Inc
点击查看经纪人详情
买方经纪人
*我是经纪人,想出现在这
Calvin Xu
徐超科 Calvin Xu
COMPASS
点击查看经纪人详情
Jennifer Lo
羅懿慧 Jennifer Lo
Daniel Gale Sotheby's International
点击查看经纪人详情
Lillian Chen
爱冬 Lillian Chen
NY Best Homes Realty
点击查看经纪人详情
Daimian E Dai
戴冕 Daimian E Dai
Winzone Realty Inc
点击查看经纪人详情
所有信息安全可靠
不收费用并非中介
实时更新详尽信息
专业平台让您放心
外居乐美国房产
外居乐美国房产网提供真实海外房源信息,涵盖海量美国房产、海外学区房与房源周边社区信息。并联合全球超过6268名海外房产经纪人,推出美国豪宅、别墅、公寓、住宅、土地等类型的海外房产投资项目。通过外居乐,买家不再受虚假房源的困扰,通过可靠的美国房产经纪人,放心找到实时在售美国房产。海外房产投资,就上外居乐!
425-896-8335
微信扫码
Wechat
获取每日新鲜热辣的海外房产投资资讯,请扫描二维码关注外居乐。
Download App
扫描下载APP
海外购房更便捷
WJL HomeServices LLC.
#20293
WJL HomeServices Inc.
CA BRE# 02040249
7 Springs Properties, Inc.
CA BRE#01884805
© 2015 外居乐 版权所有 | 沪ICP备15046544号-2