房源介绍
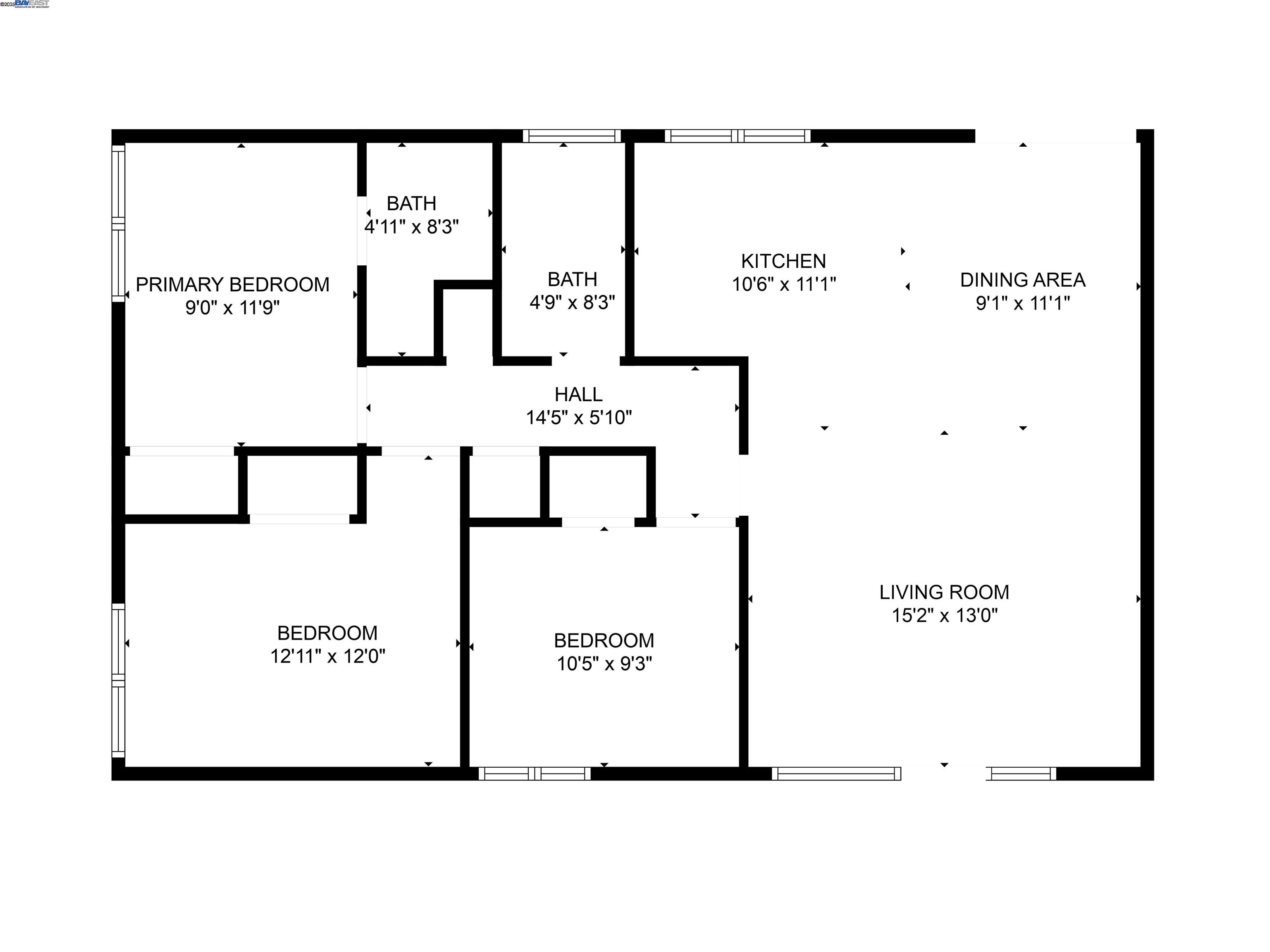
Stunning Palma Ceia home on a desirable CORNER LOT with SIDE ACCESS! Step inside and admire the beautiful details of this charming 3-bedroom, 2-bath home. Freshly painted with brand-new fixtures and finishes throughout, this home is move-in ready. The modern kitchen features white shaker cabinetry, striking dark quartz countertops, and stainless steel appliances, creating a sleek and stylish space. Sunlight pours into each bedroom, offering a bright and cozy atmosphere with spacious closets. Recessed lighting and a new central heating and air system ensure year-round comfort—perfect for those hot Hayward days! Love to entertain? The expansive fenced in front yard is ideal for hosting gatherings, BBQs, and playtime. And with a 5,980 sq. ft. corner lot, there’s HUGE potential to expand horizontally and vertically—add extra living space or storage for cars, trucks and toys. And let’s not forget—LOCATION, LOCATION, LOCATION! Quick access to freeways, shopping, and everything you need. Come see it today! This home won’t last long—come see it today!
展开全部Information deemed reliable but not guaranteed. This information is provided from three separate sources: Bay East, CCAR and EBRD. The listings presented here may or may not be listed by the Broker/Agent operating this website. The information being provided is for consumers’ personal, non-commercial use and may not be used for any purpose other than to identify prospective properties consumers may be interested in purchasing.

Copyright © 2025 Bay East. © 2025 CCAR. © 2016 2025. All Rights Reserved. 7 Springs Properties, Inc. 4736 Canary Dr, Pleasanton, CA 94566. CA BRE#01884805 By searching, you agree to the
MLS Terms of Use.